Pronájem bytu 3+1, Praha - Nusle, Pujmanové, 68 m2

Pujmanové, Nusle - Praha 4

27 000 Kč
/za měsíc
vratná jistota, náklady na bydlení 7139 Kč, poplatek za podnájem
Získejte výhodnou HYPOTÉKU Chci hypotéku

Parametry bytu

AdresaPujmanové, Nusle - Praha 4
IDN6861
StavbaPanelová
Stav objektuVelmi dobrý
Patro7. z 7
VybavenoČástečně
Typ objektuPatrový
Lokalita objektuKlidná část obce
VlastnictvíOsobní
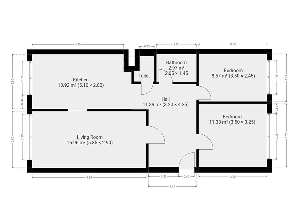
Užitná plocha68 m2
Podlahová plocha68 m2
Třída energetické náročnostiB - Velmi úsporná
Elektřina230V
TopeníÚstřední dálkové
DopravaSilnice, MHD, Autobus
Sklep
Výtah

Origo partneři v Praze 4

Stěhovací služby

Výkup a prodej starého nábytku

Popis

Ke krátkodobému podnájmu a to do 31.8.2026, nabízíme světlý byt o dispozici 3+1 v oblíbené lokalitě Praha 4 - Nusle, ideálně pro tři osoby. Byt o celkové výměře 68 m² se nachází v 7. patře udržovaného panelového domu s výtahem. Střecha domu je nově zateplena a byt má výborné zvukové izolační vlastnosti. K bytu náleží také praktický sklep.

Byt je nabízen částečně vybavený, což dává možnost doladit si interiér podle vlastního vkusu. Kuchyně je vybavena lednicí s mrazákem, elektrickou troubou, varnou deskou, digestoří, myčkou a jídelním koutem. Obývací pokoj je zařízen pohovkou, konferenčním stolem a úložným prostorem. K dispozici jsou rovněž dva samostatné pokoje, které lze využít jako ložnice, dětský pokoj nebo pracovna. Oba jsou vybaveny postelí a úložným prostorem. Koupelna je vybavena vanou, umyvadlem, koupelnovou skříňkou a pračkou, toaleta je umístěna samostatně.

V okolí domu je kompletní občanská vybavenost – nákupní centrum Arkády Pankrác, supermarket Albert, restaurace a kavárny, školy a školky, lékařská péče, sportovní vyžití. Pro volný čas je ideální blízký Centrální park Pankrác, vzdálený jen pár minut chůze. Výbornou dopravní dostupnost zajišťuje blízká stanice metra C- Pankrác nebo autobusová doprava.

Byt je volný k nastěhování ihned.

Domácí mazlíčci v bytě jsou povoleni.

Energetická třída: B (velmi úsporná).

Makléř

Máte zájem o tento byt?

Tímto, v souladu s nařízením Evropského parlamentu a Rady (EU) 2016/679, v platném znění, prohlašuji, že mi je alespoň 16 let a uděluji tak svůj souhlas se zpracováním zadaných údajů (jméno, telefon, e-mail, ip adresa) společnosti B3 Technology, s.r.o., IČ: 07330600, se sídlem Novostavby 126/23, 435 11 Lom (správce dat), za účelem předání dotazu z tohoto formuláře Vámi vybranému inzerentovi a zpětného kontaktování mé osoby. Osobní údaje bude správce zpracovávat manuálně i automaticky přímo prostřednictvím svých zaměstnanců. Informace předané tímto formulářem budou uloženy v databázi správce maximálně po dobu 10 let. Odvolání souhlasu s uložením a zpracováním poskytnutých dat lze e-mailem na info@origo-reality.cz. V případě podezření na neoprávněné použití Vámi poskytnutých údajů máte právo předat podnět k šetření Úřadu pro ochranu osobních údajů. Více informací
Chystáte se prodat nemovitost?
Pomůžeme Vám!