Pronájem bytu 2+kk, Praha - Hlubočepy, náměstí Olgy Scheinpflugové, 49 m2 (ID: 1860714)

náměstí Olgy Scheinpflugové, Hlubočepy - Praha 5

22 500 Kč
/za měsíc
vratná jistota, náklady na bydlení 5375, poplatek za podnájem
Získejte výhodnou HYPOTÉKU Chci hypotéku

Parametry bytu

Adresanáměstí Olgy Scheinpflugové, Hlubočepy - Praha 5
IDN5461
StavbaCihlová
Stav objektuNovostavba
Patro6. z 8
VybavenoČástečně
Typ objektuPatrový
Lokalita objektuKlidná část obce
VlastnictvíOsobní
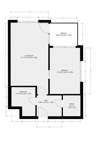
Užitná plocha49 m2
Podlahová plocha49 m2
Elektřina230V
TopeníÚstřední dálkové
Balkon
Výtah
Bezbarierový přístup

Origo partneři v Praze 5

Stěhovací služby

Výkup a prodej starého nábytku

Popis

K dlouhodobému podnájmu nabízíme nový prosluněný byt o dispozici 2+kk nacházející se v oblíbené lokalitě Praha - Barrandov. Byt o podlahové ploše 49 m2 se nachází v 6. podlaží přednedávnem dokončené novostavby s výtahem.

Nabízí se nevybavený. Kuchyně disponuje myčkou, elektrickou troubou, indukční varnou deskou a digestoří. Obývací část je nezařízená. Z obývací části se dostáváme na prostorný balkon. Ložnice je taktéž nevybavená. V koupelně najdeme vanu, toaletu a umyvadlo se skříňkou.

V okolí domu najdeme kavárnu, restaurace, potraviny, dostatek zeleně k aktivnímu odpočinku, dětské hřiště, posilovnu atp..
Výbornou dopravní dostupnost zabezpečuje tramvajová zastávka Nám. Olgy Scheinpflugové nacházející se přímo před domem.


Majitel preferuje zájemce bez domácích mazlíčků.
Byt je volný k nastěhování od 01.01.2026

Energetická třída G, jelikož nemáme k dispozici PENB.

Makléř

Máte zájem o tento byt?

Tímto, v souladu s nařízením Evropského parlamentu a Rady (EU) 2016/679, v platném znění, prohlašuji, že mi je alespoň 16 let a uděluji tak svůj souhlas se zpracováním zadaných údajů (jméno, telefon, e-mail, ip adresa) společnosti B3 Technology, s.r.o., IČ: 07330600, se sídlem Novostavby 126/23, 435 11 Lom (správce dat), za účelem předání dotazu z tohoto formuláře Vámi vybranému inzerentovi a zpětného kontaktování mé osoby. Osobní údaje bude správce zpracovávat manuálně i automaticky přímo prostřednictvím svých zaměstnanců. Informace předané tímto formulářem budou uloženy v databázi správce maximálně po dobu 10 let. Odvolání souhlasu s uložením a zpracováním poskytnutých dat lze e-mailem na info@origo-reality.cz. V případě podezření na neoprávněné použití Vámi poskytnutých údajů máte právo předat podnět k šetření Úřadu pro ochranu osobních údajů. Více informací
Chystáte se prodat nemovitost?
Pomůžeme Vám!