Prodej rodinného domu, Kasalice, 86 m2

Kasalice

6 800 000 Kč
/za nemovitost
Hypotéka od 30 392 Kč /měs. Chci hypotéku

Parametry domu

AdresaKasalice
ID305-NP00825
StavbaPanelová
Stav objektuVelmi dobrý
Typ objektuPřízemní
Druh objektuSamostatný
Lokalita objektuKlidná část obce
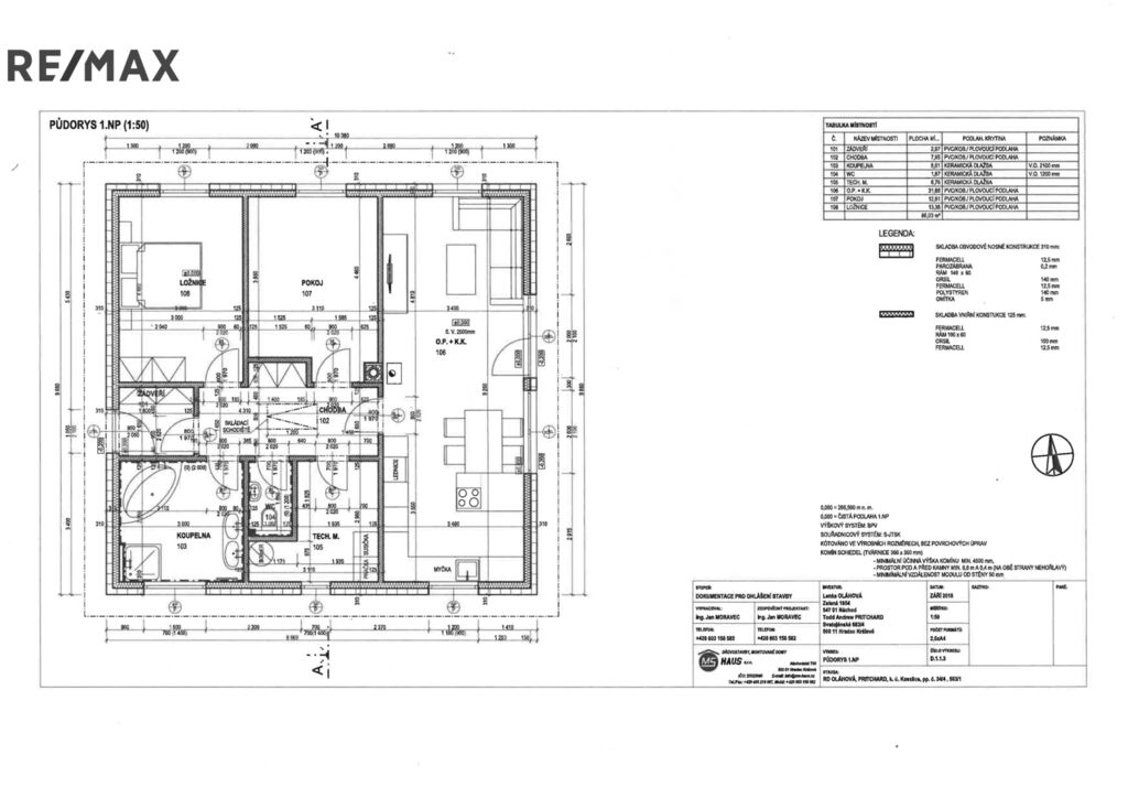
Užitná plocha86 m2
Zastavěná plocha103 m2
Podlahová plocha86 m2
Plocha pozemku822 m2
Plocha zahrady719 m2
Třída energetické náročnostiB - Velmi úsporná
Ukazatel energetické náročnosti93 kWh/m2 za rok
Elektřina230V
OdpadVeřejná kanalizace
KomunikaceDlážděná, Asfaltová
TelekomunikaceInternet
DopravaAutobus
VodaVodovod
Převod do OV
Parkování

Origo partneři v Kasalicích

Popis

Nabízíme k prodeji samostatně stojící rodinný dům, situovaný na adrese Kasalice č. p. 61, v pardubickém okrese blízko Lázní Bohdaneč. Tento přízemní dům se zastavěnou plochou 103 m² a užitnou plochou 86 m² je ideální volbou pro menší rodinu nebo páry, hledající klidné a velmi příjemné bydlení.

Nemovitost disponuje dvěmi prostornými pokoji (ložnice), které nabízejí dostatek prostoru pro odpočinek a relaxaci. Dominantou domu je obývací pokoj s velkou kuchyní. Odtud je zřízen vstup na hezkou verandu a zahradu. Dům je ve velmi dobrém stavu, byl kolaudován v roce 2020. Komfort bydlení umocňuje podlahové topení a kamna na tuhá paliva. Dům nevyžaduje potřebu údržby a zajišťuje bezproblémové bydlení. Plocha celého pozemku činí 822 m², což poskytuje dostatek prostoru pro zahradu nebo venkovní aktivity.

K dispozici jsou dvě parkovací místa, což ocení zejména Ti, kteří preferují komfort vlastního vozidla.

Dopravu do okolí zabezpečuje dostupná autobusová doprava, zastávka je hned vedle domu.

Tato nemovitost nabízí kombinaci pohodlného bydlení v klidné lokalitě s výbornou dostupností do okolních měst, jako jsou Lázně Bohdaneč, Pardubice, Hradec Králové. Nájezd na dálnici D 11 je vzdálen 3 km, což představuje 3 minuty jízdy a kdo jezdí do Prahy tak mu postačí 50 minut na okraj Prahy, do HK a PU trvá cesta autem 25 minut. V okolí naleznete množství rybníků a lesů pro oddych a relaxaci.

V případě zájmu o prohlídku mě neváhejte kontaktovat.

Makléř

Máte zájem o tento dům?

Tímto, v souladu s nařízením Evropského parlamentu a Rady (EU) 2016/679, v platném znění, prohlašuji, že mi je alespoň 16 let a uděluji tak svůj souhlas se zpracováním zadaných údajů (jméno, telefon, e-mail, ip adresa) společnosti B3 Technology, s.r.o., IČ: 07330600, se sídlem Novostavby 126/23, 435 11 Lom (správce dat), za účelem předání dotazu z tohoto formuláře Vámi vybranému inzerentovi a zpětného kontaktování mé osoby. Osobní údaje bude správce zpracovávat manuálně i automaticky přímo prostřednictvím svých zaměstnanců. Informace předané tímto formulářem budou uloženy v databázi správce maximálně po dobu 10 let. Odvolání souhlasu s uložením a zpracováním poskytnutých dat lze e-mailem na info@origo-reality.cz. V případě podezření na neoprávněné použití Vámi poskytnutých údajů máte právo předat podnět k šetření Úřadu pro ochranu osobních údajů. Více informací
Chystáte se prodat nemovitost?
Pomůžeme Vám!

Přihlášení k odběru

Nenechte si ujít nejnovější nabídky prodeje rodinných domů v Kasalicích.