Prodej rodinného domu, Česká Kamenice, 152 m2 (ID: 1860431)

Česká Kamenice

8 900 000 Kč

včetně provize RK
Hypotéka od 39 778 Kč /měs. Chci hypotéku

Parametry domu

AdresaČeská Kamenice
ID100287
StavbaCihlová
Stav objektuVe výstavbě
VybavenoNe
Druh objektuSamostatný
Lokalita objektuKlidná část obce
Užitná plocha152 m2
Plocha pozemku890 m2
Třída energetické náročnostiB - Velmi úsporná
Ukazatel energetické náročnosti68 kWh/m2 za rok

Origo partneři v České Kamenici

Okna a dveře

Rekonstrukce

Zámečnické práce

Popis

Prodej dvou moderních rodinných domů ve výstavbě – Česká Kamenice

Nabízíme ke koupi dvě vznikající novostavby samostatně stojících rodinných domů v klidné části obce Česká Kamenice. Domy se nacházejí v atraktivní lokalitě na okraji obce, v sousedství přírody a zároveň s dobrou dostupností do centra města. Výstavba právě probíhá, s plánovaným dokončením a kolaudací k datu 30. 4. 2026.

Základní informace:
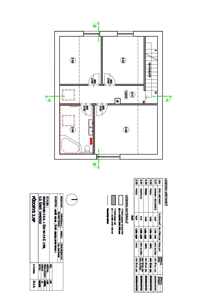
Dispozice: 5+kk

Zastavěná plocha: 76 m²

Užitná plocha: cca 120 m²

Pozemek: cca 850 m² každý

Vytápění: tepelné čerpadlo, podlahové topení

Energetická náročnost budovy: třída B – velmi úsporná (dle PENB)

Střecha: sedlová, betonová taška

Zdivo: tvárnice Porfix

Okna: plastová s izolačním trojsklem

Podlahové krytiny: vinylová krytina

Domy budou dokončeny v kvalitním standardu s důrazem na nízké provozní náklady a moderní technologie. Každý dům nabízí prostorný obývací pokoj s kuchyňským koutem, tři ložnice, pracovnu, koupelnu, technickou místnost a samostatné WC. Před domem bude zpevněná plocha pro parkování dvou vozidel.

Výhody:
Krásné a klidné prostředí vhodné pro rodiny s dětmi

Moderní nízkoenergetické řešení domu

Možnost ovlivnit vnitřní úpravy v průběhu výstavby

Výborná občanská vybavenost v blízkém okolí

Tato nabídka je ideální volbou pro ty, kteří hledají nové bydlení v krásném prostředí s možností individuálních úprav dle svých představ.

K náhledu pro Vás máme připravenou kompletní projektovou dokumentaci.

Podmínky zvýhodněného financování při koupi ve fázi výstavby a další informace na vyžádání.

Makléř

Máte zájem o tento dům?

Tímto, v souladu s nařízením Evropského parlamentu a Rady (EU) 2016/679, v platném znění, prohlašuji, že mi je alespoň 16 let a uděluji tak svůj souhlas se zpracováním zadaných údajů (jméno, telefon, e-mail, ip adresa) společnosti B3 Technology, s.r.o., IČ: 07330600, se sídlem Novostavby 126/23, 435 11 Lom (správce dat), za účelem předání dotazu z tohoto formuláře Vámi vybranému inzerentovi a zpětného kontaktování mé osoby. Osobní údaje bude správce zpracovávat manuálně i automaticky přímo prostřednictvím svých zaměstnanců. Informace předané tímto formulářem budou uloženy v databázi správce maximálně po dobu 10 let. Odvolání souhlasu s uložením a zpracováním poskytnutých dat lze e-mailem na info@origo-reality.cz. V případě podezření na neoprávněné použití Vámi poskytnutých údajů máte právo předat podnět k šetření Úřadu pro ochranu osobních údajů. Více informací
Chystáte se prodat nemovitost?
Pomůžeme Vám!

Přihlášení k odběru

Nenechte si ujít nejnovější nabídky prodeje rodinných domů v České Kamenici.