Prodej rodinného domu, Držovice, 105 m2 (ID: 1860412)

Držovice

8 790 000 Kč

včetně provize RK
Hypotéka od 39 286 Kč /měs. Chci hypotéku

Parametry domu

AdresaDržovice
ID100368-1
StavbaCihlová
Stav objektuProjekt
VybavenoNe
Druh objektuSamostatný
Lokalita objektuKlidná část obce
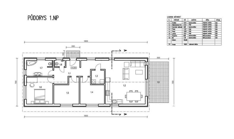
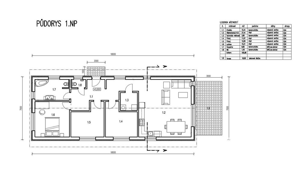
Užitná plocha105 m2
Plocha pozemku619 m2
Třída energetické náročnostiG - Mimořádně nehospodárná

Origo partneři v Držovicích

Popis

Nabízíme k prodeji projekt moderní novostavby rodinného domu o dispozici 4+kk s užitnou plochou 105,98 m², který bude postaven na pozemku o velikosti 619 m² v obci Držovice u Prostějova na ulici Pod Školou.

Co získáte?
- kompletní realizaci stavby na klíč ověřenou stavební firmou
- projektovou dokumentaci a stavební povolení
- energeticky úsporný dům (PENB třída B – velmi úsporná)
- moderní vytápění pomocí tepelného čerpadla vzduch–voda
- pozemek v klidné části obce
- kompletní právní a administrativní servis

Jak probíhá výstavba?

Kupující pouze podepíše smlouvu a uhradí část kupní ceny – o vše ostatní se postaráme za Vás:
- komunikace s úřady,
- realizace stavby,
- technický dohled,
- předání hotového domu.

K nastěhování v druhé polovině roku 2026.

Výstavba začne až po podpisu smluvní dokumentace, což dává novému majiteli možnost upravovat vybrané části projektu dle svých představ.

Cena je včetně pozemku, projektu, všech povolení, tepelného čerpadla, kompletní výstavby domu i provize RK.
Na pozemku je přivedena elektřina i kanalizace, voda bude přivedena než začne výstavba.

Konstrukce a provedení domu:

- Základy a deska: železobetonová základová deska s kompletní přípravou pro inženýrské sítě, izolace a výztuží
- Obvodové zdivo: Porfix PDK 500 mm + zakládací zdivo Porfix PDK 375 mm, štíty z Porfix PDK 250 mm
- Střecha: sedlová, dřevěná vazníková konstrukce, krytina plechová Satjam nebo betonová taška, klempířské prvky v barvě krytiny, difuzní fólie a kompletní podbití v barvě fasády
- Zateplení: podlaha EPS100S (140 mm), strop minerální izolace Dekeool 400 mm
- Fasáda: probarvená pastovitá omítka v odstínu dle výběru investora
- Okna a dveře: plastová, bílá, trojskla; interiérové dveře voštinové se zárubněmi
- Terasa: není v základní ceně

Vnitřní vybavení:

- Vytápění: podlahové teplovodní vytápění napojené na tepelné čerpadlo LG Therma V vzduch–voda 5 kW
- Sociální zařízení: závěsné WC, sprchový kout 90 cm, koupelnová skříňka s umyvadlem, bojler 100 l
- Podlahy: vinyl nebo dlažba
- Obklady a dlažby - dle vlastního výběru (Siko)
- Příčky: zděné z porobetonu 125 mm
- Stropy: SDK podhledy s parotěsnou fólií
- Rozvody: voda PPR, odpady KG/HT, elektroinstalace dle projektové dokumentace

Pokud hledáte moderní, úsporné a bezstarostné bydlení, toto je ideální řešení.

Pro více informací nebo domluvení osobní schůzky mě neváhejte kontaktovat.

Makléř

Máte zájem o tento dům?

Tímto, v souladu s nařízením Evropského parlamentu a Rady (EU) 2016/679, v platném znění, prohlašuji, že mi je alespoň 16 let a uděluji tak svůj souhlas se zpracováním zadaných údajů (jméno, telefon, e-mail, ip adresa) společnosti B3 Technology, s.r.o., IČ: 07330600, se sídlem Novostavby 126/23, 435 11 Lom (správce dat), za účelem předání dotazu z tohoto formuláře Vámi vybranému inzerentovi a zpětného kontaktování mé osoby. Osobní údaje bude správce zpracovávat manuálně i automaticky přímo prostřednictvím svých zaměstnanců. Informace předané tímto formulářem budou uloženy v databázi správce maximálně po dobu 10 let. Odvolání souhlasu s uložením a zpracováním poskytnutých dat lze e-mailem na info@origo-reality.cz. V případě podezření na neoprávněné použití Vámi poskytnutých údajů máte právo předat podnět k šetření Úřadu pro ochranu osobních údajů. Více informací
Chystáte se prodat nemovitost?
Pomůžeme Vám!

Přihlášení k odběru

Nenechte si ujít nejnovější nabídky prodeje rodinných domů v Držovicích.