Prodej bytu 3+1, Praha - Holešovice, Vinařská, 122 m2 (ID: 1860116)

Vinařská, Praha 7

Rezervováno
19 500 000 Kč
/za nemovitost
Informace o ceně v RK
Hypotéka od 87 153 Kč /měs. Chci hypotéku

Parametry bytu

StavRezervováno
AdresaVinařská, Praha 7
ID27846
StavbaSkeletová
Stav objektuVelmi dobrý
Patro5. z 6
VlastnictvíOsobní
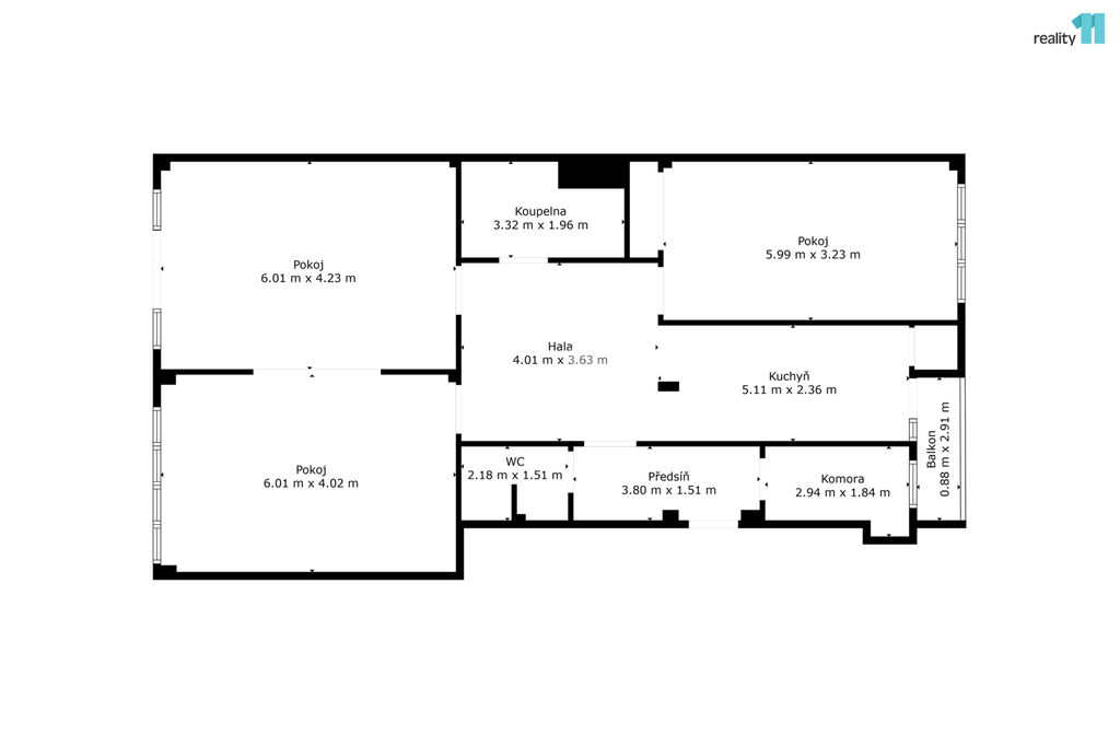
Užitná plocha122 m2
Podlahová plocha122 m2
Třída energetické náročnostiG - Mimořádně nehospodárná
Garáž
Sklep
Lodžie

Origo partneři v Praze 7

Stěhovací služby

Výkup a prodej starého nábytku

Popis

Dovolujeme si nabídnout ke koupi vzdušný a světlý byt s komorou, lodžií a sklepem v prestižní lokalitě Prahy 7 – na Letné. Byt se nachází ve výborně udržované budově z konce 30. let 20. století s výtahem, a to v 5. nadzemním podlaží ze šesti. K bytu je možné přikoupit garážové stání přímo v domě.
Dispozice bytu je 3+1 se samostatnými pokoji, prostornou koupelnou s vanou i sprchovým koutem a odděleným WC. Celková plocha činí 122 m². Kuchyně vybavená kvalitními spotřebiči navazuje na centrální halu, kterou obyvatelé obvykle využívají jako jídelnu. Podlahy v pokojích tvoří klasické parkety ve velmi dobrém stavu, v kuchyni, koupelně a chodbě je praktická vinylová krytina.
K bytu náleží také sklepní kóje a možnost využívat společnou kolárnu v suterénu domu. Vytápění je zajištěno dálkově přes výměníkovou stanici v domě, provozní náklady odpovídají běžnému průměru v této lokalitě.
Letná nabízí kompletní občanskou vybavenost a vynikající dopravní dostupnost – jak městskou hromadnou dopravou, tak automobilem, s dobrým napojením na dálniční síť i rychlým dosahem na letiště. Velkým bonusem je bezprostřední blízkost dvou rozsáhlých parků – Stromovky a Letenských sadů.
Jedná se o exkluzivní nabídku v osobním vlastnictví s možností vlastního parkování. Jde o jedinečnou příležitost k uspokojení kompletních potřeb spojených s bydlením v hlavním městě. Ev. číslo: 27846.

Makléř

Máte zájem o tento byt?

Tímto, v souladu s nařízením Evropského parlamentu a Rady (EU) 2016/679, v platném znění, prohlašuji, že mi je alespoň 16 let a uděluji tak svůj souhlas se zpracováním zadaných údajů (jméno, telefon, e-mail, ip adresa) společnosti B3 Technology, s.r.o., IČ: 07330600, se sídlem Novostavby 126/23, 435 11 Lom (správce dat), za účelem předání dotazu z tohoto formuláře Vámi vybranému inzerentovi a zpětného kontaktování mé osoby. Osobní údaje bude správce zpracovávat manuálně i automaticky přímo prostřednictvím svých zaměstnanců. Informace předané tímto formulářem budou uloženy v databázi správce maximálně po dobu 10 let. Odvolání souhlasu s uložením a zpracováním poskytnutých dat lze e-mailem na info@origo-reality.cz. V případě podezření na neoprávněné použití Vámi poskytnutých údajů máte právo předat podnět k šetření Úřadu pro ochranu osobních údajů. Více informací
Chystáte se prodat nemovitost?
Pomůžeme Vám!

Přihlášení k odběru

Nenechte si ujít nejnovější nabídky prodeje bytů 3+1 v Praze 7.