Pronájem bytu 1+kk, Praha - Řepy, Vondroušova, 21 m2

Vondroušova, Řepy - Praha 17

13 800 Kč
/za měsíc
vratná jistota náklady na bydlení 4013, poplatek za podnájem
Získejte výhodnou HYPOTÉKU Chci hypotéku

Parametry bytu

AdresaVondroušova, Řepy - Praha 17
IDN2767
StavbaPanelová
Stav objektuVelmi dobrý
Patro2. z 7
VybavenoČástečně
Typ objektuPatrový
Lokalita objektuKlidná část obce
VlastnictvíOsobní
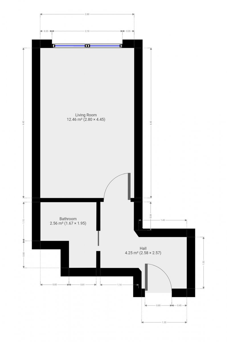
Užitná plocha21 m2
Podlahová plocha21 m2
Elektřina230V
TopeníÚstřední dálkové
Výtah

Origo partneři v Praze 6

Stěhovací služby

Výkup a prodej starého nábytku

Popis

K dlouhodobému podnájmu nabízíme příjemný byt o dispozici 1+kk v oblíbené lokalitě Praha - Řepy. Byt o celkové výměře 21 m2 se nachází v druhém patře panelového domu s výtahem.

Byt se nabízí částečně vybavený. Kuchyně disponuje vařičem, digestoří, lednicí a mikrovlnnou troubou. Je zde také barový stůl s židlemi. Součástí koupelny je sprchový kout, umyvadlo, pračka a toaleta. V předsíni najdeme vestavěnou šatní skříň.

V okolí je dobrá občanská vybavenost - např. supermarket Tesco, Lidl, drogerie, bowling apod. Metropole Zličín je v těsné blízkosti. Dopravní dostupnost zajišťuje zastávka Blatiny, která je vzdálená pět minut chůze od domu.

Byt je volný k nastěhování od 1.12.2025. Majitel preferuje zájemce bez domácích mazlíčků.

Uvedena energetická kategorie G, jelikož nemáme k dispozici PENB.

Byt pronajímá Ideální nájemce - služba, se kterou budete bydlet bezstarostně a za férových podmínek. Když se něco přihodí, k dispozici jsou správci, kteří s vámi vše vyřeší. Pomůžeme s veškerou administrativou, s nastavením plateb a zajistíme vám speciální pojištění. Pojďte bydlet s námi!

Makléř

Máte zájem o tento byt?

Tímto, v souladu s nařízením Evropského parlamentu a Rady (EU) 2016/679, v platném znění, prohlašuji, že mi je alespoň 16 let a uděluji tak svůj souhlas se zpracováním zadaných údajů (jméno, telefon, e-mail, ip adresa) společnosti B3 Technology, s.r.o., IČ: 07330600, se sídlem Novostavby 126/23, 435 11 Lom (správce dat), za účelem předání dotazu z tohoto formuláře Vámi vybranému inzerentovi a zpětného kontaktování mé osoby. Osobní údaje bude správce zpracovávat manuálně i automaticky přímo prostřednictvím svých zaměstnanců. Informace předané tímto formulářem budou uloženy v databázi správce maximálně po dobu 10 let. Odvolání souhlasu s uložením a zpracováním poskytnutých dat lze e-mailem na info@origo-reality.cz. V případě podezření na neoprávněné použití Vámi poskytnutých údajů máte právo předat podnět k šetření Úřadu pro ochranu osobních údajů. Více informací
Chystáte se prodat nemovitost?
Pomůžeme Vám!

Přihlášení k odběru

Nenechte si ujít nejnovější nabídky pronájmu bytů 1+kk v Praze 6.