Prodej bytu 2+kk, Praha - Čakovice, Marty Krásové, 55 m2

Marty Krásové, Praha-Čakovice

7 490 000 Kč
/za nemovitost
cena včetně provize zprostředkovatele s právním servisem
Hypotéka od 33 476 Kč /měs. Chci hypotéku

Parametry bytu

AdresaMarty Krásové, Praha-Čakovice
ID16102025
StavbaCihlová
Stav objektuVelmi dobrý
Patro6. z 8
VybavenoAno
VlastnictvíOsobní
Užitná plocha55 m2
Podlahová plocha52 m2
Třída energetické náročnostiD - Méně úsporná
Ukazatel energetické náročnosti121 kWh/m2 za rok
Elektřina230V
OdpadVeřejná kanalizace
DopravaSilnice, MHD
VodaVodovod
Garáž
Lodžie
Výtah

Origo partneři v Praze 9

Stěhovací služby

Výkup a prodej starého nábytku

Popis

Hledáte moderní a pohodlné bydlení v klidné lokalitě s výbornou občanskou vybaveností a snadnou dostupností do centra Prahy? Tento světlý byt 2+kk s lodžií v pražských Čakovicích by mohl být přesně pro vás.
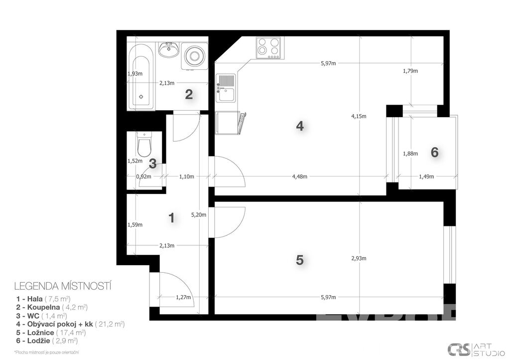
Dispozice a vybavení
Byt o celkové ploše 52 m² + 2,9 m² lodžie se nachází v 5. nadzemním podlaží (z celkem 6) cihlového domu z roku 2007.
Dispozice je velmi praktická – neprůchozí pokoje zajišťují dostatek soukromí a komfortu pro jednotlivce, pár i menší rodinu.
• Obývací pokoj s kuchyňským koutem (21,2 m²) – přímý vstup na lodžii
• Ložnice / dětský pokoj (17,4 m²)
• Koupelna s místem pro pračku i sušičku (4,2 m²)
• Samostatné WC (1,4 m²)
• Chodba (6,0 m²)
• Lodžie (2,9 m²) orientovaná na východ
Podlahy: dlažba (chodba, koupelna, WC), PVC (obývací pokoj), koberec (ložnice/dětský pokoj).
Okna jsou plastová s dobrými izolačními vlastnostmi.
Byt je napojen na optický kabel – vysokorychlostní internet a kvalitní TV připojení.
K bytu náleží garážové stání v podzemních garážích.
Čakovice jsou velmi oblíbenou lokalitou díky klidnému prostředí a vynikající občanské vybavenosti:
• Lidl, pošta, restaurace, kavárny a cukrárna – pár minut chůze
• Mateřské a základní školy, dětská hřiště a sportoviště v okolí
• Jump park, skatepark, plavecký bazén, zimní stadion
• Lesopark Letňany a zámecký park Čakovice – ideální pro procházky a relax
Dopravní dostupnost je skvělá – autobusová zastávka přímo u domu, snadné spojení na metro a do centra města.
Pro majitele elektromobilů je výhodou rychlonabíjecí stanice (300 kW) hned přes ulici.
• Byt není zatížen hypotékou ani zástavním právem
• Vhodné jak pro vlastní bydlení, tak jako investice k pronájmu
Pro více informací nebo sjednání prohlídky mě neváhejte kontaktovat.
Tento byt spojuje klidné bydlení, moderní komfort a skvělou dostupnost.

Makléř

Máte zájem o tento byt?

Tímto, v souladu s nařízením Evropského parlamentu a Rady (EU) 2016/679, v platném znění, prohlašuji, že mi je alespoň 16 let a uděluji tak svůj souhlas se zpracováním zadaných údajů (jméno, telefon, e-mail, ip adresa) společnosti B3 Technology, s.r.o., IČ: 07330600, se sídlem Novostavby 126/23, 435 11 Lom (správce dat), za účelem předání dotazu z tohoto formuláře Vámi vybranému inzerentovi a zpětného kontaktování mé osoby. Osobní údaje bude správce zpracovávat manuálně i automaticky přímo prostřednictvím svých zaměstnanců. Informace předané tímto formulářem budou uloženy v databázi správce maximálně po dobu 10 let. Odvolání souhlasu s uložením a zpracováním poskytnutých dat lze e-mailem na info@origo-reality.cz. V případě podezření na neoprávněné použití Vámi poskytnutých údajů máte právo předat podnět k šetření Úřadu pro ochranu osobních údajů. Více informací
Chystáte se prodat nemovitost?
Pomůžeme Vám!

Přihlášení k odběru

Nenechte si ujít nejnovější nabídky prodeje bytů 2+kk v Praze 9.