Prodej bytu 2+1, Praha - Vinohrady, Slezská, 54 m2

Slezská, Praha 3, Vinohrady

9 500 000 Kč
/za nemovitost
Hypotéka od 42 459 Kč /měs. Chci hypotéku

Parametry bytu

AdresaSlezská, Praha 3, Vinohrady
IDHMA1382-0002
StavbaCihlová
Stav objektuDobrý
Patro5. z 7
VybavenoNe
Typ objektuPatrový
VlastnictvíOsobní
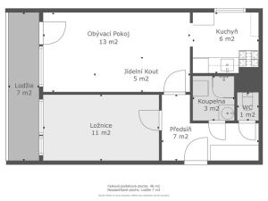
Užitná plocha54 m2
Podlahová plocha54 m2
Třída energetické náročnostiG - Mimořádně nehospodárná
TopeníÚstřední dálkové
Sklep
Výtah
Bezbarierový přístup

Origo partneři v Praze 3

Stěhovací služby

Výkup a prodej starého nábytku

Popis

REZERVACEProdej bytu 2+1 ( 54m2 ) kompletně orientovaného do tichého vnitrobloku se nachází v 5.podlaží klasického cihlového bytového domu v mimořádně atraktivní lokalitě Praha 3 - Vinohrady, ve Slezské ulici nedaleko náměstí Jiřího z Poděbrad, obchodního centra Flora s nástupní stanicí metra Flora a tramvajovými spoji v minutové vzdálenosti.

Praktickou dispozici tvoří samostatná kuchyň s oknem, 2 neprůchozí pokoje, vstupní chodba, koupelna s vanou a samostatná toaleta zvlášť. K bytu náleží sklep.

Interiér vyžaduje částečnou renovaci. Nová plastová okna, na podlahách původní dřevěné parkety, v kuchyni plovoucí podlaha. Topení je dálkové centrální.
Velmi nízké provozní náklady vzhledem k výnosům z podílů komerčně využívaných prostor v domě.
Přibližně 17 000 - 18 000 ročně. V domě je atomový kryt!

Zajímavá investiční příležitost zajišťující dlouhodobě stabilní výnos, vzhledem k silné poptávce pro české i zahraniční klientely po nájemních bytech v Rezidenci Korunní Dvůr v atraktivní lokalitě Královských Vinohrad.

Atraktivní rezidenční lokalita pražských Vinohrad disponuje veškerými službami a výborným spojením MHD do centra metropole. Jen pár kroků od velmi klidné polohy bytu se nachází nepřeberné množství oblíbených trendy bister, kaváren a restaurací, populární tradiční bio trh na náměstí Jiřího z Poděbrad, velký výběr školek, škol, divadlo Na Vinohradech a v pěší vzdálenosti oblíbené Riegrovy sady.

Energetická náročnost budovy: G (nebyla sdělena vlastníkem nemovitosti) ID nemovitosti HMA1382-0002.

Makléř

Máte zájem o tento byt?

Tímto, v souladu s nařízením Evropského parlamentu a Rady (EU) 2016/679, v platném znění, prohlašuji, že mi je alespoň 16 let a uděluji tak svůj souhlas se zpracováním zadaných údajů (jméno, telefon, e-mail, ip adresa) společnosti B3 Technology, s.r.o., IČ: 07330600, se sídlem Novostavby 126/23, 435 11 Lom (správce dat), za účelem předání dotazu z tohoto formuláře Vámi vybranému inzerentovi a zpětného kontaktování mé osoby. Osobní údaje bude správce zpracovávat manuálně i automaticky přímo prostřednictvím svých zaměstnanců. Informace předané tímto formulářem budou uloženy v databázi správce maximálně po dobu 10 let. Odvolání souhlasu s uložením a zpracováním poskytnutých dat lze e-mailem na info@origo-reality.cz. V případě podezření na neoprávněné použití Vámi poskytnutých údajů máte právo předat podnět k šetření Úřadu pro ochranu osobních údajů. Více informací
Chystáte se prodat nemovitost?
Pomůžeme Vám!

Přihlášení k odběru

Nenechte si ujít nejnovější nabídky prodeje bytů 2+1 v Praze 3.