Pronájem bytu 3+kk, Praha - Prosek, Čakovická, 83 m2

Čakovická, Prosek - Praha 9

36 000 Kč
/za měsíc
vratná jistota, náklady na bydlení 8200 Kč, poplatek za podnájem
Získejte výhodnou HYPOTÉKU Chci hypotéku

Parametry bytu

AdresaČakovická, Prosek - Praha 9
IDN6857
StavbaCihlová
Stav objektuNovostavba
Patro3. z 7
VybavenoNe
Typ objektuPatrový
Lokalita objektuKlidná část obce
VlastnictvíOsobní
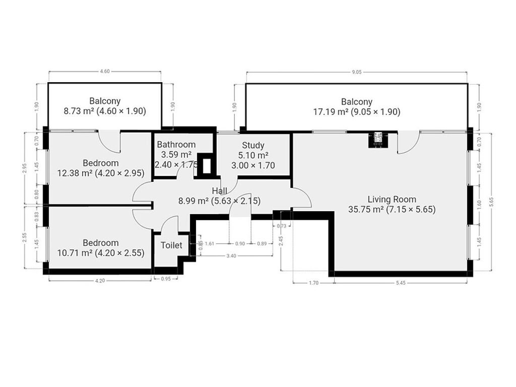
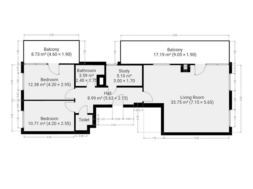
Užitná plocha83 m2
Podlahová plocha83 m2
Třída energetické náročnostiB - Velmi úsporná
Elektřina230V
Balkon
Garáž
Sklep
Terasa
Výtah
Parkování

Origo partneři v Praze 9

Stěhovací služby

Výkup a prodej starého nábytku

Popis

K dlouhodobému podnájmu nabízíme prostorný byt o dispozici 3+kk v moderním rezidenčním projektu Finep na adrese Čakovická 883/44, Praha 9. Byt o celkové výměře 83 m² se nachází ve 3. podlaží domu s výtahem. K bytu náleží velká terasa o rozloze 25 m², garážové stání v ceně nájmu a sklepní kóje.

Byt se nabízí nevybavený, avšak s kompletně zařízenou kuchyňskou linkou včetně varné desky, trouby, digestoře, myčky a vestavěné pračky se sušičkou. Výhodou je také praktická komora / šatna, která poskytuje dostatek úložného prostoru.

V koupelně se nachází vana, toaleta je oddělená. Z obývacího pokoje i ložnice je přímý vstup na prostornou terasu, která nabízí příjemné venkovní posezení. Součástí bude také vestavěná pračka se sušičkou.

Skvělou výhodou je pouze tříminutová pěší vzdálenost na stanici metra Prosek, díky čemuž je zajištěna výborná dostupnost do centra města. V okolí se nachází také obchodní centrum Letňany, restaurace, školy, školky a zastávky MHD.

Byt bude volný k nastěhování od 1. 11. 2025.

Makléř

Máte zájem o tento byt?

Tímto, v souladu s nařízením Evropského parlamentu a Rady (EU) 2016/679, v platném znění, prohlašuji, že mi je alespoň 16 let a uděluji tak svůj souhlas se zpracováním zadaných údajů (jméno, telefon, e-mail, ip adresa) společnosti B3 Technology, s.r.o., IČ: 07330600, se sídlem Novostavby 126/23, 435 11 Lom (správce dat), za účelem předání dotazu z tohoto formuláře Vámi vybranému inzerentovi a zpětného kontaktování mé osoby. Osobní údaje bude správce zpracovávat manuálně i automaticky přímo prostřednictvím svých zaměstnanců. Informace předané tímto formulářem budou uloženy v databázi správce maximálně po dobu 10 let. Odvolání souhlasu s uložením a zpracováním poskytnutých dat lze e-mailem na info@origo-reality.cz. V případě podezření na neoprávněné použití Vámi poskytnutých údajů máte právo předat podnět k šetření Úřadu pro ochranu osobních údajů. Více informací
Chystáte se prodat nemovitost?
Pomůžeme Vám!

Přihlášení k odběru

Nenechte si ujít nejnovější nabídky pronájmu bytů 3+kk v Praze 9.