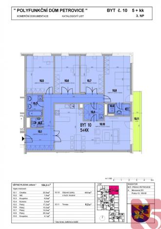
Prodej bytu 5+kk, Praha - Petrovice, Edisonova, 154 m2
Edisonova, Praha 10, Petrovice
/za nemovitost
včetně provize a právního servisu
Parametry bytu
| Adresa | Edisonova, Praha 10, Petrovice | 
|---|---|
| ID | R519518 | 
| Stavba | Cihlová | 
| Stav objektu | Novostavba | 
| Patro | 3. z 5 | 
| Vybaveno | Částečně | 
| Typ objektu | Patrový | 
| Vlastnictví | Osobní | 
| Užitná plocha | 154 m2 | 
| Podlahová plocha | 165 m2 | 
| Třída energetické náročnosti | C - Úsporná | 
| Elektřina | 230V, 400V | 
| Odpad | Veřejná kanalizace | 
| Topení | Ústřední dálkové | 
| Komunikace | Zpevněná, Asfaltová, Betonová, Dlážděná | 
| Telekomunikace | Telefon, Internet, Kabelová televize, Kabelové rozvody | 
| Doprava | Vlak, Dálnice, Silnice, MHD, Autobus | 
| Voda | Vodovod | 
| Garáž | |
| Sklep | |
| Terasa | |
| Výtah | |
| Bezbarierový přístup | |
| Parkování | |
| Nízkoenergetický | 
Popis
Prodej exkluzivního bytu 5kk 154,3m2 v novostavbě, Petrovice, ul. Edisonova, terasa 8,2m2, garážové stání, sklep.
Výjimečně prostorný byt v nádherné Lokalitě Petrovic, bezprostředně sousedící s Hostivařským lesoparkem a přehradou. 
V okolí zástavba rodinných domů, sportoviště, zeleň, MŠ a ZŠ, Gymnázia, Poliklinika Petrovice, obchody a restaurace, autobusová stanice Jakobiho. Vše pešky do 5 minut.
Ideální rodinný byt s velkým obývacím pokojem a čtyřmi pokoji. Ložnice rodičů má velké rohové okno  a vlastní koupelnu s toaletou. Pokoje mají samostatné vstupy z prostorné chodby do tvaru L.  Zde i hlavní koupelna s vanou a dvěma umyvadly, samostatná toaleta, komora. U vstupu velká šatní skříň a prosklené dvoukřídlé dveře do obývacího pokoje. 
Velký kuchyňský kout s vestavěnými spotřebiči navazuje na jídelnu a obytnou část prosvětlenou velkými francouzskými okny kterými projdete na terasu s výhledem do zeleně.
K bytu patří jedno garážové stání za kterým najdete prostorný sklep, chráněn bezpečnostními dveřmi.
Byt se nachází v polyfunkčním domě kde najdete knihovnu, kadeřnictví, poštovnu, restauraci a Úřad městské části Praha-Petrovice. Vše potřebné máte opravdu na dosah.
Vřele doporučuji prohlídku, byt Vás jistě zaujme svým prostorem a uspořádáním.
Napište mi Vaše požadavky na vysněný byt, rád Vám ho pomohu najít.
Přihlášení k odběru
Nenechte si ujít nejnovější nabídky prodeje bytů 5+kk v Praze 10.
 
                                                                                     
                                                                                     
                                                                                     
                                                                                     
                                                                                     
                                                                                     
                                                                                     
                                                                                     
                                                                                     
                                                                                     
                                                                                     
                                                                                     
                                                                                     
                                                                                     
                                                                                     
                                                                                     
                                                                                     
                                                                                     
                                                                                     
                                                                                     
                                                                                     
                                                                                     
                                                                                     
                                                                                     
                                                                                     
                                                                                     
                                                                                     
                                                                                     
                                                                                     
                                                                                     
                                                                                     
                                                                                     
                                                                                     
                                                                                     
                                                                                     
                                                                                     
                                                                                     
                                                             
                         
         
         
         
         
         
         
         
        