Prodej činžovního domu, Praha - Střížkov, Střížkovská, 658 m2

Střížkovská, Praha

49 990 000 Kč
/za nemovitost
včetně provize, cena k jednání
Hypotéka od 223 425 Kč /měs. Chci hypotéku

Parametry nemovitosti

AdresaStřížkovská, Praha
ID000088
StavbaSmíšená
Stav objektuPřed rekonstrukcí
VybavenoČástečně
Lokalita objektuKlidná část obce
Užitná plocha658 m2
Zastavěná plocha135 m2
OdpadVeřejná kanalizace
DopravaMHD

Origo partneři v Praze 8

Stěhovací služby

Výkup a prodej starého nábytku

Popis

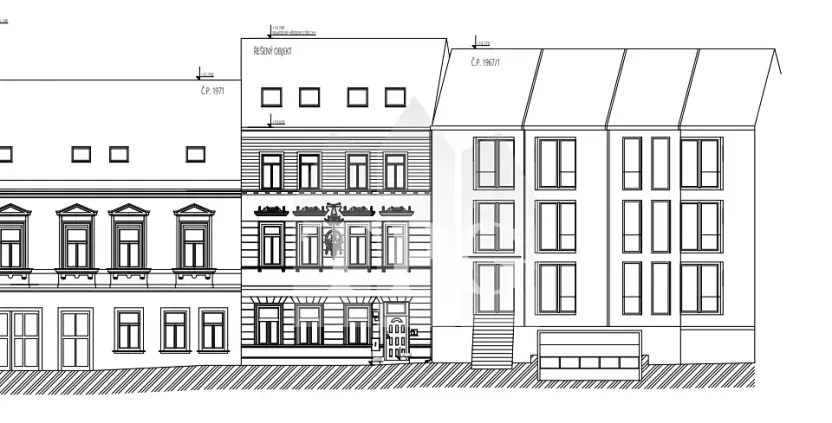
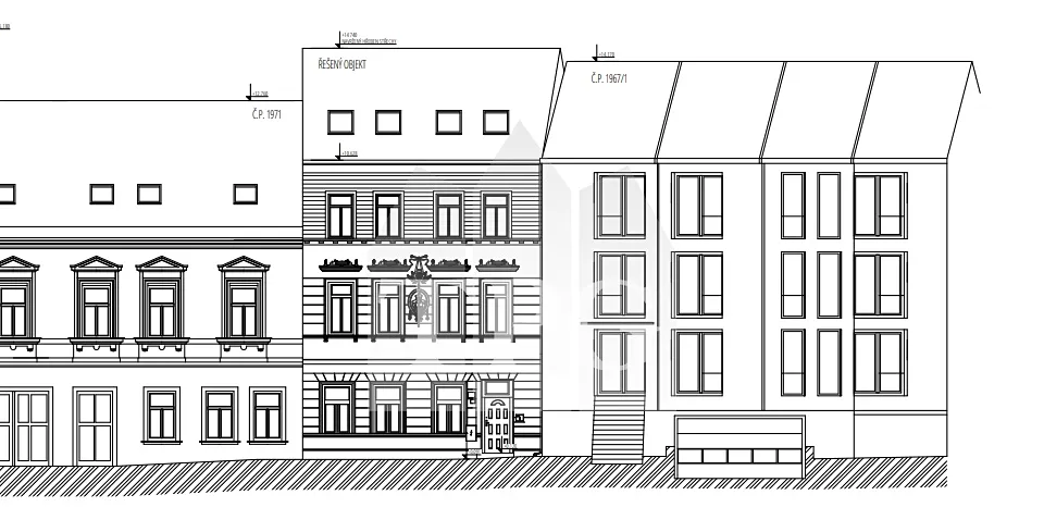
Nabízíme exkluzivně čtyřpatrový činžovní dům ve vyhledávané lokalitě, širším centru Prahy 8 - Libeň. Podlahová plocha je 658 m2. K dispozici je vypracovaná studie na rozšíření plochy na 819 m2 a zvýšení nemovitosti o 1,5 m na úroveň okolní zástavby. Dům je možné předělat na bytový, s luxusními byty, ateliery a parkovacími místy. Stavební povolení na rozšíření stavby je v řízení, čeká se pouze na jeho vydání příslušným úřadem. K rekonstrukci je možné využít i přilehlý pozemek s rovinatými terasami, který je rovněž zahrnutý do stavebního záměru a nabízí k prodeji. Výměra pozemku pod domem je 169 m2 a přilehlé zahrady 837 m2.
Celý pozemek je oplocený sítě je možné vézt jak z ulice Čertův vršek, tak z ulice Střížkovská. Po celé délce pozemku je u plotu vedené betonové schodiště. Propojuje obě rovinaté části.
V KN je uvedená plocha zahrady 796 m2 a 41m2 stavba. V horní části pozemku byla stavba, menší domek, který majitel nechal zbourat. Domek v horní části je možné obnovit.
Dům, ve kterém se zastavil čas, dýchne na vás kus historie, je určený zvláště pro milovníky staré Prahy a domů z doby secese, navíc se nachází v klidné lokalitě.
V současné době je využívaný jako penzion se 40 lůžky. V přízemí se nachází 3 místnosti - 7 lůžek, v prvním patře je šest místností -13 lůžek, ve druhém patře čtyři místnosti - 9 lůžek, v podkroví jsou dvě místnosti 5 lůžek. Pokoje mají k dispozici kuchyně a koupelny. Ve vestibulu jsou dva byty 1+kk a 1+1 celkem 6 lůžek. Penzion díky výborné dostupnosti /autobus, tramvaj, metro/ je plně obsazen.
Čistý měsíční zisk po odečtení provozních nákladů činí cca 250 tis. Kč / nejsou započítané náklady na běžné opravy/.
Více informací u makléře.

Makléř

Máte zájem o tuto nemovistost?

Tímto, v souladu s nařízením Evropského parlamentu a Rady (EU) 2016/679, v platném znění, prohlašuji, že mi je alespoň 16 let a uděluji tak svůj souhlas se zpracováním zadaných údajů (jméno, telefon, e-mail, ip adresa) společnosti B3 Technology, s.r.o., IČ: 07330600, se sídlem Novostavby 126/23, 435 11 Lom (správce dat), za účelem předání dotazu z tohoto formuláře Vámi vybranému inzerentovi a zpětného kontaktování mé osoby. Osobní údaje bude správce zpracovávat manuálně i automaticky přímo prostřednictvím svých zaměstnanců. Informace předané tímto formulářem budou uloženy v databázi správce maximálně po dobu 10 let. Odvolání souhlasu s uložením a zpracováním poskytnutých dat lze e-mailem na info@origo-reality.cz. V případě podezření na neoprávněné použití Vámi poskytnutých údajů máte právo předat podnět k šetření Úřadu pro ochranu osobních údajů. Více informací
Chystáte se prodat nemovitost?
Pomůžeme Vám!

Přihlášení k odběru

Nenechte si ujít nejnovější nabídky prodeje činžovních domů v Praze 8.