Pronájem bytu 1+kk, Praha - Michle, Adamovská, 25 m2

Adamovská, Michle - Praha 4

15 990 Kč
/za měsíc
vratná jistota, náklady na bydlení 4 099 Kč, poplatek za podnájem
Získejte výhodnou HYPOTÉKU Chci hypotéku

Parametry bytu

AdresaAdamovská, Michle - Praha 4
IDN2961
StavbaCihlová
Stav objektuVelmi dobrý
Patro1. z 5
VybavenoAno
Typ objektuPatrový
Lokalita objektuKlidná část obce
VlastnictvíOsobní
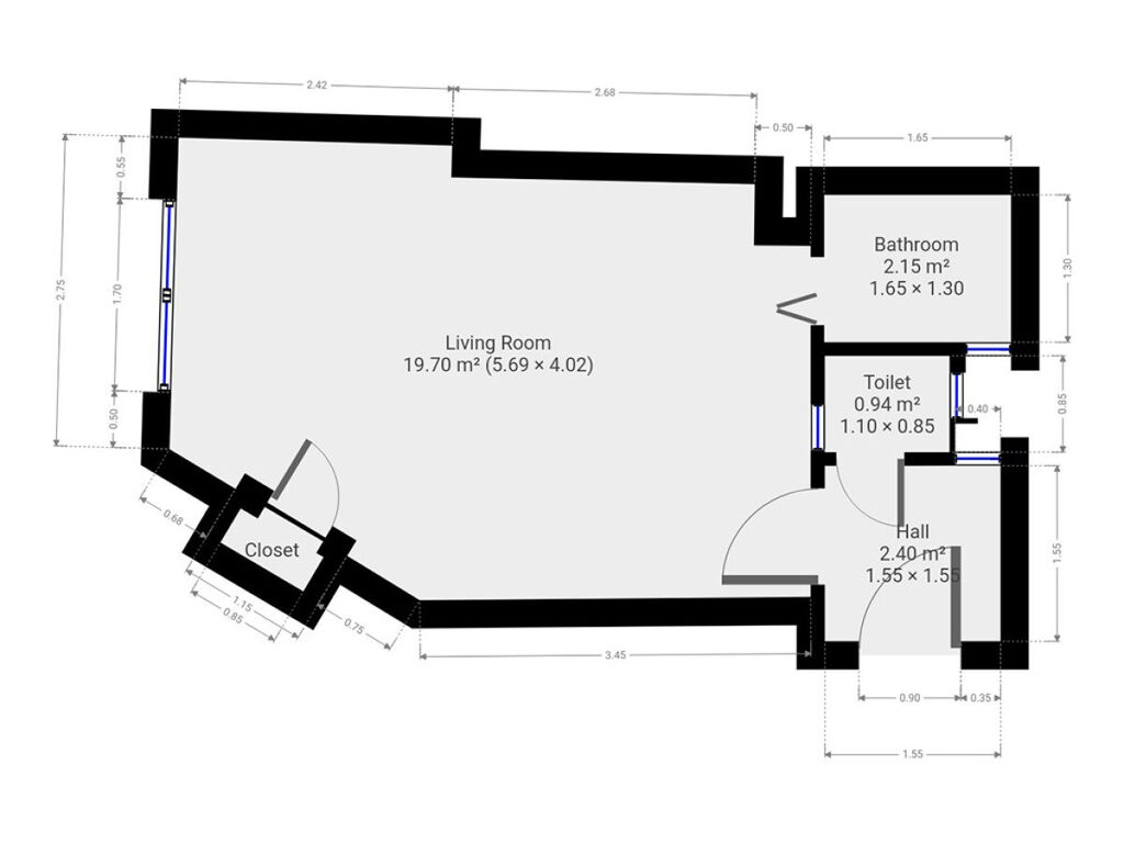
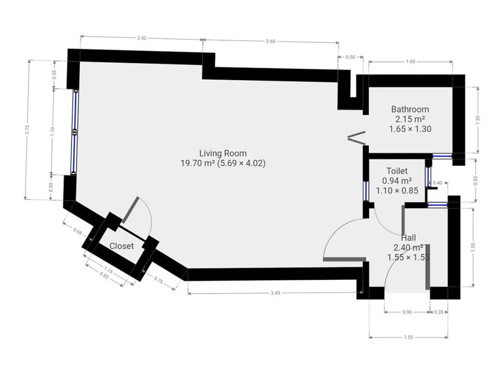
Užitná plocha25 m2
Podlahová plocha25 m2
Elektřina230V
TopeníLokální plynové
DopravaVlak, Dálnice, Silnice, MHD, Autobus
Výtah

Origo partneři v Praze 4

Stěhovací služby

Výkup a prodej starého nábytku

Popis

K dlouhodobému podnájmu nabízíme příjemný byt o dispozici 1+kk na ulici Adamovská v klidné lokalitě Praha - Michle. Byt o celkové výměře 25 m2 se nachází v prvním patře cihlového domu.

Byt se nabízí plně vybavený. Kuchyňský kout disponuje linkou se spotřebiči - trouba, sporák a lednice. Obývací část disponuje pohovkou a skříní. Je zde i šatna. V koupelně se nachází sprchový kout, umyvadlo a zrcadlo. Toaleta je oddělená. Předsíň disponuje botníkem, věšákem a pračkou.

V okolí domu se nachází veškerá občanská vybavenost - restaurace, obchody, potraviny, školy a parky. Výborná dopravní dostupnost - zastávky Pod Jezerkou a Kloboučnická.

Byt je volný k nastěhování od 1.7.2026.

Uvedena energetická kategorie G, jelikož nemáme k dispozici PENB.

Byt pronajímá Ideální nájemce - služba, se kterou budete bydlet bezstarostně a za férových podmínek. Když se něco přihodí, k dispozici jsou správci, kteří s vámi vše vyřeší. Pomůžeme s veškerou administrativou, s nastavením plateb a zajistíme vám speciální pojištění. Pojďte bydlet s námi!

Makléř

Máte zájem o tento byt?

Tímto, v souladu s nařízením Evropského parlamentu a Rady (EU) 2016/679, v platném znění, prohlašuji, že mi je alespoň 16 let a uděluji tak svůj souhlas se zpracováním zadaných údajů (jméno, telefon, e-mail, ip adresa) společnosti B3 Technology, s.r.o., IČ: 07330600, se sídlem Novostavby 126/23, 435 11 Lom (správce dat), za účelem předání dotazu z tohoto formuláře Vámi vybranému inzerentovi a zpětného kontaktování mé osoby. Osobní údaje bude správce zpracovávat manuálně i automaticky přímo prostřednictvím svých zaměstnanců. Informace předané tímto formulářem budou uloženy v databázi správce maximálně po dobu 10 let. Odvolání souhlasu s uložením a zpracováním poskytnutých dat lze e-mailem na info@origo-reality.cz. V případě podezření na neoprávněné použití Vámi poskytnutých údajů máte právo předat podnět k šetření Úřadu pro ochranu osobních údajů. Více informací
Chystáte se prodat nemovitost?
Pomůžeme Vám!