Prodej rodinného domu, Píšťany, 69 m2 (ID: 1859056)

Píšťany

6 990 000 Kč

včetně provize RK
Hypotéka od 31 241 Kč /měs. Chci hypotéku

Parametry domu

AdresaPíšťany
ID5
StavbaDřevěná
Stav objektuProjekt
VybavenoNe
Druh objektuSamostatný
Lokalita objektuKlidná část obce
VlastnictvíOsobní
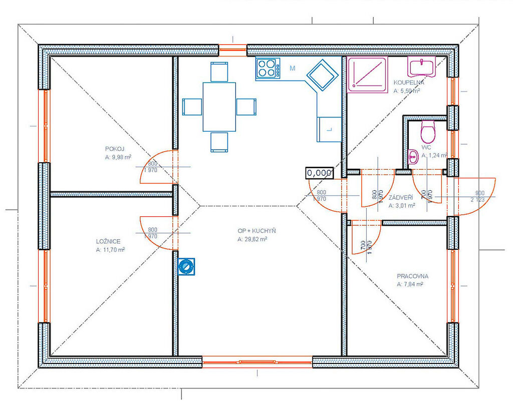
Užitná plocha69 m2
Zastavěná plocha81 m2
Plocha pozemku852 m2
Třída energetické náročnostiB - Velmi úsporná

Origo partneři v Píšťanech

Okna a dveře

Rekonstrukce

Zámečnické práce

Popis

Dovoluji si Vám nabídnout výstavbu rodinného domu na klíč v obci Píšťany u Litoměřic. Jedná se o rodinný dům v provedení nízkoenergetické třídy s podlahovou plochou 69m², při zastavěné ploše 81m² a dispozici 4+kk. Dům je nabízen na konkrétním pozemku, který má výměru 852m² a jeho kupní cena je již zahrnuta do celkové nabídkové ceny. Tepelně izolační vlastnosti této nízkoenergetické stavby odpovídají přísným kritériím pro tuto kategorii rodinných domů. Doba stavby na klíč, v závislosti na výběru zařizovacích předmětů, je cca 6 až 9 měsíců od vydání stavebního povolení, v případě zájmu zajistíme. Dále je možnost se rozhodnout o výstavbě v různých fází dokončení domu (bližší informace na telefonu či v kanceláři). Z inženýrských sítí je na hranici pozemku elektřina, voda a kanalizace. Pozemek není v záplavové oblasti. Svojí polohou nabízí pozemek velmi klidné a pěkné bydlení s výhledem na České středohoří. V blízkosti domu je jezero s přístavištěm menších lodí, kde je možnost zapůjčení šlapadel a lodí. V létě je jezero využíváno ke koupání. V okolí je spousta cyklostezek a přívoz přes řeku Labe. Veškerá občanská vybavenost v nedalekých Litoměřicích a základní vybavenost včetně mateřské a základní školy v 1 km vzdálených Žalhosticích. Dopravní dostupnost je velice dobrá do Litoměřic 3 km, Ústí nad Labem 33 km, či do Prahy po D8 60 km. Mohu Vám nabídnout kompletní zajištění realitních, právních a finančních služeb. Pro více informací ohledně výstavby nebo domluvení prohlídky pozemku mě kontaktujte, velice ráda se Vám budu věnovat.

Makléř

Máte zájem o tento dům?

Tímto, v souladu s nařízením Evropského parlamentu a Rady (EU) 2016/679, v platném znění, prohlašuji, že mi je alespoň 16 let a uděluji tak svůj souhlas se zpracováním zadaných údajů (jméno, telefon, e-mail, ip adresa) společnosti B3 Technology, s.r.o., IČ: 07330600, se sídlem Novostavby 126/23, 435 11 Lom (správce dat), za účelem předání dotazu z tohoto formuláře Vámi vybranému inzerentovi a zpětného kontaktování mé osoby. Osobní údaje bude správce zpracovávat manuálně i automaticky přímo prostřednictvím svých zaměstnanců. Informace předané tímto formulářem budou uloženy v databázi správce maximálně po dobu 10 let. Odvolání souhlasu s uložením a zpracováním poskytnutých dat lze e-mailem na info@origo-reality.cz. V případě podezření na neoprávněné použití Vámi poskytnutých údajů máte právo předat podnět k šetření Úřadu pro ochranu osobních údajů. Více informací
Chystáte se prodat nemovitost?
Pomůžeme Vám!

Přihlášení k odběru

Nenechte si ujít nejnovější nabídky prodeje rodinných domů v Píšťanech.