Pronájem bytu 3+kk, Praha - Dejvice, Komornická, 78 m2

Komornická, Dejvice - Praha 6

32 400 Kč
/za měsíc
vratná jistota, náklady na bydlení 6.000,-Kč poplatek za podnájem
Získejte výhodnou HYPOTÉKU Chci hypotéku

Parametry bytu

AdresaKomornická, Dejvice - Praha 6
IDN6850
StavbaKamenná
Stav objektuPo rekonstrukci
VybavenoNe
Typ objektuPatrový
Lokalita objektuKlidná část obce
VlastnictvíOsobní
Užitná plocha78 m2
Podlahová plocha78 m2
Třída energetické náročnostiG - Mimořádně nehospodárná
Elektřina230V
TopeníLokální plynové
DopravaSilnice, MHD, Autobus
Sklep
Výtah
Bezbarierový přístup
Parkování

Origo partneři v Praze 6

Stěhovací služby

Výkup a prodej starého nábytku

Popis

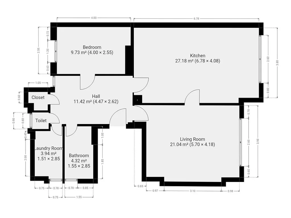
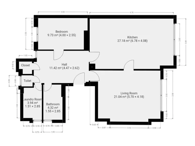
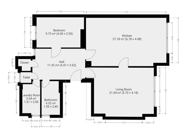
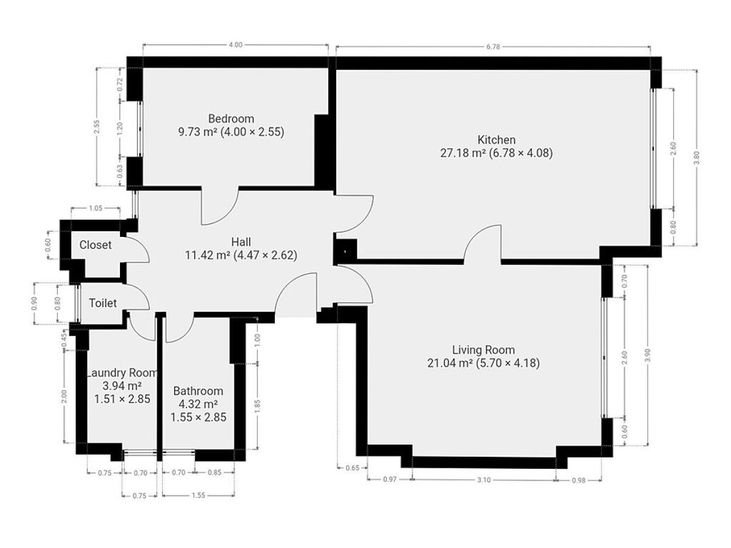
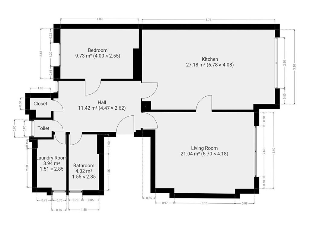
K dlouhodobému pronájmu nabízíme moderní a světlý byt 3+kk v klidné a atraktivní lokalitě Praha 6 – Dejvice. Byt o celkové ploše 78 m² se nachází v přízemí udržovaného domu bez výtahu. Součástí bytu je praktický sklep a parkovací stání na oploceném pozemku.

Byt je nabízen nezařízený, což umožňuje zařídit si interiér podle vlastního vkusu. Kuchyň je vybavena indukční varnou deskou, myčkou, elektrickou troubou, digestoří a dostatkem úložného prostoru. Obývací část nabízí světlý a prostorný prostor vhodný jak pro sedací soupravu, tak například pro jídelní kout. K dispozici je také jeden samostatný pokoj, který může sloužit jako ložnice. Koupelna je vybavena vanou a umyvadlem, toaleta je samostatná. Součástí bytu je i praktická šatna či úložná místnost.

V okolí domu je kompletní občanská vybavenost – obchod s potravinami Žabka, pošta, školy a školky, sportoviště, restaurace a lékařská péče. Pro volný čas je ideální Přírodní park Šárka, jen pár minut chůze od domu. Výbornou dopravní dostupnost zajišťují blízké zastávky autobusů a tramvají.

Byt je k nastěhování ihned.

Energetická třída: G (průkaz nedodán).

Makléř

Máte zájem o tento byt?

Tímto, v souladu s nařízením Evropského parlamentu a Rady (EU) 2016/679, v platném znění, prohlašuji, že mi je alespoň 16 let a uděluji tak svůj souhlas se zpracováním zadaných údajů (jméno, telefon, e-mail, ip adresa) společnosti B3 Technology, s.r.o., IČ: 07330600, se sídlem Novostavby 126/23, 435 11 Lom (správce dat), za účelem předání dotazu z tohoto formuláře Vámi vybranému inzerentovi a zpětného kontaktování mé osoby. Osobní údaje bude správce zpracovávat manuálně i automaticky přímo prostřednictvím svých zaměstnanců. Informace předané tímto formulářem budou uloženy v databázi správce maximálně po dobu 10 let. Odvolání souhlasu s uložením a zpracováním poskytnutých dat lze e-mailem na info@origo-reality.cz. V případě podezření na neoprávněné použití Vámi poskytnutých údajů máte právo předat podnět k šetření Úřadu pro ochranu osobních údajů. Více informací
Chystáte se prodat nemovitost?
Pomůžeme Vám!

Přihlášení k odběru

Nenechte si ujít nejnovější nabídky pronájmu bytů 3+kk v Praze 6.