Pronájem kanceláře, Praha - Nové Město, Václavské náměstí, 120 m2 (ID: 1858418)

Václavské náměstí, Praha, Nové Město

10 €
/za metr čtvereční / měsíc
Poplatky za služby kancelář cca 20 Kč/m2/měsíc + energie cca 40 Kč/m2/měsíc + DPH
Získejte výhodnou HYPOTÉKU Chci hypotéku

Parametry nemovitosti

AdresaVáclavské náměstí, Praha, Nové Město
ID00059-3
StavbaCihlová
Stav objektuDobrý
Patro2.
Užitná plocha120 m2
Třída energetické náročnostiG - Mimořádně nehospodárná

Origo partneři v Praze 1

Stěhovací služby

Výkup a prodej starého nábytku

Popis

VÁCLAVSKÉ NÁMĚSTÍ 18 - PODNÁJEM KANCELÁŘE S PARKOVÁNÍM

Nabízené kanceláře ve stávajícím stavu k dlouhodobému podnájmu jsou připravené k okamžitému nastěhování bez nutnosti úprav ze strany podnájemce. Odkup nábytku dohodou.

Jednotka:

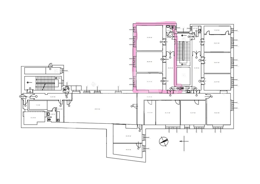
Prostor je dispozičně řešen takto:
• 3 samostatné neprůchozí velké kanceláře
• 2x vlastní toaleta
• kuchyňka v chodbě

Parkování není k dispozici.

Poplatky: Poplatky za služby (kancelář) – cca 20 Kč/m2/měsíc + spotřeby energií cca 40 Kč/m2/měsíc + DPH.

K nastěhování DOHODOU.

NEHRADÍTE PROVIZI.

Makléř

Máte zájem o tuto nemovistost?

Tímto, v souladu s nařízením Evropského parlamentu a Rady (EU) 2016/679, v platném znění, prohlašuji, že mi je alespoň 16 let a uděluji tak svůj souhlas se zpracováním zadaných údajů (jméno, telefon, e-mail, ip adresa) společnosti B3 Technology, s.r.o., IČ: 07330600, se sídlem Novostavby 126/23, 435 11 Lom (správce dat), za účelem předání dotazu z tohoto formuláře Vámi vybranému inzerentovi a zpětného kontaktování mé osoby. Osobní údaje bude správce zpracovávat manuálně i automaticky přímo prostřednictvím svých zaměstnanců. Informace předané tímto formulářem budou uloženy v databázi správce maximálně po dobu 10 let. Odvolání souhlasu s uložením a zpracováním poskytnutých dat lze e-mailem na info@origo-reality.cz. V případě podezření na neoprávněné použití Vámi poskytnutých údajů máte právo předat podnět k šetření Úřadu pro ochranu osobních údajů. Více informací
Chystáte se prodat nemovitost?
Pomůžeme Vám!