Pronájem rodinného domu, Zlonín, Hlavní, 78 m2

Hlavní, Zlonín

30 000 Kč
/za měsíc
nájemné 30.000Kč, provize 30.000Kč, kauce 35.000Kč
Získejte výhodnou HYPOTÉKU Chci hypotéku

Parametry domu

AdresaHlavní, Zlonín
ID10294
StavbaSmíšená
Stav objektuDobrý
Druh objektuSamostatný
Užitná plocha78 m2
Zastavěná plocha65 m2
Podlahová plocha78 m2
Plocha pozemku165 m2
Plocha zahrady100 m2
DopravaVlak, Dálnice, Silnice, Autobus
Bezbarierový přístup
Parkování

Origo partneři v Zloníně

Popis

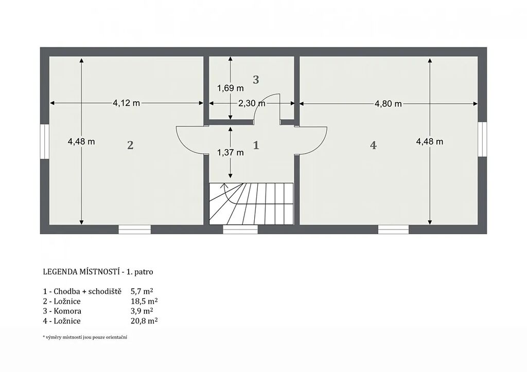
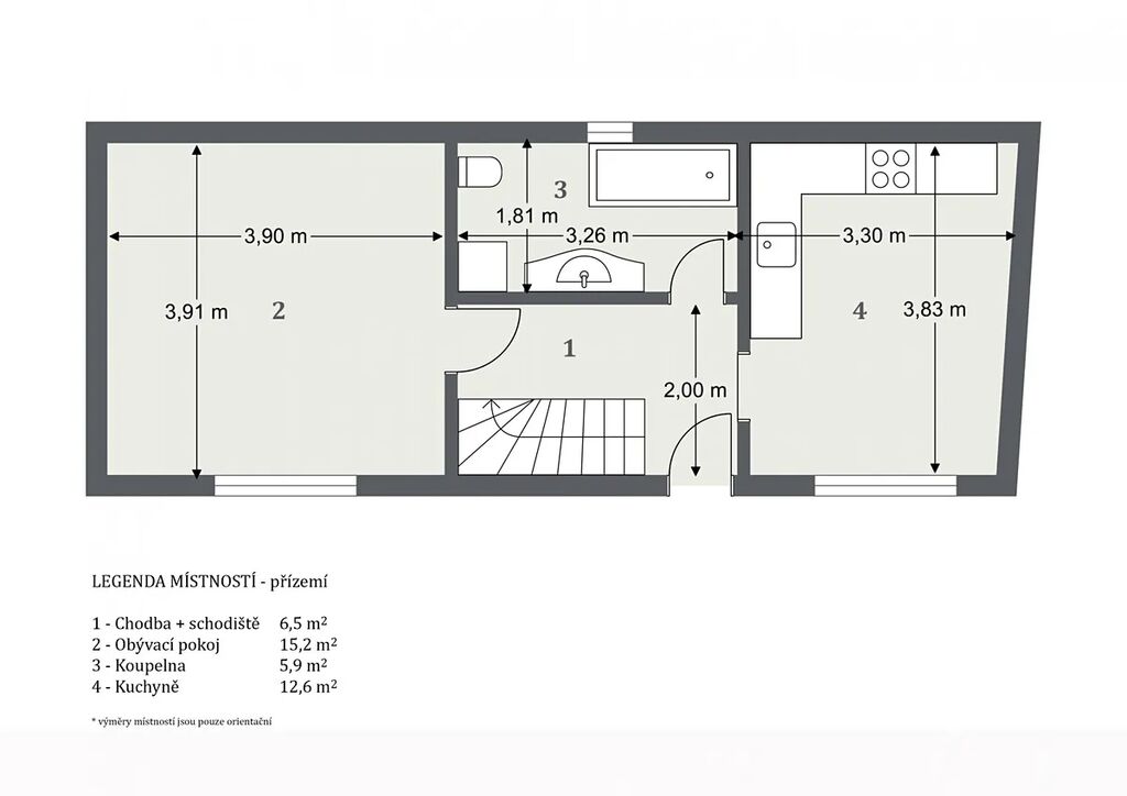
Exkluzivně nabízíme k pronájmu rodinný dům 3+1 o užitné ploše 78 m2, který se nachází na pozemku o velikosti 165 m2.

V přízemí je vstupní chodba, obývací pokoj, kuchyň se spotřebiči a myčkou, koupelna a WC. V patře naleznete dva samostatné pokoje a šatnu. Nemovitost se nabízí bez zařízení.

Vytápění je zajištěno elektrickým kotlem s radiátory.

Finanční podmínky pronájmu:

Nájemné: 30 000 Kč měsíčně

Záloha na vodu: 500 Kč / osoba / měsíc

Záloha na elektřinu (včetně vytápění): cca 6 000 Kč / měsíc

Kauce: 35 000 Kč

Provize realitní kanceláři: 30 000 Kč

Zahrada nabízí příjemné posezení pod dřevěnou pergolou. Je kompletně oplocená s udržovaným trávníkem. Parkování pro jedno auto na pozemku.

Zlonín je klidná a vyhledávaná obec v těsné blízkosti Prahy. Nabízí výbornou dopravní dostupnost přímé vlakové spojení do centra Prahy (Masarykovo nádraží cca 20 minut), autobusové linky i rychlý nájezd na D8. V obci najdete základní občanskou vybavenost včetně školky, obchodu, restaurace i dětského hřiště. V okolí je hezká příroda a možnosti pro volnočasové aktivity. Ideální místo pro rodinné bydlení s výhodami života u Prahy.

Zaujala vás nabídka? Pro více informací kontaktujte makléřku!

Makléř

Máte zájem o tento dům?

Tímto, v souladu s nařízením Evropského parlamentu a Rady (EU) 2016/679, v platném znění, prohlašuji, že mi je alespoň 16 let a uděluji tak svůj souhlas se zpracováním zadaných údajů (jméno, telefon, e-mail, ip adresa) společnosti B3 Technology, s.r.o., IČ: 07330600, se sídlem Novostavby 126/23, 435 11 Lom (správce dat), za účelem předání dotazu z tohoto formuláře Vámi vybranému inzerentovi a zpětného kontaktování mé osoby. Osobní údaje bude správce zpracovávat manuálně i automaticky přímo prostřednictvím svých zaměstnanců. Informace předané tímto formulářem budou uloženy v databázi správce maximálně po dobu 10 let. Odvolání souhlasu s uložením a zpracováním poskytnutých dat lze e-mailem na info@origo-reality.cz. V případě podezření na neoprávněné použití Vámi poskytnutých údajů máte právo předat podnět k šetření Úřadu pro ochranu osobních údajů. Více informací
Chystáte se prodat nemovitost?
Pomůžeme Vám!

Přihlášení k odběru

Nenechte si ujít nejnovější nabídky pronájmu rodinných domů v Zloníně.