Prodej bytu 2+1, Praha - Hostivař, U Pekáren, 91 m2 (ID: 1857862)

U Pekáren, Praha, Hostivař

8 782 000 Kč
/za nemovitost
Hypotéka od 39 250 Kč /měs. Chci hypotéku

Parametry bytu

AdresaU Pekáren, Praha, Hostivař
IDPEK12
StavbaCihlová
Stav objektuPo rekonstrukci
Patro1. z 3
Lokalita objektuKlidná část obce
VlastnictvíOsobní
Užitná plocha91 m2
Zastavěná plocha91 m2
Podlahová plocha126 m2
Plocha zahrady23 m2
Třída energetické náročnostiD - Méně úsporná
DopravaVlak, Dálnice, Silnice, MHD, Autobus
Výtah
Parkování

Origo partneři v Praze 10

Stěhovací služby

Výkup a prodej starého nábytku

Popis

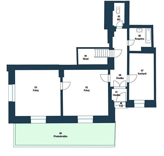
Bytová jednotka o dispozici 2+1 se nachází v 1. podlaží nově zrekonstruovaného domu v projektu U Pekáren. Podlahová plocha bytu činí 90,9 m² a díky orientaci na jih je prostor krásně prosvětlený po celý den. Součástí je vlastní předzahrádka o ploše 22,9 m², která nabízí možnost soukromého venkovního posezení nebo drobného pěstování bylinek, zeleniny nebo květin. Součástí jednotky je vyhrazené parkovací stání a možnost využívání rozlehlé společné zahrady ve vnitrobloku.
Byt je v původním stavu a před rekonstrukcí, což umožňuje novému majiteli přizpůsobit si interiér zcela podle vlastních představ. K dispozici je příprava na kuchyň, původní koupelna, repasované interiérové dveře, plastová okna a původní podlahy. Bytový dům U Pekáren prošel celkovou revitalizací – byly zrekonstruovány hlavní rozvody, obnovena fasáda včetně výmalby a ve vnitrobloku přibyl nový výtah. Upravené společné prostory a komunitní zahrada podtrhují pohodový charakter celého projektu.
Lokalita nabízí výbornou dostupnost do centra Prahy. Příměstské vlaky ze stanice Praha-Hostivař, která je přímo u domu, jezdí ve špičce každých 10 minut a cesta do centra trvá přibližně 13 minut. Zastávka tramvaje Nádraží Hostivař je vzdálena 5 minut chůze. Parkování v okolí není omezeno modrou zónou.
V docházkové vzdálenosti se nachází základní a mateřská škola, supermarket Lidl (15 minut pěšky nebo 4 minuty autem) a další služby. Přírodní okolí nabízí možnosti relaxace i sportu – lesopark u Hostivařské přehrady je dostupný pěšky, stejně jako plavecký bazén a sportovní zázemí Univerzity Karlovy. V okolí působí také sportovní kluby TJ Sokol Hostivař, SK Horní Měcholupy nebo HBC Hostivař. Byt v projektu U Pekáren představuje dostupnou formu vlastního bydlení s potenciálem k dalšímu zhodnocení nebo vhodnou investici k pronájmu. Díky lokalitě, velikosti a stavu nabízí značnou flexibilitu pro budoucí využití.

Makléř

Máte zájem o tento byt?

Tímto, v souladu s nařízením Evropského parlamentu a Rady (EU) 2016/679, v platném znění, prohlašuji, že mi je alespoň 16 let a uděluji tak svůj souhlas se zpracováním zadaných údajů (jméno, telefon, e-mail, ip adresa) společnosti B3 Technology, s.r.o., IČ: 07330600, se sídlem Novostavby 126/23, 435 11 Lom (správce dat), za účelem předání dotazu z tohoto formuláře Vámi vybranému inzerentovi a zpětného kontaktování mé osoby. Osobní údaje bude správce zpracovávat manuálně i automaticky přímo prostřednictvím svých zaměstnanců. Informace předané tímto formulářem budou uloženy v databázi správce maximálně po dobu 10 let. Odvolání souhlasu s uložením a zpracováním poskytnutých dat lze e-mailem na info@origo-reality.cz. V případě podezření na neoprávněné použití Vámi poskytnutých údajů máte právo předat podnět k šetření Úřadu pro ochranu osobních údajů. Více informací
Chystáte se prodat nemovitost?
Pomůžeme Vám!

Přihlášení k odběru

Nenechte si ujít nejnovější nabídky prodeje bytů 2+1 v Praze 10.