Prodej rodinného domu, Nový Jičín, Trlicova, 100 m2

Trlicova, Nový Jičín

4 900 000 Kč
/za nemovitost
včetně provize a právních služeb
Hypotéka od 21 900 Kč /měs. Chci hypotéku

Parametry domu

AdresaTrlicova, Nový Jičín
ID662
StavbaCihlová
Stav objektuPřed rekonstrukcí
Typ objektuPatrový
Druh objektuŘadový
Užitná plocha100 m2
Zastavěná plocha126 m2
Podlahová plocha100 m2
Plocha pozemku312 m2
Plocha zahrady186 m2
PlynPlynovod
OdpadVeřejná kanalizace
TopeníÚstřední plynové
KomunikaceAsfaltová
DopravaVlak, Dálnice, Silnice, Autobus
VodaVodovod
Zdroj topeníPlynový kotel
Sklep
Bezbarierový přístup

Origo partneři v Novém Jičíně

Popis

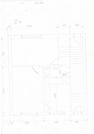
Exkluzivně nabízíme k prodeji starší rodinný dům v řadové zástavbě, v blízkosti centra Nového Jičína, na ulici Trlicova. Dům je částečně podsklepený, má dvě nadzemní podlaží. V I. NP se nachází dvě místnosti a kuchyň, vstupní chodba a toaleta s koupelnou. Ve II. NP je pokoj a prostorná půda pro možnost další realizace.
Dům je cihlové konstrukce, suchý a staticky pevný, Střecha je kryta pálenou taškou.
Nemovitost je napojena na veškeré inženýrské sítě - elektřinu, vodu, plyn a kanalizaci a díky své dispozici nabízí mnoho možností úprav. Po rekonstrukci může být ideální jak pro trvalé rodinné bydlení, tak i pro podnikání či investici formou pronájmu.
Součástí domu je také zahrada s ovocnými stromy, o výměře 186 m2, která nabízí dostatek prostoru pro odpočinek nebo zahradničení. Díky své orientaci a okolní zeleni působí pozemek klidně a poskytuje soukromí.
Lokalita samotná je jednou z velkých předností této nabídky. Dům je situován na okraji města v tiché ulici s minimálním provozem, přesto s výbornou dostupností do centra obce. Nový Jičín je město s kompletní infrastrukturou, s historickým centrem, příjemnou atmosférou a krásnou přírodou v okolí. V blízkosti najdete oblíbené výletní cíle, cyklostezky i možnosti sportovního vyžití. Ať už hledáte místo pro rodinný život, nebo zajímavou investici, tenhle dům vám nabízí pevný základ k obojímu.
Pro více informací volejte makléře. Nabízíme i možnost financování prostřednictvím našich hypotéčních center, popřípadě zrealizujeme profesionální prodej Vaší nemovitosti.

Makléř

Máte zájem o tento dům?

Tímto, v souladu s nařízením Evropského parlamentu a Rady (EU) 2016/679, v platném znění, prohlašuji, že mi je alespoň 16 let a uděluji tak svůj souhlas se zpracováním zadaných údajů (jméno, telefon, e-mail, ip adresa) společnosti B3 Technology, s.r.o., IČ: 07330600, se sídlem Novostavby 126/23, 435 11 Lom (správce dat), za účelem předání dotazu z tohoto formuláře Vámi vybranému inzerentovi a zpětného kontaktování mé osoby. Osobní údaje bude správce zpracovávat manuálně i automaticky přímo prostřednictvím svých zaměstnanců. Informace předané tímto formulářem budou uloženy v databázi správce maximálně po dobu 10 let. Odvolání souhlasu s uložením a zpracováním poskytnutých dat lze e-mailem na info@origo-reality.cz. V případě podezření na neoprávněné použití Vámi poskytnutých údajů máte právo předat podnět k šetření Úřadu pro ochranu osobních údajů. Více informací
Chystáte se prodat nemovitost?
Pomůžeme Vám!

Přihlášení k odběru

Nenechte si ujít nejnovější nabídky prodeje rodinných domů v Novém Jičíně.