Prodej pozemku pro bydlení, Lutín - Třebčín, 524 m2

Lutín, Třebčín

6 300 Kč
/za metr čtvereční
Hypotéka od 28 Kč /měs. Chci hypotéku

Parametry pozemku

AdresaLutín, Třebčín
ID1851
Lokalita objektuOkraj obce
Plocha pozemku524 m2
Elektřina230V
OdpadVeřejná kanalizace
KomunikaceAsfaltová
DopravaSilnice
VodaVodovod
Převod do OV

Origo partneři v Lutíně

Popis

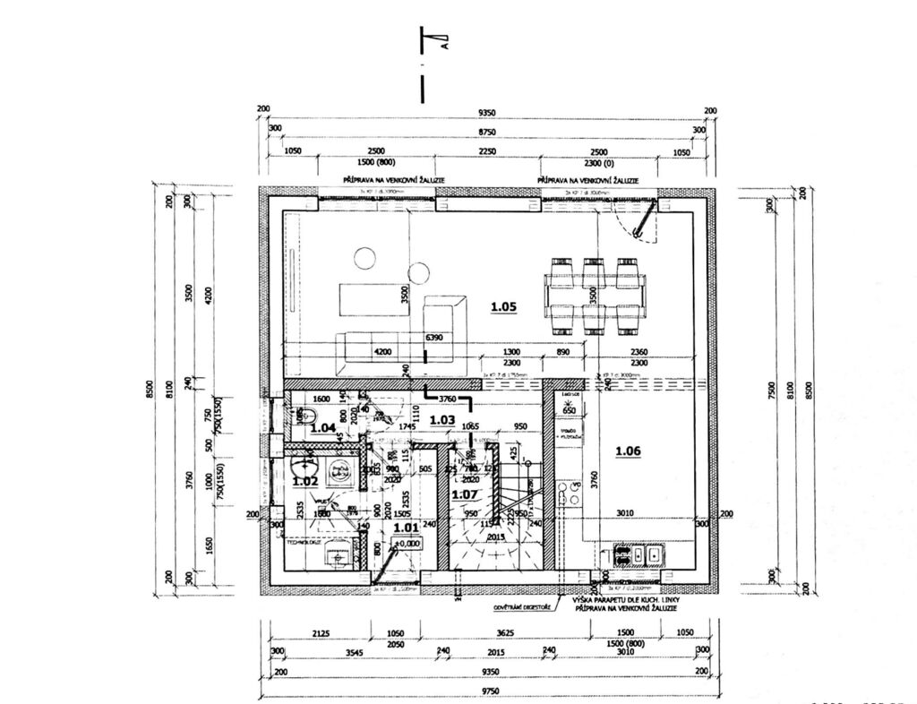
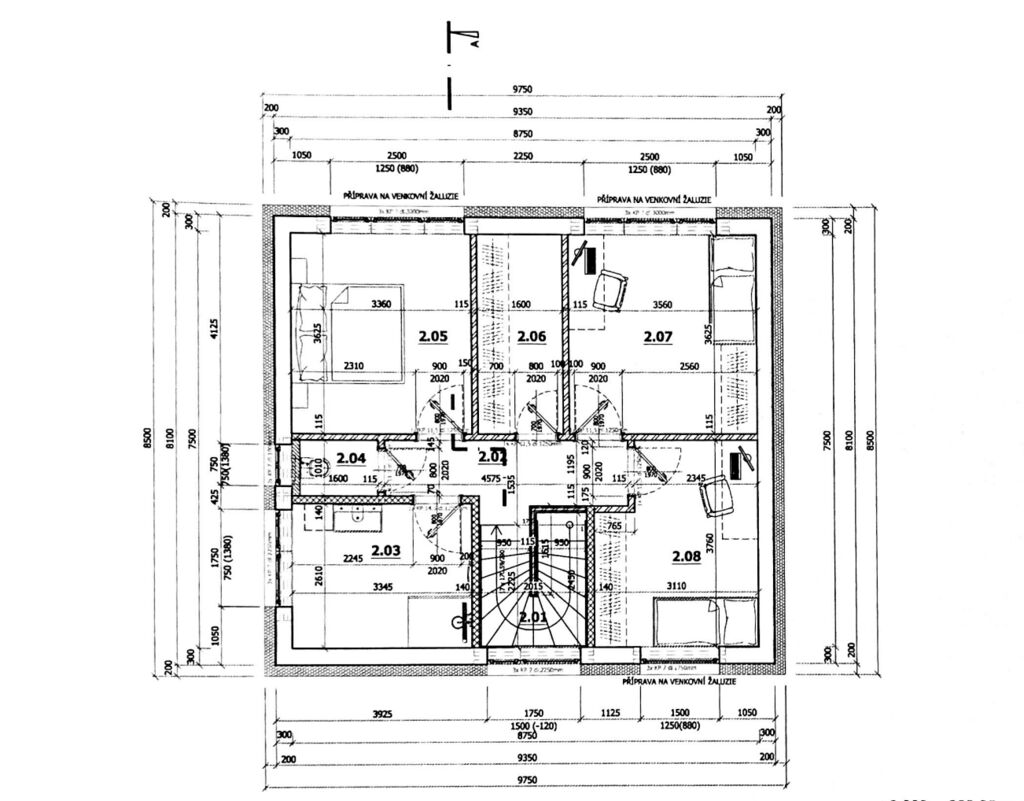
Prodej stavebního pozemku s projektem, stavebním povolením a výstavbou domu na klíč – 524 m²

Nabízíme ke koupi stavební pozemek o výměře 524 m² včetně kompletní projektové dokumentace, platného stavebního povolení a plánované výstavby rodinného domu na klíč.
Plánované dokončení stavby je do roku 2027.

Hlavní informace o pozemku a stavbě:
-Pozemek o rozloze 524 m².
-V ceně je projektová dokumentace a platné stavební povolení.
-Dům bude realizován na klíč – klient má možnost výběru koupelen a podlahových krytin.
-Příprava na venkovní žaluzie (žaluzie nejsou zahrnuty v ceně).
-Voda a kanalizace jsou již přivedeny na pozemek.
-Přípojka elektřiny s poplatkem cca 15 000 Kč (jističe již zakoupeny).
-Součástí ceny je tepelné čerpadlo v hodnotě 222 000 Kč s DPH – možnost výběru značky podle přání klienta.
-Projekt i vizualizace domu jsou součástí fotogalerie inzerátu.

Technologie a komfort.
Rodinný dům je navržen s důrazem na moderní standardy, nízké provozní náklady a úsporný provoz díky tepelnému čerpadlu.
Zájemce si může přizpůsobit finální vzhled interiéru dle vlastního vkusu.

Investiční potenciál.
Tento projekt představuje výhodnou příležitost jak pro budoucí vlastní bydlení, tak pro investory hledající stabilní zhodnocení prostředků.
Odpadá nutnost zdlouhavého vyřizování stavebního povolení – stavbu je možné realizovat bez prodlení.

Dokončení výstavby plánováno do roku 2027.

Vybavenost obce Lutín-Třebčín.
Dobré veřejné doprava: autobusové linky spojují Lutín s Olomoucí i okolními obcemi.
V Lutíně je vlaková stanice, což usnadňuje dopravu i pro ty, kteří preferují železniční spojení.
Obchody a služby jsou dostupné přímo v obci — restaurace, bistra, místní obchody, restaurační zařízení, kavárna.
Školy a základní občanská vybavenost: obec nabízí místní školu, školku a další zázemí pro rodiny.
V Třebčíně — jako část obce Lutín — je situace obdobná co do dostupnosti, protože jde o sousední lokalitu. Byť některé služby mohou být blíže v Lutíně.

Pro více informací o projektu, možnostech financování nebo osobní konzultaci mě neváhejte kontaktovat.

Makléř

Máte zájem o tento pozemek?

Tímto, v souladu s nařízením Evropského parlamentu a Rady (EU) 2016/679, v platném znění, prohlašuji, že mi je alespoň 16 let a uděluji tak svůj souhlas se zpracováním zadaných údajů (jméno, telefon, e-mail, ip adresa) společnosti B3 Technology, s.r.o., IČ: 07330600, se sídlem Novostavby 126/23, 435 11 Lom (správce dat), za účelem předání dotazu z tohoto formuláře Vámi vybranému inzerentovi a zpětného kontaktování mé osoby. Osobní údaje bude správce zpracovávat manuálně i automaticky přímo prostřednictvím svých zaměstnanců. Informace předané tímto formulářem budou uloženy v databázi správce maximálně po dobu 10 let. Odvolání souhlasu s uložením a zpracováním poskytnutých dat lze e-mailem na info@origo-reality.cz. V případě podezření na neoprávněné použití Vámi poskytnutých údajů máte právo předat podnět k šetření Úřadu pro ochranu osobních údajů. Více informací
Chystáte se prodat nemovitost?
Pomůžeme Vám!

Přihlášení k odběru

Nenechte si ujít nejnovější nabídky prodeje pozemků pro bydlení v Lutíně.