Prodej bytu 2+kk, Bar, Černá Hora, 43 m2 (ID: 1856232)

Bar

129 870 €
/za nemovitost

Parametry bytu

AdresaBar
IDF16201
StavbaCihlová
Stav objektuVe výstavbě
Patro3. z 9
VybavenoČástečně
Lokalita objektuKlidná část obce
VlastnictvíOsobní
Užitná plocha43 m2
Podlahová plocha48 m2
Elektřina230V
OdpadVeřejná kanalizace
TopeníLokální elektrické
TelekomunikaceInternet
DopravaDálnice, Silnice, MHD, Autobus
VodaVodovod
Terasa
Výtah
Parkování

Origo partneři

Popis

V prestižní čtvrti Topolica, v samém srdci přímořského města Bar, vzniká nový exkluzivní rezidenční komplex. Ve 3. nadzemním podlaží je k dispozici světlý a promyšleně řešený apartmán 2+kk o ploše 48 m² s terasou 4 m², která nabízí ideální prostor pro ranní kávu či večerní relax s výhledem na okolní přírodu. Dispozice zahrnuje předsíň, vzdušný obývací pokoj s kuchyňským koutem, ložnici a komfortní koupelnu vybavenou prvotřídním sanitárním zařízením. Celý interiér je navržen s důrazem na kvalitu, funkčnost a nadčasový design.

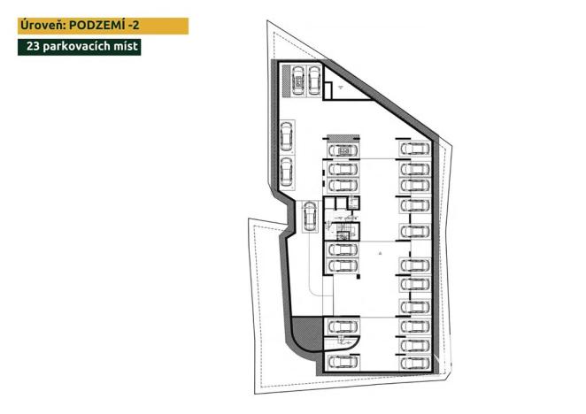
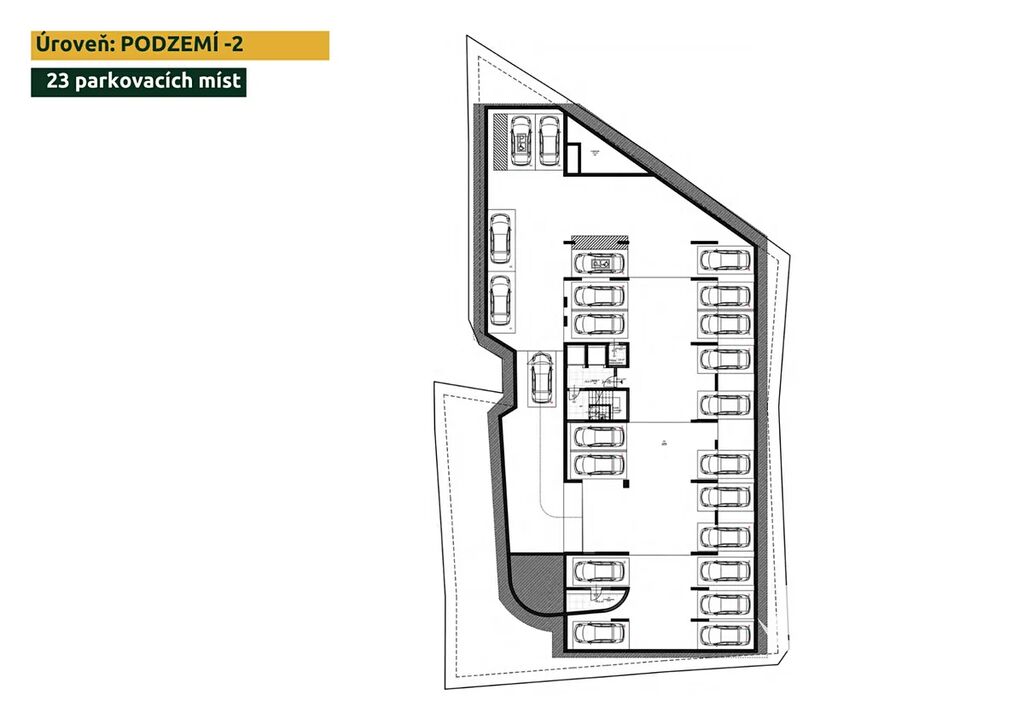
Standardem vybavení jsou dubové parkety nejvyšší třídy, italská keramika od renomovaných výrobců, luxusní armatury značek Villeroy & Boch a Hansgrohe, moderní rámy z kombinace hliníku a dřeva a multisplit klimatizace zajišťující příjemné klima po celý rok. Samozřejmostí jsou i chytré domácí technologie pro pohodlí a bezpečnost, dva tiché výtahy OTIS a solární panely, které přispívají k nižší energetické náročnosti budovy. Rezidence má dvě podzemní podlaží se 58 parkovacími místy. Dokončení výstavby je plánováno na konec roku 2026.

Lokalita Topolica je dlouhodobě považována za jednu z nejžádanějších oblastí nejen díky své poloze v blízkosti moře, ale i díky perfektní infrastruktuře a okolní přírodě. Jen pár kroků od domu se nachází známé sportovní centrum „Topolica“, budoucí národní aquapark s bazény a wellness zónou, promenáda, marina, řeka Željeznica i majestátní hora Rumija. Vše je obklopeno zelení a sluncem – Bar se může pochlubit více než 270 slunečnými dny ročně, což činí tuto oblast ideálním místem pro celoroční život i rekreaci.

Rezidence „Pohled na vodu“ kombinuje středomořskou architekturu s moderním životním stylem a představuje stabilní investici s vysokým potenciálem zhodnocení. Lokalita je ideální jak pro vlastní bydlení, tak pro krátkodobý i dlouhodobý pronájem, který díky rostoucímu zájmu o Černou Horu přináší zajímavé výnosy. Pláž Topolica s jemným štěrkem a pozvolným vstupem do moře je oblíbená mezi rodinami i aktivními páry, zatímco samotné město nabízí veškerou občanskou vybavenost – restaurace, kavárny, školy, obchody i perfektní dopravní dostupnost.

Naše společnost se specializuje na prodej nemovitostí v přímořských lokalitách a poskytuje kompletní servis – od výběru až po právní a administrativní podporu. Pomůžeme vám najít ideální nemovitost podle vašich představ, ať už hledáte nové bydlení, druhý domov u moře nebo výhodnou investici s jistotou do budoucna.

Makléř

Máte zájem o tento byt?

Tímto, v souladu s nařízením Evropského parlamentu a Rady (EU) 2016/679, v platném znění, prohlašuji, že mi je alespoň 16 let a uděluji tak svůj souhlas se zpracováním zadaných údajů (jméno, telefon, e-mail, ip adresa) společnosti B3 Technology, s.r.o., IČ: 07330600, se sídlem Novostavby 126/23, 435 11 Lom (správce dat), za účelem předání dotazu z tohoto formuláře Vámi vybranému inzerentovi a zpětného kontaktování mé osoby. Osobní údaje bude správce zpracovávat manuálně i automaticky přímo prostřednictvím svých zaměstnanců. Informace předané tímto formulářem budou uloženy v databázi správce maximálně po dobu 10 let. Odvolání souhlasu s uložením a zpracováním poskytnutých dat lze e-mailem na info@origo-reality.cz. V případě podezření na neoprávněné použití Vámi poskytnutých údajů máte právo předat podnět k šetření Úřadu pro ochranu osobních údajů. Více informací
Chystáte se prodat nemovitost?
Pomůžeme Vám!

Přihlášení k odběru

Nenechte si ujít nejnovější nabídky prodeje bytů 2+kk.