Pronájem bytu 2+kk, Brandýs nad Labem-Stará Boleslav - Brandýs nad Labem, Augustina Lukeše, 48 m2

Augustina Lukeše, Brandýs nad Labem-Stará Boleslav

23 900 Kč
/za měsíc
vratná jistota, zúčtovatelné zálohy 3.981,- Kč, poplatek za podnájem, venkovní parkovací stání a skl
Získejte výhodnou HYPOTÉKU Chci hypotéku

Parametry bytu

AdresaAugustina Lukeše, Brandýs nad Labem-Stará Boleslav
IDN6835
StavbaCihlová
Stav objektuNovostavba
Patro4. z 4
VybavenoČástečně
Typ objektuPatrový
Lokalita objektuKlidná část obce
VlastnictvíDružstevní
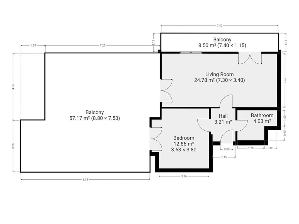
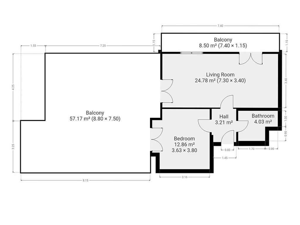
Užitná plocha48 m2
Podlahová plocha48 m2
Elektřina230V
TopeníÚstřední dálkové
Balkon
Sklep
Lodžie
Terasa
Výtah
Bezbarierový přístup
Převod do OV
Parkování

Origo partneři v Brandýse nad Labem

Popis

K dlouhodobému pronájmu nabízíme hezký prostorný, částečně zařízený byt 2+kk rozlohy 48 m2 v posledním 4. patře novostavby v klidné části Brandýsa nad Labem vyznačující se rozlehlou terasou s úžasnými výhledy přístupnou z obou pokojů a samostatným balkónem vedle dobře vybavené prostorné kuchyně s kvalitními vestavěnými spotřebiči. Všechna okna jsou vybavena polohovatelnými předokenními žaluziemi pro větší světelný a teplotní komfort. K bytu náleží venkovní parkovací stání a prostorný sklep v suterénu domu.

K dispozici solidním zájemcům hledajícím dlouhodobé kvalitní bydlení k okamžitému nastěhování.

Individuální prohlídky možné po domluvě kdykoliv včetně pozdních večerních hodin a víkendů.

Byt pronajímá Ideální nájemce - služba, se kterou budete bydlet bezstarostně a za férových podmínek. Když se něco přihodí, k dispozici jsou správci, kteří s Vámi vše vyřeší. Pomůžeme s veškerou administrativou, s nastavením plateb a zajistíme Vám speciální pojištění. Pojďte bydlet s námi!

Makléř

Máte zájem o tento byt?

Tímto, v souladu s nařízením Evropského parlamentu a Rady (EU) 2016/679, v platném znění, prohlašuji, že mi je alespoň 16 let a uděluji tak svůj souhlas se zpracováním zadaných údajů (jméno, telefon, e-mail, ip adresa) společnosti B3 Technology, s.r.o., IČ: 07330600, se sídlem Novostavby 126/23, 435 11 Lom (správce dat), za účelem předání dotazu z tohoto formuláře Vámi vybranému inzerentovi a zpětného kontaktování mé osoby. Osobní údaje bude správce zpracovávat manuálně i automaticky přímo prostřednictvím svých zaměstnanců. Informace předané tímto formulářem budou uloženy v databázi správce maximálně po dobu 10 let. Odvolání souhlasu s uložením a zpracováním poskytnutých dat lze e-mailem na info@origo-reality.cz. V případě podezření na neoprávněné použití Vámi poskytnutých údajů máte právo předat podnět k šetření Úřadu pro ochranu osobních údajů. Více informací
Chystáte se prodat nemovitost?
Pomůžeme Vám!