Prodej bytu 2+kk, Praha - Košíře, Hlaváčkova, 56 m2 (ID: 1854595)

Hlaváčkova, Praha, Košíře

9 980 000 Kč
/za nemovitost
Hypotéka od 44 605 Kč /měs. Chci hypotéku

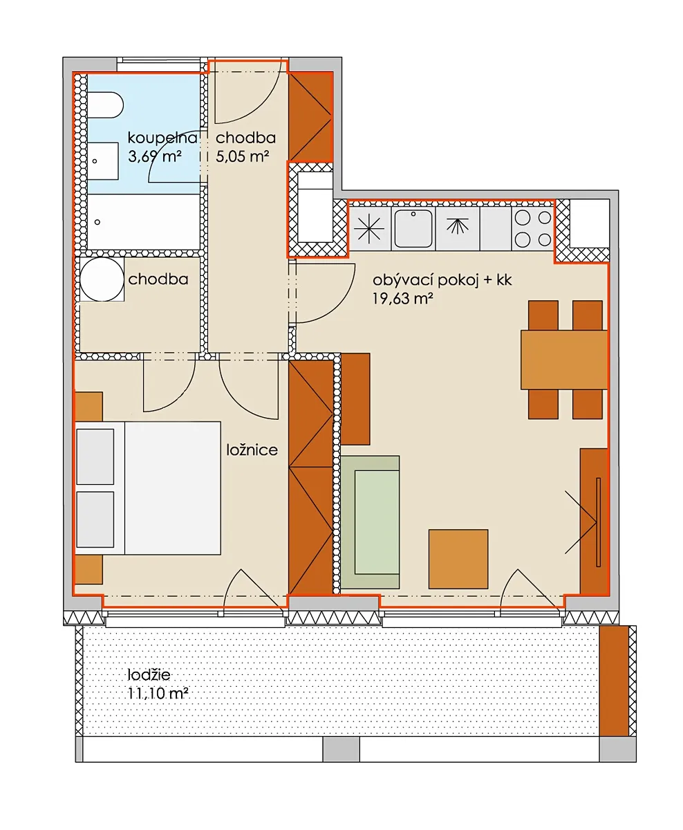
Parametry bytu

AdresaHlaváčkova, Praha, Košíře
StavbaCihlová
Stav objektuNovostavba
Patro3.
VlastnictvíOsobní
Užitná plocha56 m2
Sklep
Lodžie
Parkování

Origo partneři v Praze 5

Stěhovací služby

Výkup a prodej starého nábytku

Popis

Prodej moderního bytu 2+kk, 58 m² s terasou, Praha 5 - Košíře
Nabízíme k prodeji moderní a prostorný byt 2+kk o celkové ploše 58 m² (včetně terasy), který se nachází v novostavbě (dům postaven před 5 lety).
Vybavení bytu:
• moderní kuchyňská linka se spotřebiči,
• stylový nábytek,
• vestavěná šatní skříň v ložnici,
• systém „chytrá domácnost“ s ovládáním přes telefon,
• bezpečnostní systém s kamerovým dohledem a čipovým přístupem.
K bytu náleží:
• prostorný sklep vybavený regály,
• samostatné parkovací stání.
Výborná lokalita:
• supermarket Lidl přímo v domě,
• pouze 3 minuty chůze na zastávku MHD:
o tramvaj — 2 zastávky na metro a 4 zastávky do centra Prahy,
o autobus — přímá linka na letiště Václava Havla,
• v blízkosti park Klamovka, ideální pro procházky a odpočinek.

Byt je vhodný jak k vlastnímu bydlení, tak i jako investiční příležitost.

Cena: 9 980 000 CZK + 850 000 CZK za parkovací stání (není povinné).

Makléř

Máte zájem o tento byt?

Tímto, v souladu s nařízením Evropského parlamentu a Rady (EU) 2016/679, v platném znění, prohlašuji, že mi je alespoň 16 let a uděluji tak svůj souhlas se zpracováním zadaných údajů (jméno, telefon, e-mail, ip adresa) společnosti B3 Technology, s.r.o., IČ: 07330600, se sídlem Novostavby 126/23, 435 11 Lom (správce dat), za účelem předání dotazu z tohoto formuláře Vámi vybranému inzerentovi a zpětného kontaktování mé osoby. Osobní údaje bude správce zpracovávat manuálně i automaticky přímo prostřednictvím svých zaměstnanců. Informace předané tímto formulářem budou uloženy v databázi správce maximálně po dobu 10 let. Odvolání souhlasu s uložením a zpracováním poskytnutých dat lze e-mailem na info@origo-reality.cz. V případě podezření na neoprávněné použití Vámi poskytnutých údajů máte právo předat podnět k šetření Úřadu pro ochranu osobních údajů. Více informací
Chystáte se prodat nemovitost?
Pomůžeme Vám!

Přihlášení k odběru

Nenechte si ujít nejnovější nabídky prodeje bytů 2+kk v Praze 5.