Prodej bytu 2+kk, Praha - Hloubětín, Poděbradská, 56 m2 (ID: 1854465)

Poděbradská, Praha 9

Rezervováno
9 850 000 Kč
/za nemovitost
Hypotéka od 44 024 Kč /měs. Chci hypotéku

Parametry bytu

StavRezervováno
AdresaPoděbradská, Praha 9
ID320-NP00232
StavbaCihlová
Stav objektuNovostavba
Patro3. z 6
VybavenoČástečně
Lokalita objektuCentrum obce
VlastnictvíOsobní
Užitná plocha56 m2
Podlahová plocha67 m2
Třída energetické náročnostiB - Velmi úsporná
PlynPlynovod
OdpadVeřejná kanalizace
TelekomunikaceInternet
Garáž
Sklep
Lodžie
Výtah
Bezbarierový přístup

Origo partneři v Praze 9

Stěhovací služby

Výkup a prodej starého nábytku

Popis

Byt je ideální volbou pro ty, kteří hledají moderní městské bydlení — domov, kde můžete po práci vypnout, ale přitom zůstat v dosahu města.

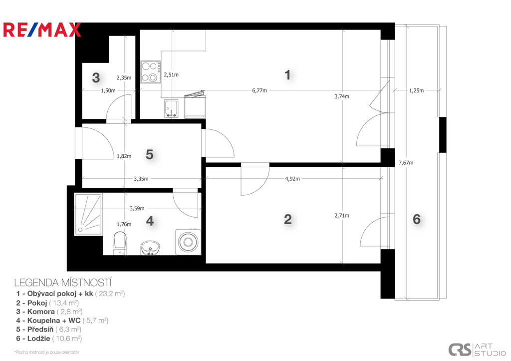
Exkluzivně nabízíme k prodeji nový byt 2+kk o podlahové ploše 56 m² s prostornou lodžií 10,6 m², situovanou do zeleného srdce nově vznikající rezidenční čtvrti Tesla Hloubětín.
Byt se nachází ve 2. patře (3. NP) a spojuje vše, co si od současného bydlení přejete — funkční dispozici, elegantní styl a pocit bezpečí.

KAŽDÝ DETAIL JE PROMYŠLENÝ
Dominantou bytu je obývací pokoj s kuchyňským koutem o velikosti 23,2 m² s pohodlným vstupem do lodžie.
Velkoformátová okna sahající od stropu po zem zajištují světlo po celý den a propojují byt s klidným vnitroblokem plným zeleně.
Rovněž z ložnice (13,4 m²) je přímý vstup na lodžii, která je dostatečně velká na vytvoření zelené stěny nebo mini zahrádky.
Moderní kuchyňská linka je vybavena značkovými spotřebiči Electrolux a Liebherr – myčka, mikrovlnná trouba, sklokeramická deska i kombinovaná lednice s mrazákem se postará o to, abyste se mohli bez starostí nastěhovat.
Součástí vstupní haly je velká vestavěná skříň, která má dostatek prostoru pro uskladnění vašich věcí.
Praktickou součástí bytu je komora o velikosti (2,8 m²).
Koupelna se sprchou a s WC o velikosti (5,7 m²) je prostorná a připravená na instalaci pračky a sušičky a dalšího příslušenství.

K bytu náleží velkorysé parkovací stání vhodné i pro SUV za cenu 800.000,- Kč
Hned za parkovacím stání se nachází nadstandardně velký sklep o výměře 8,7 m² za cenu 300.000,- Kč.
Parkovací stání a sklep není součástí ceny bytu.

Projekt TESLA Hloubětín vzniká na místě původního areálu Tesly a proměňuje se v jednu z nejzelenějších moderních čtvrtí v Praze.
Najdete zde rozsáhlé vnitrobloky, parky, pěší zóny i dětská hřiště.
V přízemí domů postupně vznikají obchody, kavárny a služby.
Nechybí školka, fitness zóny a příjemné cesty pro běhání či jízdu na kole.

SKVĚLÁ DOPRAVNÍ DOSTUPNOST
• Metro B – Hloubětín je jen pár minut pěšky
• Byt je přímo u tramvajové zastávky Nademlejnská
• Rychlé napojení na Pražský okruh a centrum města

Tento byt si vás získá hned při první návštěvě.
Těším se na vás osobně na prohlídce.

Makléř

Máte zájem o tento byt?

Tímto, v souladu s nařízením Evropského parlamentu a Rady (EU) 2016/679, v platném znění, prohlašuji, že mi je alespoň 16 let a uděluji tak svůj souhlas se zpracováním zadaných údajů (jméno, telefon, e-mail, ip adresa) společnosti B3 Technology, s.r.o., IČ: 07330600, se sídlem Novostavby 126/23, 435 11 Lom (správce dat), za účelem předání dotazu z tohoto formuláře Vámi vybranému inzerentovi a zpětného kontaktování mé osoby. Osobní údaje bude správce zpracovávat manuálně i automaticky přímo prostřednictvím svých zaměstnanců. Informace předané tímto formulářem budou uloženy v databázi správce maximálně po dobu 10 let. Odvolání souhlasu s uložením a zpracováním poskytnutých dat lze e-mailem na info@origo-reality.cz. V případě podezření na neoprávněné použití Vámi poskytnutých údajů máte právo předat podnět k šetření Úřadu pro ochranu osobních údajů. Více informací
Chystáte se prodat nemovitost?
Pomůžeme Vám!

Přihlášení k odběru

Nenechte si ujít nejnovější nabídky prodeje bytů 2+kk v Praze 9.