Pronájem kanceláře, Paskov, Místecká, 200 m2

Místecká, Paskov

20 000 Kč
/za měsíc
Získejte výhodnou HYPOTÉKU Chci hypotéku

Parametry nemovitosti

AdresaMístecká, Paskov
ID344-NP00537
StavbaCihlová
Stav objektuDobrý
VybavenoNe
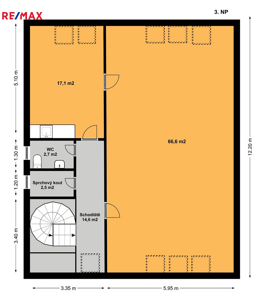
Užitná plocha200 m2
Třída energetické náročnostiD - Méně úsporná

Origo partneři v Paskově

Popis

Nabízíme k pronájmu prostorné kancelářské prostory o celkové výměře 200 m², které se nacházejí ve dvou nadzemních podlažích komerční budovy na ulici Místecká v Paskově. Budova se nachází v atraktivní a strategicky výhodné lokalitě s výbornou dopravní dostupností – v blízkosti dálnice D56, která zajišťuje rychlé spojení do Ostravy, Frýdku-Místku i dalších okolních měst.

Prostory jsou vhodné pro zřízení kanceláří, sídla firmy nebo administrativního zázemí společnosti. Nabízejí dostatek prostoru pro pohodlné a funkční pracovní prostředí.

Požadované měsíční nájemné činí 20 000 Kč + DPH. Při podpisu nájemní smlouvy se skládá kauce ve výši dvou měsíčních nájmů. Elektřina bude nájemci účtována dvakrát ročně dle skutečné spotřeby.

Pokud hledáte reprezentativní kancelářské prostory na dobře dostupném místě v Paskově, neváhejte nás kontaktovat pro více informací nebo domluvení osobní prohlídky.

Makléř

Máte zájem o tuto nemovistost?

Tímto, v souladu s nařízením Evropského parlamentu a Rady (EU) 2016/679, v platném znění, prohlašuji, že mi je alespoň 16 let a uděluji tak svůj souhlas se zpracováním zadaných údajů (jméno, telefon, e-mail, ip adresa) společnosti B3 Technology, s.r.o., IČ: 07330600, se sídlem Novostavby 126/23, 435 11 Lom (správce dat), za účelem předání dotazu z tohoto formuláře Vámi vybranému inzerentovi a zpětného kontaktování mé osoby. Osobní údaje bude správce zpracovávat manuálně i automaticky přímo prostřednictvím svých zaměstnanců. Informace předané tímto formulářem budou uloženy v databázi správce maximálně po dobu 10 let. Odvolání souhlasu s uložením a zpracováním poskytnutých dat lze e-mailem na info@origo-reality.cz. V případě podezření na neoprávněné použití Vámi poskytnutých údajů máte právo předat podnět k šetření Úřadu pro ochranu osobních údajů. Více informací
Chystáte se prodat nemovitost?
Pomůžeme Vám!

Přihlášení k odběru

Nenechte si ujít nejnovější nabídky pronájmu kanceláří v Paskově.