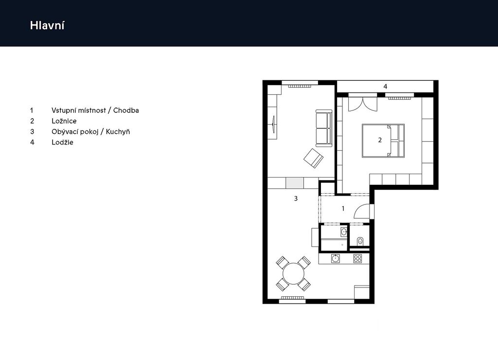
Pronájem bytu 2+kk, Praha - Záběhlice, Hlavní, 80 m2

Hlavní, Praha, Záběhlice

30 000 Kč
/za měsíc
Získejte výhodnou HYPOTÉKU Chci hypotéku

Parametry bytu

AdresaHlavní, Praha, Záběhlice
IDF2014
StavbaCihlová
Stav objektuVelmi dobrý
Patro1. z 10
VybavenoAno
VlastnictvíOsobní
Užitná plocha80 m2
Třída energetické náročnostiE - Nehospodárná
Ukazatel energetické náročnosti152 kWh/m2 za rok
Elektřina230V
DopravaSilnice, MHD, Autobus
Lodžie
Výtah
Bezbarierový přístup
Parkování

Origo partneři v Praze

Stěhovací služby

Výkup a prodej starého nábytku

Popis

Evidenční číslo / ID zakázky: F2014

Nabízíme k pronájmu zařízený byt 2+kk o velikosti 80 m² s lodžií, který se nachází v 2.NP cihlového domu s výtahem v ulici Hlavní, Praha 10 – Záběhlice. Tento moderně řešený byt vás zaujme nejen svým industriálním designem, ale i skvělou dispozicí.

Na obývací pokoj navazuje originálně řešený prostor, který kombinuje pracovní kout, relaxační zónu i jídelní část. Industriální styl je zde podtržen ocelovou konstrukcí s otevřenými policemi, která elegantně odděluje jednotlivé části místnosti, a zároveň působí vzdušně.
Pracovní kout je vybaven dřevěným stolem s pohodlnou kancelářskou židlí a poskytuje dostatek místa pro práci z domova. Prostor je doplněn o úložné boxy a police.
V této části se nachází také pohodlné posezení v podobě rozkládací pohovky s polštáři a designového křesla.
V zadní části místnosti je jídelní kout s velkým stolem a židlemi, kde je dostatek místa pro rodinné večeře nebo posezení s přáteli. Díky oknu je prostor příjemně světlý a propojuje se s centrální obytnou částí.

Stylová a moderní kuchyň v industriálním stylu, která zaujme minimalistickým designem a kvalitními materiály. Prostorná pracovní plocha, vestavěné spotřebiče a dostatek úložného prostoru zajišťují maximální pohodlí pro každodenní vaření. Velké okno dodává kuchyni dostatek denního světla a příjemnou atmosféru.

Elegantní koupelna s moderním sprchovým koutem a nadčasovými černými detaily. Minimalistický design a použití kvalitních materiálů vytváří příjemnou atmosféru i praktický prostor pro každodenní využití. Velké zrcadlo a přirozené tóny podtrhují celkovou vzdušnost a styl interiéru.

Dům se nachází v klidné části Záběhlic s výbornou dopravní dostupností. Přímo před domem je autobusová zastávka s přímým spojením na stanice metra Roztyly, Chodov, Kačerov, Skalka, Florenc a Smíchovské nádraží. Stanice metra C Roztyly a nákupní centrum Westfield Chodov jsou vzdáleny jen několik minut. V okolí najdete kompletní občanskou vybavenost, dětská hřiště i možnosti relaxace v Kunratickém lese nebo u Hamerského rybníka se sportovním centrem HAMR. Parkování je možné přímo před domem bez parkovacích zón.

Byt bude volný k nastěhování od 1.11.2025.

Měsíční nájemné: 30.000 Kč + poplatky

Energetická náročnost budovy třída E

Pro více informací kontaktujte prosím realitního makléře.

Makléř

Máte zájem o tento byt?

Tímto, v souladu s nařízením Evropského parlamentu a Rady (EU) 2016/679, v platném znění, prohlašuji, že mi je alespoň 16 let a uděluji tak svůj souhlas se zpracováním zadaných údajů (jméno, telefon, e-mail, ip adresa) společnosti B3 Technology, s.r.o., IČ: 07330600, se sídlem Novostavby 126/23, 435 11 Lom (správce dat), za účelem předání dotazu z tohoto formuláře Vámi vybranému inzerentovi a zpětného kontaktování mé osoby. Osobní údaje bude správce zpracovávat manuálně i automaticky přímo prostřednictvím svých zaměstnanců. Informace předané tímto formulářem budou uloženy v databázi správce maximálně po dobu 10 let. Odvolání souhlasu s uložením a zpracováním poskytnutých dat lze e-mailem na info@origo-reality.cz. V případě podezření na neoprávněné použití Vámi poskytnutých údajů máte právo předat podnět k šetření Úřadu pro ochranu osobních údajů. Více informací
Chystáte se prodat nemovitost?
Pomůžeme Vám!

Přihlášení k odběru

Nenechte si ujít nejnovější nabídky pronájmu bytů 2+kk v Praze.