Prodej bytu 3+1, Nové Město na Moravě, Mírová, 182 m2 (ID: 1853687)

Mírová, Nové Město na Moravě

7 800 000 Kč
/za nemovitost
Hypotéka od 34 861 Kč /měs. Chci hypotéku

Parametry bytu

AdresaMírová, Nové Město na Moravě
ID25070901
StavbaCihlová
Stav objektuVelmi dobrý
Patro4.
VlastnictvíOsobní
Užitná plocha182 m2
Sklep

Origo partneři v Novém Městu na Moravě

Popis

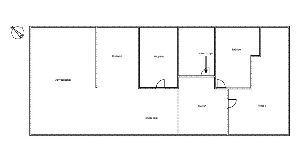
Prostorný podkrovní byt 3+1 s půdou a sklepem, ul. Mírová – Nové Město na Moravě

Nabízíme ke koupi nadstandardní podkrovní byt o dispozici 3+1 a celkové výměře 182,5 m², umístěný v nadstavbě bytového domu na ulici Mírová v Novém Městě na Moravě. Byt se nachází ve stávající nadstavbě a zaujme především svou rozlohou, praktičností i zajímavým dispozičním řešením.

Byt má samostatný vstup do patra, který zajišťuje klid a soukromí. Dominantou je prostorná předsíň, ze které vedou vstupy do jednotlivých místností – pokoje, ložnice, velké koupelny s WC a především do rozsáhlé obytné místnosti, která propojuje obývací pokoj, kuchyni a jídelnu. Celý prostor působí vzdušně a příjemně díky velkým rozměrům a světlosti.

Z předsíně je přístup i do vlastního půdního prostoru, který se rozkládá nad celým bytem a nabízí obrovský potenciál.
K bytu dále náleží velký sklep, ideální pro uložení věcí nebo sportovního vybavení.
Dům se nachází v klidné části města, v docházkové vzdálenosti od centra. Veškerá občanská vybavenost je k dispozici– v blízkosti jsou restaurace, obchodní centrum, školy, školky, lékaři i možnosti volnočasového vyžití.

Tato nabídka je ideální volbou pro ty, kteří hledají prostorné a komfortní bydlení s možností dalšího využití prostoru v žádané lokalitě.

Makléř

Máte zájem o tento byt?

Tímto, v souladu s nařízením Evropského parlamentu a Rady (EU) 2016/679, v platném znění, prohlašuji, že mi je alespoň 16 let a uděluji tak svůj souhlas se zpracováním zadaných údajů (jméno, telefon, e-mail, ip adresa) společnosti B3 Technology, s.r.o., IČ: 07330600, se sídlem Novostavby 126/23, 435 11 Lom (správce dat), za účelem předání dotazu z tohoto formuláře Vámi vybranému inzerentovi a zpětného kontaktování mé osoby. Osobní údaje bude správce zpracovávat manuálně i automaticky přímo prostřednictvím svých zaměstnanců. Informace předané tímto formulářem budou uloženy v databázi správce maximálně po dobu 10 let. Odvolání souhlasu s uložením a zpracováním poskytnutých dat lze e-mailem na info@origo-reality.cz. V případě podezření na neoprávněné použití Vámi poskytnutých údajů máte právo předat podnět k šetření Úřadu pro ochranu osobních údajů. Více informací
Chystáte se prodat nemovitost?
Pomůžeme Vám!

Přihlášení k odběru

Nenechte si ujít nejnovější nabídky prodeje bytů 3+1 v Novém Městu na Moravě.