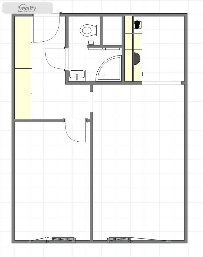
Prodej bytu 2+kk, Praha - Písnice, Na okruhu, 43 m2 (ID: 1853632)

Na okruhu, Praha 4 - Písnice

6 490 000 Kč

měsíční poplatky 5500 Kč - SVJ - 2500, elektřina - 1000, teplo+voda+spol.prostory - 2000
Hypotéka od 29 006 Kč /měs. Chci hypotéku

Parametry bytu

AdresaNa okruhu, Praha 4 - Písnice
ID11
StavbaPanelová
Stav objektuPo rekonstrukci
VlastnictvíOsobní
Užitná plocha43 m2
Třída energetické náročnostiD - Méně úsporná

Origo partneři v Praze 4

Stěhovací služby

Výkup a prodej starého nábytku

Popis

Nabízím ke koupi příjemný a zrekonstruovaný byt 2+kk o ploše 43 m² v osobním vlastnictví, situovaný v 1. patře panelového domu s výtahem, v klidné části na adrese Na Okruhu 387/17, Praha 4.

Jednotka je orientována na jih a díky tomu je krásně světlá po celý den. Byt prošel kompletní rekonstrukcí, včetně vyzdění jádra, úpravy koupelny a kuchyňské linky. Součástí vybavení bytu je i praktická vestavná skříň v předsíni.

Dům je v dobrém technickém stavu, s bezbariérovým přístupem pomocí výtahu. K dispozici je sklepní kóje a společné prostory včetně kočárkárny. Parkování je možné přímo u domu.

Významnou přidanou hodnotu představuje plánovaná stanice metra D v docházkové vzdálenosti, která v budoucnu ještě zlepší dostupnost této klidné lokality plné zeleně.

V okolí naleznete veškerou občanskou vybavenost – školy, školky, obchody, poštu, zdravotnická zařízení i MHD.

Byt je vhodný jak pro vlastní pohodlné bydlení, tak jako stabilní investice k pronájmu. Financování hypotékou je možné.

Neváhejte mě kontaktovat pro více informací nebo domluvení prohlídky.

Makléř

Máte zájem o tento byt?

Tímto, v souladu s nařízením Evropského parlamentu a Rady (EU) 2016/679, v platném znění, prohlašuji, že mi je alespoň 16 let a uděluji tak svůj souhlas se zpracováním zadaných údajů (jméno, telefon, e-mail, ip adresa) společnosti B3 Technology, s.r.o., IČ: 07330600, se sídlem Novostavby 126/23, 435 11 Lom (správce dat), za účelem předání dotazu z tohoto formuláře Vámi vybranému inzerentovi a zpětného kontaktování mé osoby. Osobní údaje bude správce zpracovávat manuálně i automaticky přímo prostřednictvím svých zaměstnanců. Informace předané tímto formulářem budou uloženy v databázi správce maximálně po dobu 10 let. Odvolání souhlasu s uložením a zpracováním poskytnutých dat lze e-mailem na info@origo-reality.cz. V případě podezření na neoprávněné použití Vámi poskytnutých údajů máte právo předat podnět k šetření Úřadu pro ochranu osobních údajů. Více informací
Chystáte se prodat nemovitost?
Pomůžeme Vám!

Přihlášení k odběru

Nenechte si ujít nejnovější nabídky prodeje bytů 2+kk v Praze 4.