Prodej rodinného domu, Brno, Obecní, 287 m2

Obecní, Brno, Nový Lískovec

36 270 000 Kč
/za nemovitost
včetně DPH, včetně poplatků, včetně provize, včetně právního servisu
Hypotéka od 162 105 Kč /měs. Chci hypotéku

Parametry domu

AdresaObecní, Brno, Nový Lískovec
ID03633
StavbaCihlová
Stav objektuPo rekonstrukci
VybavenoČástečně
Druh objektuRohový
Lokalita objektuKlidná část obce
Užitná plocha287 m2
Zastavěná plocha115 m2
Podlahová plocha306 m2
Plocha pozemku582 m2
Plocha zahrady467 m2
Třída energetické náročnostiB - Velmi úsporná
Ukazatel energetické náročnosti81 kWh/m2 za rok
Elektřina230V
OdpadVeřejná kanalizace
TelekomunikaceKabelové rozvody
VodaVodovod
Topné tělesoRadiátory
Zdroj topeníPlynový kondenzační kotel
Zdroj teplé vodyPlynový kondenzační kotel
Garáž
Výtah
Parkování
Bazén

Origo partneři v Brně

Popis

Na samotném konci klidné slepé ulice obklopené vzrostlými stromy a zelení je situován dům, který dokonale propojuje moderní architekturu, funkčnost a pocit opravdového domova. Tento výjimečný rodinný dům po kompletní rekonstrukci v letech 2021–2022 nabízí luxusní rodinné bydlení v naprostém soukromí jen pár minut od centra Brna.

Dům disponuje užitnou plochou 306 m², z toho 230 m² tvoří obytná tři patra a zbytek technické zázemí a garáž v suterénu. Zahrada o velikosti 467 m² je krásně udržovaná, se vzrostlými stromy, klidnými zákoutími a krytým posezením s venkovním krbem a vířivkou, které vytvářejí soukromou oázu pro odpočinek a relaxaci.

Většina obytných místností, obývací pokoj i terasa jsou orientovány na jih, díky čemuž je dům celý den prosvětlený a působí nesmírně vzdušně a útulně. Interiér byl zcela nově vybudován v jednotném moderním stylu s důrazem na detail, nadčasovost a kvalitní materiály. Dominantou domu je prostorná kuchyně Hanák s ostrovem, vestavnými spotřebiči a přímým vstupem na terasu do zahrady.

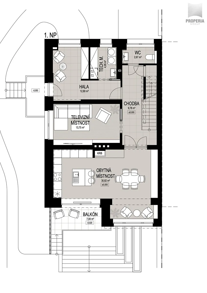
Dispozice 7 + kk zahrnuje velkorysý obývací prostor s jídelnou a kuchyní, pět ložnic, pracovnu v suterénu, dvě koupelny a tři samostatné toalety. V domě byla provedena kompletní rekonstrukce – nová střecha, fasáda, rozvody elektřiny, vody, odpadů i topení, dále zateplení, nové podlahy ve všech patrech, omítky, obklady, sanita, dveře a osvětlení. Použitá okna jsou dřevohliníková – zvenčí odolný hliník, zevnitř přírodní dřevo – a jsou vybavena elektricky ovládanými předokenními žaluziemi ve všech místnostech.

Komfort zajišťuje rekuperační jednotka Brinks 400, která přivádí čerstvý vzduch do celého domu, a plynový kotel se zásobníkem TUV pro úsporný ohřev vody a vytápění. Bezpečnost domu zajišťuje kamerový systém a alarm Jablotron.

Součástí domu je garáž pro menší vůz a možnost parkování na vjezdu. Na vybudování dalšího parkovacího stání přímo na pozemku před domem je k dispozici projekt se stavebním povolením.

Lokalita Nový Lískovec patří mezi nejžádanější části Brna pro rodinné bydlení díky své poloze, množství zeleně a výborné dopravní dostupnosti. Ulice Obecní je tichá, koncová a poskytuje naprosté soukromí – ideální pro rodiny, které hledají komfort města a klid přírody.

Tento dům je ukázkou precizní rekonstrukce, kvalitního řemesla a promyšleného designu. Nabízí dokonalou kombinaci komfortu, elegance a pohody, která z něj činí velmi atraktivní rodinné bydlení v Brně.

Makléř

Máte zájem o tento dům?

Tímto, v souladu s nařízením Evropského parlamentu a Rady (EU) 2016/679, v platném znění, prohlašuji, že mi je alespoň 16 let a uděluji tak svůj souhlas se zpracováním zadaných údajů (jméno, telefon, e-mail, ip adresa) společnosti B3 Technology, s.r.o., IČ: 07330600, se sídlem Novostavby 126/23, 435 11 Lom (správce dat), za účelem předání dotazu z tohoto formuláře Vámi vybranému inzerentovi a zpětného kontaktování mé osoby. Osobní údaje bude správce zpracovávat manuálně i automaticky přímo prostřednictvím svých zaměstnanců. Informace předané tímto formulářem budou uloženy v databázi správce maximálně po dobu 10 let. Odvolání souhlasu s uložením a zpracováním poskytnutých dat lze e-mailem na info@origo-reality.cz. V případě podezření na neoprávněné použití Vámi poskytnutých údajů máte právo předat podnět k šetření Úřadu pro ochranu osobních údajů. Více informací
Chystáte se prodat nemovitost?
Pomůžeme Vám!

Přihlášení k odběru

Nenechte si ujít nejnovější nabídky prodeje rodinných domů v Brně.