Prodej bytu 2+kk, Říčany, Rooseveltova, 39 m2

Rooseveltova, Říčany

3 900 000 Kč
/za nemovitost
Hypotéka od 17 431 Kč /měs. Chci hypotéku

Parametry bytu

AdresaRooseveltova, Říčany
ID17516
StavbaSmíšená
Stav objektuPřed rekonstrukcí
Patro1. z 4
VybavenoČástečně
Lokalita objektuCentrum obce
VlastnictvíOsobní
Užitná plocha39 m2
Zastavěná plocha154 m2
Podlahová plocha39 m2
Třída energetické náročnostiG - Mimořádně nehospodárná
Elektřina230V
PlynPlynovod
OdpadVeřejná kanalizace
KomunikaceAsfaltová
DopravaVlak, Dálnice, Silnice, Autobus
VodaVodovod

Origo partneři v Říčanech

Popis

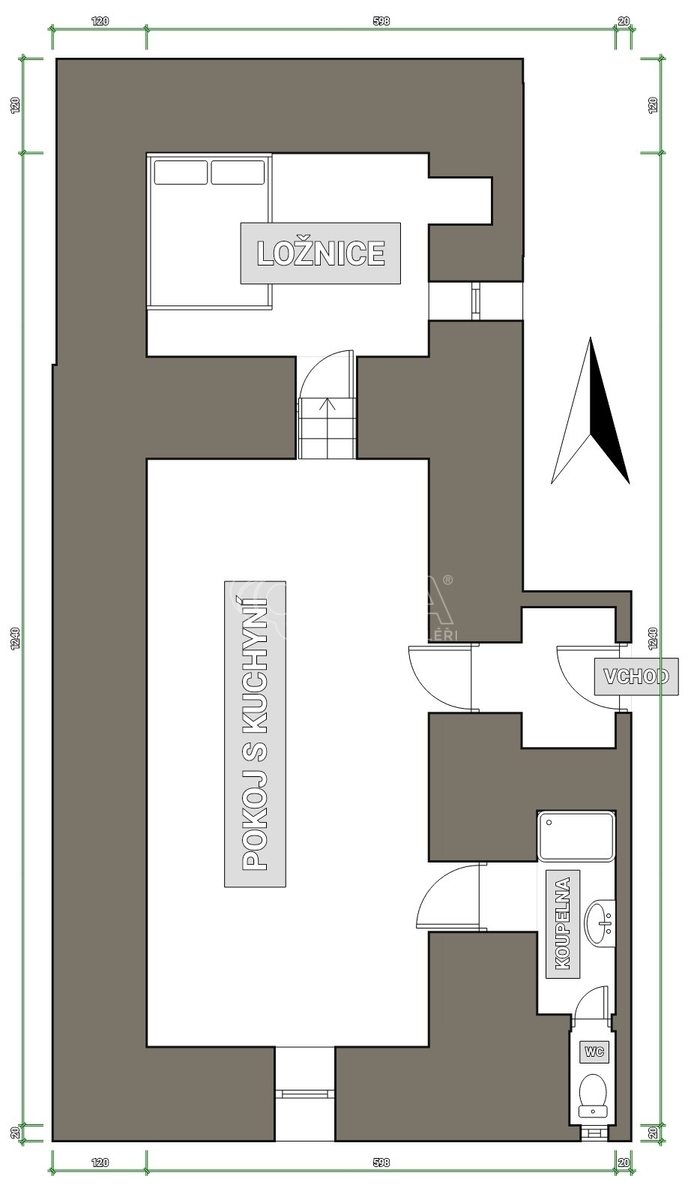
Byt se nachází v přízemí bytového domu s přímým vstupem na uzavřený dvorek. Obývací pokoj s kuchyňským koutem nabízí dostatek prostoru. Na něj navazuje koupelna se sprchovým koutem a toaletou. Po několika schůdkách přejdete do samostatné ložnice.
Vytápění je zajištěno klimatizací, voda je městská, obecní kanalizace.
Byt může být zajímavou investicí.

Makléř

Máte zájem o tento byt?

Tímto, v souladu s nařízením Evropského parlamentu a Rady (EU) 2016/679, v platném znění, prohlašuji, že mi je alespoň 16 let a uděluji tak svůj souhlas se zpracováním zadaných údajů (jméno, telefon, e-mail, ip adresa) společnosti B3 Technology, s.r.o., IČ: 07330600, se sídlem Novostavby 126/23, 435 11 Lom (správce dat), za účelem předání dotazu z tohoto formuláře Vámi vybranému inzerentovi a zpětného kontaktování mé osoby. Osobní údaje bude správce zpracovávat manuálně i automaticky přímo prostřednictvím svých zaměstnanců. Informace předané tímto formulářem budou uloženy v databázi správce maximálně po dobu 10 let. Odvolání souhlasu s uložením a zpracováním poskytnutých dat lze e-mailem na info@origo-reality.cz. V případě podezření na neoprávněné použití Vámi poskytnutých údajů máte právo předat podnět k šetření Úřadu pro ochranu osobních údajů. Více informací
Chystáte se prodat nemovitost?
Pomůžeme Vám!

Přihlášení k odběru

Nenechte si ujít nejnovější nabídky prodeje bytů 2+kk v Říčanech (okr. Praha-východ).