Pronájem obchodního prostoru, Praha, Radimova, 43 m2 (ID: 1852885)

Radimova, Praha 6

25 000 Kč
/za měsíc
Získejte výhodnou HYPOTÉKU Chci hypotéku

Parametry nemovitosti

AdresaRadimova, Praha 6
ID7415
StavbaSmíšená
Stav objektuNovostavba
Patro1.
Typ objektuPatrový
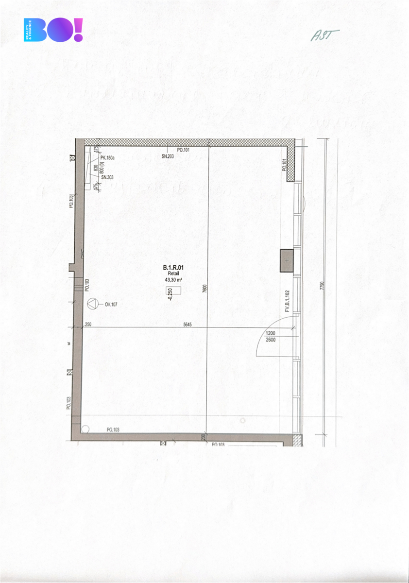
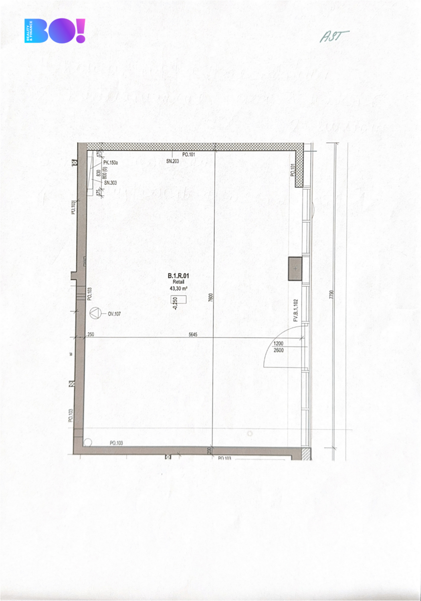
Užitná plocha43 m2
Podlahová plocha47 m2
Třída energetické náročnostiG - Mimořádně nehospodárná
Elektřina230V
OdpadVeřejná kanalizace
KomunikaceAsfaltová
TelekomunikaceTelefon, Internet
DopravaMHD, Autobus
VodaVodovod
Převod do OV

Origo partneři v Praze 6

Stěhovací služby

Výkup a prodej starého nábytku

Popis

Nabízíme k pronájmu zcela nový komerční prostor o velikosti 43 m², nacházející se v 1. NP rezidence Radimova, Praha 6 – Břevnov. Součástí jednotky je také sklep o výměře 4 m². Komerční prostor je vhodný například pro kosmetický salon, kavárnu, kancelář či obchod.

Prostor je ve stavu shell & core, což umožňuje budoucímu nájemci nebo vlastníkovi přizpůsobit dispozice a vybavení vlastním potřebám.

K dispozici jsou veškeré inženýrské sítě: elektřina (230 V, jištění B16A), voda, kanalizace, internet (optika). Prostor je vybaven moderní vzduchotechnickou jednotkou s rekuperací.

Výhodou je atraktivní lokalita s výbornou občanskou vybaveností – v okolí se nachází školy, školky, obchody, restaurace, zdravotnická zařízení i zastávky MHD (autobus, metro).

V případě zájmu o prohlídku nás kontaktujte.

Makléř

Máte zájem o tuto nemovistost?

Tímto, v souladu s nařízením Evropského parlamentu a Rady (EU) 2016/679, v platném znění, prohlašuji, že mi je alespoň 16 let a uděluji tak svůj souhlas se zpracováním zadaných údajů (jméno, telefon, e-mail, ip adresa) společnosti B3 Technology, s.r.o., IČ: 07330600, se sídlem Novostavby 126/23, 435 11 Lom (správce dat), za účelem předání dotazu z tohoto formuláře Vámi vybranému inzerentovi a zpětného kontaktování mé osoby. Osobní údaje bude správce zpracovávat manuálně i automaticky přímo prostřednictvím svých zaměstnanců. Informace předané tímto formulářem budou uloženy v databázi správce maximálně po dobu 10 let. Odvolání souhlasu s uložením a zpracováním poskytnutých dat lze e-mailem na info@origo-reality.cz. V případě podezření na neoprávněné použití Vámi poskytnutých údajů máte právo předat podnět k šetření Úřadu pro ochranu osobních údajů. Více informací
Chystáte se prodat nemovitost?
Pomůžeme Vám!