Pronájem bytu 2+kk, Praha - Háje, Steinerova, 63 m2

Steinerova, Háje - Praha 11

23 000 Kč
/za měsíc
vratná jistota, náklady na bydlení 5 402 czk, poplatek za podnájem
Získejte výhodnou HYPOTÉKU Chci hypotéku

Parametry bytu

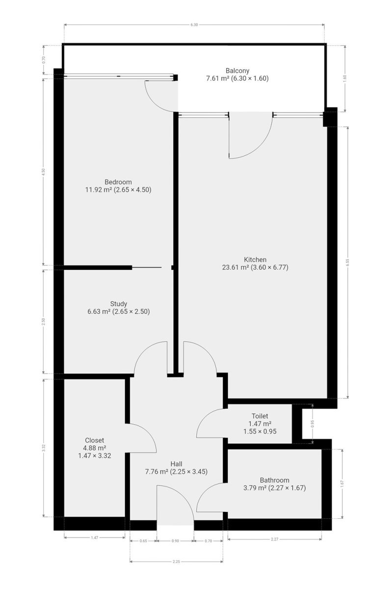
AdresaSteinerova, Háje - Praha 11
IDN3603
StavbaCihlová
Stav objektuVelmi dobrý
Patro9. z 12
VybavenoČástečně
Typ objektuPatrový
Lokalita objektuKlidná část obce
VlastnictvíOsobní
Užitná plocha63 m2
Podlahová plocha63 m2
Elektřina230V
TopeníÚstřední dálkové
DopravaMHD, Autobus
Balkon
Výtah

Origo partneři v Praze 4

Stěhovací služby

Výkup a prodej starého nábytku

Popis

Prohlídky
Pro registraci na prohlídku použijte prosím tento formulář:
inbyty.cz/byt-feeua

K dlouhodobému podnájmu nabízíme krásný prosluněný byt o dispozici 2+kk v klidné lokalitě Háje. Byt o celkové výměře 63 m2 se nachází v 9. podlaží cihlového domu s výtahem. K bytu patří balkon.

Byt se nabízí částečně vybavený. Kuchyně disponuje lednicí, troubou, varnou deskou, mikrovlnnou troubou a digestoří. Obývací část je zařízena pohovkou. Součástí ložnice je postel a oddělená menší místnost s pracovním stolem. V koupelně je sprchový kout. Toaleta je umístěna samostatně. Byt disponuje ještě větší šatní místností.

V okolí domu najdeme restaurace, supermarket Lidl, základní a mateřskou školu, lékárnu atd. Pět minut chůze od domu je vzdálená stanice metra Háje.

Majitel preferuje zájemce bez domácích mazlíčků.
Byt je volný k nastěhování od 1.11.2025.

Uvedena energetická kategorie G, jelikož nemáme k dispozici PENB.

Byt pronajímá Ideální nájemce - služba, se kterou budete bydlet bezstarostně a za férových podmínek. Když se něco přihodí, k dispozici jsou správci, kteří s vámi vše vyřeší. Pomůžeme s veškerou administrativou, s nastavením plateb a zajistíme vám speciální pojištění. Pojďte bydlet s námi!

Makléř

Máte zájem o tento byt?

Tímto, v souladu s nařízením Evropského parlamentu a Rady (EU) 2016/679, v platném znění, prohlašuji, že mi je alespoň 16 let a uděluji tak svůj souhlas se zpracováním zadaných údajů (jméno, telefon, e-mail, ip adresa) společnosti B3 Technology, s.r.o., IČ: 07330600, se sídlem Novostavby 126/23, 435 11 Lom (správce dat), za účelem předání dotazu z tohoto formuláře Vámi vybranému inzerentovi a zpětného kontaktování mé osoby. Osobní údaje bude správce zpracovávat manuálně i automaticky přímo prostřednictvím svých zaměstnanců. Informace předané tímto formulářem budou uloženy v databázi správce maximálně po dobu 10 let. Odvolání souhlasu s uložením a zpracováním poskytnutých dat lze e-mailem na info@origo-reality.cz. V případě podezření na neoprávněné použití Vámi poskytnutých údajů máte právo předat podnět k šetření Úřadu pro ochranu osobních údajů. Více informací
Chystáte se prodat nemovitost?
Pomůžeme Vám!