Prodej zemědělské usedlosti, Kojice, 218 m2

Kojice

4 599 031 Kč
/za nemovitost
Cena zahrnuje veškerý právní servis
Hypotéka od 20 555 Kč /měs. Chci hypotéku

Parametry domu

AdresaKojice
ID285-NP00308
StavbaSmíšená
Stav objektuPřed rekonstrukcí
VybavenoNe
Typ objektuPatrový
Druh objektuSamostatný
Lokalita objektuOkraj obce
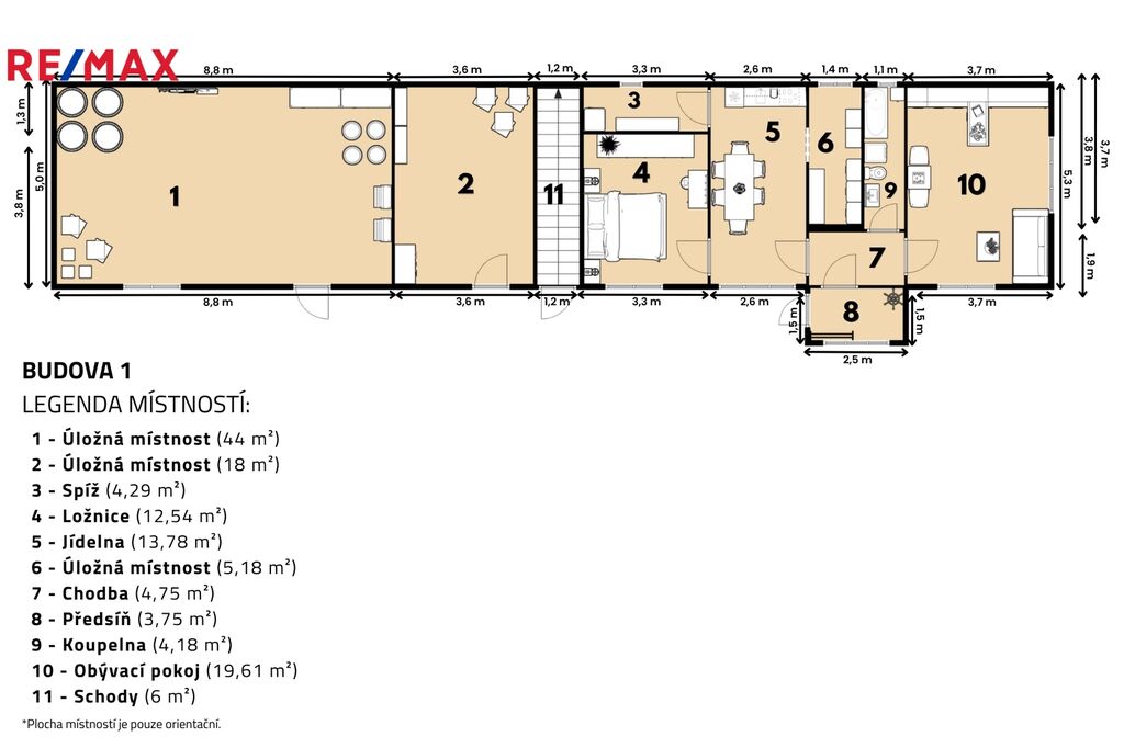
Užitná plocha218 m2
Zastavěná plocha218 m2
Plocha pozemku2446 m2
Elektřina230V, 400V
PlynPlynovod
OdpadSeptik
KomunikaceAsfaltová
TelekomunikaceInternet, Satelit
DopravaVlak, Dálnice, Silnice, Autobus
VodaStudna
Garáž
Převod do OV
Parkování

Origo partneři v Kojicích

Popis

Hledáte místo, kde se snoubí klid venkova, čisté ovzduší a potenciál pro bydlení, rekreaci i hospodaření?
Za výhodnou cenu můžete mít tradiční zemědělskou usedlost s velkým potenciálem přestavby v malebné obci Kojice, nedaleko řeky Labe a místních rybníků.

Na rozlehlém slunném pozemku o celkové výměře 2 446 m² se nachází dvě obytné budovy, prostorná stodola a samostatný sklípek ve svahu. Celá usedlost je obklopena úrodnou půdou a ovocným sadem, který poskytuje nejen krásné prostředí, ale i možnost vlastní úrody a chovu zvířat se zázemím.

Hlavní přednosti:
Dvě obytné budovy, první ihned obyvatelná s novou elektřinou a plynovým topením, vše s možností další rekonstrukce dle vlastních představ
Ideální prostředí a dostatek místa i pro chovná a domácí zvířata
Velké půdní prostory (165 m2+32 m2) vhodné k vestavbě či rozšíření obytné plochy
Stodola – ideální pro hospodářské využití, skladování nebo přestavbu na ateliér či dílnu
Vinný sklípek – autentický prvek s atmosférou, vhodný pro uchování vína či potravin i posezení s výhledem
Ovocný sad, zahrada a úrodná půda – možnost pěstování, zahradničení nebo drobného hospodaření
Vlastní studna – nezávislý zdroj vody, obecní přípojka vody u domu
Plyn a elektřina – kompletní inženýrské sítě zavedeny, internet vzduchem
Klidná lokalita s čistým ovzduším, ideální pro rodinný život i odpočinek

Obec Kojice leží v malebném prostředí Polabí, s výbornou dostupností autem (obchvat) i vlakem do Pardubic, Kolína i Prahy. Díky okolní přírodě, rybníkům a blízkosti Labe je to skvělé místo pro milovníky klidu, rybaření, myslivosti, cykloturistiky i procházky v přírodě. Potraviny, hřiště s hospodou, MŠ na místě, vše ostatní v blízkém okolí, viz web obce.

Možnosti využití:
Rodinné bydlení s velkou zahradou a hospodářským zázemím pro zvířata
Rekreační usedlost pro víkendové pobyty a odpočinek
Investiční příležitost – přestavba na penzion, agroturistiku, vícegenerační bydlení nebo jiný druh podnikání

Tato usedlost v Kojicích nabízí jedinečnou kombinaci tradiční atmosféry, velkého pozemku a širokých možností využití. Je ideální pro ty, kteří hledají klidné místo k životu, chtějí hospodařit, nebo hledají zajímavou investici s potenciálem - viz také vizualizace mezi fotkami...

Nenechte si uniknout tuto unikátní příležitost!
S případnou hypotékou vám rádi pomůžeme
Pište či volejte pro více informací a termín prohlídky.
Díky a budu se těšit

Makléř

Máte zájem o tento dům?

Tímto, v souladu s nařízením Evropského parlamentu a Rady (EU) 2016/679, v platném znění, prohlašuji, že mi je alespoň 16 let a uděluji tak svůj souhlas se zpracováním zadaných údajů (jméno, telefon, e-mail, ip adresa) společnosti B3 Technology, s.r.o., IČ: 07330600, se sídlem Novostavby 126/23, 435 11 Lom (správce dat), za účelem předání dotazu z tohoto formuláře Vámi vybranému inzerentovi a zpětného kontaktování mé osoby. Osobní údaje bude správce zpracovávat manuálně i automaticky přímo prostřednictvím svých zaměstnanců. Informace předané tímto formulářem budou uloženy v databázi správce maximálně po dobu 10 let. Odvolání souhlasu s uložením a zpracováním poskytnutých dat lze e-mailem na info@origo-reality.cz. V případě podezření na neoprávněné použití Vámi poskytnutých údajů máte právo předat podnět k šetření Úřadu pro ochranu osobních údajů. Více informací
Chystáte se prodat nemovitost?
Pomůžeme Vám!

Přihlášení k odběru

Nenechte si ujít nejnovější nabídky prodeje zemědělských usedlostí v Kojicích.