Prodej rodinného domu, Hřiměždice, 418 m2 (ID: 1852178)

Hřiměždice

41 500 000 Kč
/za nemovitost
Hypotéka od 185 480 Kč /měs. Chci hypotéku

Parametry domu

AdresaHřiměždice
StavbaSmíšená
Stav objektuVelmi dobrý
VybavenoAno
Druh objektuSamostatný
Lokalita objektuPolosamota
Užitná plocha418 m2
Plocha pozemku2140 m2
Třída energetické náročnostiG - Mimořádně nehospodárná
DopravaSilnice, Autobus
Garáž
Sklep
Parkování
Bazén

Origo partneři v Hřimeždicích

Revize elektrických zařízení

Popis

Exkluzivní nemovitost s dvěma stavbami a vlastním molem u Slapské přehrady

Nabízíme jedinečnou příležitost ke koupi exkluzivního rekreačního areálu na pozemku o velikosti 2 842 m², situovaného na samém okraji zástavby s přímým přístupem k vodě. Součástí areálu jsou dva samostatné rekreační objekty, venkovní bazén, venkovní kuchyně a přístřešky pro auta. Lokalita nabízí maximální soukromí a nádhernou přírodu v bezprostřední blízkosti Slapské přehrady.

Objekt 1 – Rekreační chata

Zastavěná plocha: 127 m²
Pozemek: 2 140 m²
Dispozice:
Přízemí: prostorný obývací pokoj s dvěma krbovými kamny a kuchyňským koutem se vstupem na terasu, ložnice se šatnou, WC, předsíň
Patro: 3 ložnice, každá s vlastním sociálním zařízením a vstupem na terasu
Suterén: sklep, technická místnost

Technologie: bioklárna (biologická čistička), elektrické vytápění, solární kolektory na ohřev vody
Bezpečnost: kamerový zabezpečovací systém

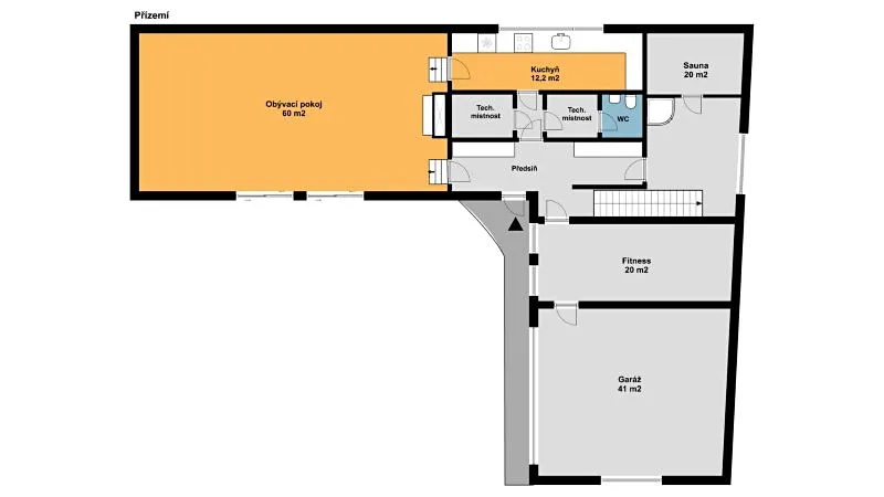
Objekt 2 – Novostavba rodinného domu (2016)

Zastavěná plocha: 146 m²
Pozemek: 702 m²
Dispozice:
Přízemí: prostorný obývací pokoj s krbovými kamny a velkorysým prosklením, kuchyň, sauna, fitness, garáž pro dva vozy, technická místnost, WC
Patro: 3 apartmány, každý s vlastním sociálním zařízením, jeden apartmán s kuchyní, vstup na venkovní terasu

Technologie: bioklárna, elektrické vytápění, solární kolektory
Bezpečnost: kamerový systém napojený na bezpečnostní službu

Další benefity

venkovní bazén
venkovní kuchyně
přístřešky pro parkování
vlastní molo vhodné pro loď i koupání
exkluzivní místo s nádhernými výhledy a zajištěným soukromím

Makléř

Máte zájem o tento dům?

Tímto, v souladu s nařízením Evropského parlamentu a Rady (EU) 2016/679, v platném znění, prohlašuji, že mi je alespoň 16 let a uděluji tak svůj souhlas se zpracováním zadaných údajů (jméno, telefon, e-mail, ip adresa) společnosti B3 Technology, s.r.o., IČ: 07330600, se sídlem Novostavby 126/23, 435 11 Lom (správce dat), za účelem předání dotazu z tohoto formuláře Vámi vybranému inzerentovi a zpětného kontaktování mé osoby. Osobní údaje bude správce zpracovávat manuálně i automaticky přímo prostřednictvím svých zaměstnanců. Informace předané tímto formulářem budou uloženy v databázi správce maximálně po dobu 10 let. Odvolání souhlasu s uložením a zpracováním poskytnutých dat lze e-mailem na info@origo-reality.cz. V případě podezření na neoprávněné použití Vámi poskytnutých údajů máte právo předat podnět k šetření Úřadu pro ochranu osobních údajů. Více informací
Chystáte se prodat nemovitost?
Pomůžeme Vám!

Přihlášení k odběru

Nenechte si ujít nejnovější nabídky prodeje rodinných domů v Hřimeždicích.