Prodej bytu 4+1, Praha - Smíchov, Na Plzeňce, 150 m2

Na Plzeňce, Praha 5, Smíchov

21 800 000 Kč
/za nemovitost
Hypotéka od 97 433 Kč /měs. Chci hypotéku

Parametry bytu

AdresaNa Plzeňce, Praha 5, Smíchov
IDDDO0269-0002
StavbaCihlová
Stav objektuVelmi dobrý
Patro3. z 5
VybavenoNe
Typ objektuPatrový
VlastnictvíOsobní
Užitná plocha150 m2
Podlahová plocha150 m2
Třída energetické náročnostiE - Nehospodárná
TopeníLokální plynové
Výtah
Bezbarierový přístup

Origo partneři v Praze 5

Stěhovací služby

Výkup a prodej starého nábytku

Popis

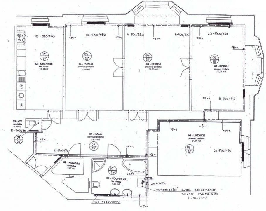
Exkluzivně nabízíme prodej prostorného, světlého bytu 4+1 (150 m2) po rekonstrukci v Praze 5. Byt s nádherným výhledem na Vyšehrad a orientací na jih a východ je situován ve 3.podlaží krásného secesního domu s novou fasádou, střechou a výtahem. Disponuje prostornou halou (23m2), kuchyní (17 m2), obývacím pokojem (27 m2), ložnicí s vestavěnými skříněmi (21 m2), dvěma dalšími pokoji (21 a 22 m2), koupelnou s vanou, sprchovým koutem, dvěma umyvadly a WC (9 m2), technickou místností a samostatným WC s umyvadlem. Všechny pokoje jsou průchozí.

V kuchyni je sporák s indukční sklokeramickou deskou, digestoř, trouba, myčka, lednice s mrazákem a pračka. Plovoucí podlahy a dlažba v kuchyni, v koupelně, WC a u vstupu do bytu. Podlahové vytápění v koupelně a perfektně odizolovaná okna, vytápění plynovým kotlem Buderus umístěným v technické místnosti, bezpečnostní dveře Next, internet. Možnost uskladnění kol, kočárku atd. ve společném sklepě.

Parking před domem (modré zóny). Vynikající dopravní dostupnost - byt je situován v klidné ulici pražského Smíchova mezi stanicemi metra Smíchovské nádraží a Anděl a je ideální rovněž pro reprezentaci a kancelář firmy nebo jako investice.

Cena: 21.800.000 Kč.

Energetická náročnost budovy: E.
ID nemovitosti DDO0269-0002.

Makléř

Máte zájem o tento byt?

Tímto, v souladu s nařízením Evropského parlamentu a Rady (EU) 2016/679, v platném znění, prohlašuji, že mi je alespoň 16 let a uděluji tak svůj souhlas se zpracováním zadaných údajů (jméno, telefon, e-mail, ip adresa) společnosti B3 Technology, s.r.o., IČ: 07330600, se sídlem Novostavby 126/23, 435 11 Lom (správce dat), za účelem předání dotazu z tohoto formuláře Vámi vybranému inzerentovi a zpětného kontaktování mé osoby. Osobní údaje bude správce zpracovávat manuálně i automaticky přímo prostřednictvím svých zaměstnanců. Informace předané tímto formulářem budou uloženy v databázi správce maximálně po dobu 10 let. Odvolání souhlasu s uložením a zpracováním poskytnutých dat lze e-mailem na info@origo-reality.cz. V případě podezření na neoprávněné použití Vámi poskytnutých údajů máte právo předat podnět k šetření Úřadu pro ochranu osobních údajů. Více informací
Chystáte se prodat nemovitost?
Pomůžeme Vám!

Přihlášení k odběru

Nenechte si ujít nejnovější nabídky prodeje bytů 4+1 v Praze 5.