Pronájem kanceláře, Teplice, Českobratrská, 88 m2 (ID: 1851179)

Českobratrská, Teplice

14 000 Kč
/za měsíc
+ poplatky a spotřeba energií
Získejte výhodnou HYPOTÉKU Chci hypotéku

Parametry nemovitosti

AdresaČeskobratrská, Teplice
ID183/5047
StavbaCihlová
Stav objektuPřed rekonstrukcí
VybavenoNe
VlastnictvíOsobní
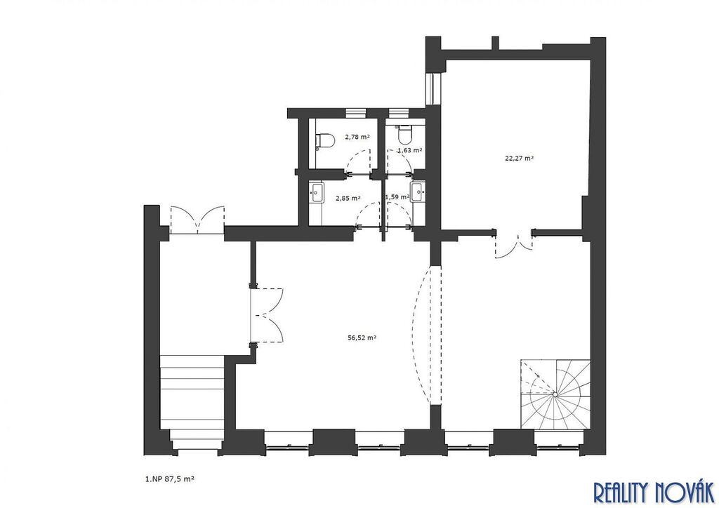
Užitná plocha88 m2
Zastavěná plocha391 m2
Plocha pozemku391 m2

Origo partneři v Teplicích

Okna a dveře

Rekonstrukce

Zámečnické práce

Popis

Nabízíme k dlouhodobému pronájmu velmi atraktivní nebytové prostory o celkové výměře 87,5 m², které se nachází v přízemí činžovního domu v ulici Českobratrská. Nabízené prostory jsou aktuálně ve stavu Shell and Core (viz. foto) a majitelé domu zajistí dokončení základních části nebytového prostoru (sociální zařízení, vytápění, atd. ). Zbývající finální úpravy si zajistí nájemce dle svých požadavků a potřeb, v závislosti na sjednané době pronájmu. Prostory mohou být využívány např. jako ordinace lékařů, kanceláře, klientské centrum nebo obchodní prostor, případně k jakékoliv jiné administrativní nebo obchodní činnosti. Nemovitost je napojená na elektřinu, plyn a obecní vodovod i kanalizaci. Pro bližší informace a prohlídky kontaktujte makléře.

Makléř

Máte zájem o tuto nemovistost?

Tímto, v souladu s nařízením Evropského parlamentu a Rady (EU) 2016/679, v platném znění, prohlašuji, že mi je alespoň 16 let a uděluji tak svůj souhlas se zpracováním zadaných údajů (jméno, telefon, e-mail, ip adresa) společnosti B3 Technology, s.r.o., IČ: 07330600, se sídlem Novostavby 126/23, 435 11 Lom (správce dat), za účelem předání dotazu z tohoto formuláře Vámi vybranému inzerentovi a zpětného kontaktování mé osoby. Osobní údaje bude správce zpracovávat manuálně i automaticky přímo prostřednictvím svých zaměstnanců. Informace předané tímto formulářem budou uloženy v databázi správce maximálně po dobu 10 let. Odvolání souhlasu s uložením a zpracováním poskytnutých dat lze e-mailem na info@origo-reality.cz. V případě podezření na neoprávněné použití Vámi poskytnutých údajů máte právo předat podnět k šetření Úřadu pro ochranu osobních údajů. Více informací
Chystáte se prodat nemovitost?
Pomůžeme Vám!

Přihlášení k odběru

Nenechte si ujít nejnovější nabídky pronájmu kanceláří v Teplicích.