Prodej rodinného domu, Vranovice, 202 m2

Vranovice

9 500 000 Kč
/za nemovitost
SLEVA!!!, včetně poplatků, včetně právního servisu
Hypotéka od 42 459 Kč /měs. Chci hypotéku

Parametry domu

AdresaVranovice
ID18417
StavbaCihlová
Stav objektuNovostavba
VybavenoNe
Druh objektuSamostatný
Lokalita objektuKlidná část obce
Užitná plocha202 m2
Plocha pozemku1560 m2
Třída energetické náročnostiG - Mimořádně nehospodárná
Elektřina230V
OdpadVeřejná kanalizace
KomunikaceAsfaltová
DopravaVlak, Dálnice, Silnice, Autobus
VodaVodovod, Studna
Topné tělesoRadiátory, Krbová kamna
Zdroj topeníElektrokotel
Zdroj teplé vodyBojler - elektro
Výtah
Parkování

Origo partneři v Vranovicích

Popis

Hledáte prostorný rodinný dům s klidnou venkovskou atmosférou a rychlým dojezdem po dálnici do Brna? Pak vás jistě potěší nabídka RD ve Vranovicích.

Samostatně stojící patrový dům s obytným podkrovím je obklopen velkou zahradou a skýtá spoustu prostoru a soukromí. Nachází se v obytné zástavbě na okraji obce s asfaltovou cestou. Prostor u domu nabízí parkování pro 2-4 auta. S přáteli můžete posedět pod dřevěnou pergolou o rozloze 28m2 přilehlou k domu s odpočinkovým výhledem do zahrady. V zadní části pozemku stojí zahradní domek s připojením na elektřinu.

Přízemí domu je dokončené a plně funkční. Na ploše 107m2 najdete zádveří, které pokračuje do chodby se samostatnými vstupy do kuchyně, jídelny, obývacího pokoje, koupelny se sprchovým koutem a WC a komory. Schody do podkroví vedou z chodby.
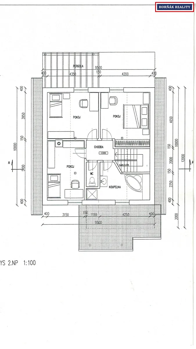
V podkroví o rozloze 95m2 je vše připraveno na 3 samostatné pokoje, koupelnu a samostatné WC.
K dokončení stavby zbývají dodělávky 2NP - položení podlah, zaklopení stropů sádrokartonem a instalace sanitárního zařízení, stejně jako dokončení vnějšího zateplení a fasády. Na dokončení stavby je možné čerpat dotace ze Zelené úsporám. Kromě možnosti úpravy konečných dispozic podkroví dle vlastního vkusu a potřeb jsou dotace další z příjemných benefitů nabízeného domu.

Elektrické rozvody jsou plně funkční. Dům není napojen na plyn. Plynovod vede přímo hranicí pozemku před domem, takže není problém s jeho připojením. Voda je napojena na veřejný vodovod, velkým plusem je i vlastní studna. Odpad směřuje do veřejné kanalizace. Alternativou vytápění elektrokotlem jsou krbová kamna s výměníkem. Dům je osazen plastovými okny.

V obci najdete plnou občanskou vybavenost včetně mateřské školy a obou stupňů základní školy. Nedaleko rodinného domu je Lesní školka Jurta, dětské hřiště Hlinek a venkovní posilovna na okraji lesa.
K ceně domu bude připočtena odměna RK v běžné výši.

Zaujala vás nabídka? Řekněte si o prohlídku! Budu se na vás těšit.

Makléř

Máte zájem o tento dům?

Tímto, v souladu s nařízením Evropského parlamentu a Rady (EU) 2016/679, v platném znění, prohlašuji, že mi je alespoň 16 let a uděluji tak svůj souhlas se zpracováním zadaných údajů (jméno, telefon, e-mail, ip adresa) společnosti B3 Technology, s.r.o., IČ: 07330600, se sídlem Novostavby 126/23, 435 11 Lom (správce dat), za účelem předání dotazu z tohoto formuláře Vámi vybranému inzerentovi a zpětného kontaktování mé osoby. Osobní údaje bude správce zpracovávat manuálně i automaticky přímo prostřednictvím svých zaměstnanců. Informace předané tímto formulářem budou uloženy v databázi správce maximálně po dobu 10 let. Odvolání souhlasu s uložením a zpracováním poskytnutých dat lze e-mailem na info@origo-reality.cz. V případě podezření na neoprávněné použití Vámi poskytnutých údajů máte právo předat podnět k šetření Úřadu pro ochranu osobních údajů. Více informací
Chystáte se prodat nemovitost?
Pomůžeme Vám!

Přihlášení k odběru

Nenechte si ujít nejnovější nabídky prodeje rodinných domů v Vranovicích (okr. Brno-venkov).