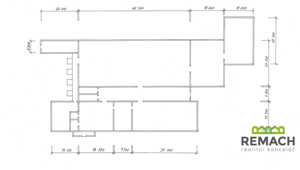
Pronájem skladu, Uherské Hradiště, Sokolovská, 2293 m2

Sokolovská, Uherské Hradiště, Mařatice

Cena na vyžádání
/za metr čtvereční / rok
info v RK, + platby za spotřebovanou el. energii, bez DPH, bez poplatků, + provize RK, cena k jednání
Získejte výhodnou HYPOTÉKU Chci hypotéku

Parametry nemovitosti

AdresaSokolovská, Uherské Hradiště, Mařatice
ID03350
StavbaCihlová
Stav objektuVelmi dobrý
Patro1.
VybavenoNe
Typ objektuPřízemní
Druh objektuSamostatný
Lokalita objektuCentrum obce
Užitná plocha2293 m2
Třída energetické náročnostiG - Mimořádně nehospodárná
Elektřina230V, 400V
KomunikaceBetonová, Asfaltová
DopravaVlak, Silnice, MHD, Autobus
Bezbarierový přístup
Parkování

Origo partneři v Uherském Hradišti

Popis

Nabízíme k pronájmu skladové prostory o celkové výměře 2 293 m²**, které se nacházejí v průmyslové části*Uherského Hradiště na ulici **Sokolovská**.

Prostory jsou vhodné pro skladování, logistiku . Disponují nákladní rampou pro pohodlnou manipulaci se zbožím a zajišťují dobrý přístup pro kamionovou dopravu.

Celková plocha: 2 293 m²
Přímý vjezd a nakládací rampa
Možnost úprav dle potřeb nájemce
Výborná dopravní dostupnost – hlavní tah směr Staré Město / Uh. Brod

Ideální příležitost pro firmy hledající rozsáhlé skladové zázemí v atraktivní lokalitě Uherského Hradiště.

Pro více informací a sjednání prohlídky nás kontaktujte.

-

Makléř

Máte zájem o tuto nemovistost?

Tímto, v souladu s nařízením Evropského parlamentu a Rady (EU) 2016/679, v platném znění, prohlašuji, že mi je alespoň 16 let a uděluji tak svůj souhlas se zpracováním zadaných údajů (jméno, telefon, e-mail, ip adresa) společnosti B3 Technology, s.r.o., IČ: 07330600, se sídlem Novostavby 126/23, 435 11 Lom (správce dat), za účelem předání dotazu z tohoto formuláře Vámi vybranému inzerentovi a zpětného kontaktování mé osoby. Osobní údaje bude správce zpracovávat manuálně i automaticky přímo prostřednictvím svých zaměstnanců. Informace předané tímto formulářem budou uloženy v databázi správce maximálně po dobu 10 let. Odvolání souhlasu s uložením a zpracováním poskytnutých dat lze e-mailem na info@origo-reality.cz. V případě podezření na neoprávněné použití Vámi poskytnutých údajů máte právo předat podnět k šetření Úřadu pro ochranu osobních údajů. Více informací
Chystáte se prodat nemovitost?
Pomůžeme Vám!

Přihlášení k odběru

Nenechte si ujít nejnovější nabídky pronájmu skladů v Uherském Hradišti.