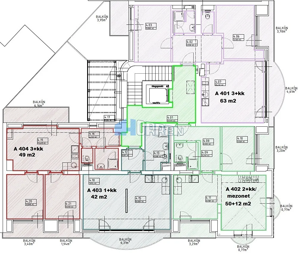
Pronájem bytu 1+kk, Praha - Libeň, Primátorská, 42 m2 (ID: 1850360)

Primátorská, Praha, Libeň

19 500 Kč
/za měsíc
+ popl. 2.570,-Kč/os + elektřina na nájemce + kauce 2 nájmy + provize 1 nájem
Získejte výhodnou HYPOTÉKU Chci hypotéku

Parametry bytu

AdresaPrimátorská, Praha, Libeň
ID25014
StavbaCihlová
Stav objektuVelmi dobrý
Patro4.
Lokalita objektuKlidná část obce
VlastnictvíOsobní
Užitná plocha42 m2
Třída energetické náročnostiC - Úsporná
Ukazatel energetické náročnosti58 kWh/m2 za rok
Elektřina230V
TopeníÚstřední plynové
TelekomunikaceInternet
DopravaVlak, Silnice, MHD, Autobus
Topné tělesoRadiátory
Zdroj topeníÚstřední dálkové
Terasa
Výtah
Bezbarierový přístup

Origo partneři v Praze 8

Stěhovací služby

Výkup a prodej starého nábytku

Popis

Pronajmeme nový ateliér č.15- 1+kk o velikosti 42 m2 a terasou 6 m2 v kompletně zrekonstruovaném domě situovaném na rohu ulic Primátorská a Konšelská. Ateliér je situován ve 4.patře domu s orientací na západ. Ateliér je zrekonstruován v jednoduchém moderním designu. Podlahy jsou vícevrstvé plovoucí ve světlejším odstínu, ve vstupní chodbě, koupelně a WC je použita světlá dlažba. V koupelně je rohový sprchový kout, umyvadlová galerie s osvětleným zrcadlem, pračka a závěsné WC. Na míru vyrobená kuchyňská linka je vybavená, sklokeramickou varnou deskou, myčkou a lednicí. V domě je zavedeno UPC. V okolí je dostatek zeleně k relaxaci či sportovním aktivitám (park Pod Korábem, lesopark Bílá skála, přírodní památka Okrouhlík, Prosecké skály, bobová dráha, tenisové kurty i víceúčelové hřiště,..), výborná dopravní dostupnost (TRAM zastávka do 100m od domu, metro „B“ či „C“ 5 min. tramvají), veškerá další občanská vybavenost v okolí. Volné. Prohlídky po domluvě. V ateliéru není možné se přihlásit k trvalému pobytu.

Makléř

Máte zájem o tento byt?

Tímto, v souladu s nařízením Evropského parlamentu a Rady (EU) 2016/679, v platném znění, prohlašuji, že mi je alespoň 16 let a uděluji tak svůj souhlas se zpracováním zadaných údajů (jméno, telefon, e-mail, ip adresa) společnosti B3 Technology, s.r.o., IČ: 07330600, se sídlem Novostavby 126/23, 435 11 Lom (správce dat), za účelem předání dotazu z tohoto formuláře Vámi vybranému inzerentovi a zpětného kontaktování mé osoby. Osobní údaje bude správce zpracovávat manuálně i automaticky přímo prostřednictvím svých zaměstnanců. Informace předané tímto formulářem budou uloženy v databázi správce maximálně po dobu 10 let. Odvolání souhlasu s uložením a zpracováním poskytnutých dat lze e-mailem na info@origo-reality.cz. V případě podezření na neoprávněné použití Vámi poskytnutých údajů máte právo předat podnět k šetření Úřadu pro ochranu osobních údajů. Více informací
Chystáte se prodat nemovitost?
Pomůžeme Vám!