Prodej bytu 3+1, Teplice, Pražská, 65 m2 (ID: 1850112)

Pražská, Teplice

1 990 000 Kč
/za nemovitost
Náklady na byt plus energie.
Hypotéka od 8 894 Kč /měs. Chci hypotéku

Parametry bytu

Náklady na bydlení3453
AdresaPražská, Teplice
StavbaPanelová
Stav objektuDobrý
Patro4. z 8
VybavenoČástečně
Lokalita objektuSídliště
VlastnictvíDružstevní
Užitná plocha65 m2
Třída energetické náročnostiC - Úsporná
Elektřina230V
PlynPlynovod
OdpadVeřejná kanalizace
KomunikaceAsfaltová
TelekomunikaceKabelové rozvody
DopravaDálnice, Silnice, MHD, Autobus
VodaVodovod
Topné tělesoRadiátory
Zdroj topeníÚstřední dálkové
Zdroj teplé vodyCentrální dálkový ohřev
Sklep
Lodžie
Výtah
Bezbarierový přístup
Převod do OV

Origo partneři v Teplicích

Okna a dveře

Rekonstrukce

Zámečnické práce

Popis

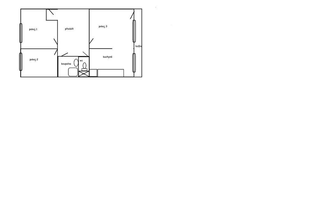
Nabízíme k prodeji (převodu) družstevní třípokojový byt s velkou lodžií v části sídliště navazující na lázeňskou oblast Teplic, u PENNY.
Byt je v dobrém stavu, udržovaný, v koupelně byl umístěn místo vany sprchový kout, tím se uvolnil prostor pro pračku. Byt nabízí možnost rekonstrukce podle vlastních představ.
Užitná plocha činí 65 m², což poskytuje dostatek prostoru pro rodinný život. Součástí bytu je lodžie o ploše 6 m², kde si můžete užívat chvíle klidu. K dispozici je komora na patře i sklepní koje.
Byt se nachází v lokalitě s dobrou dopravní dostupností - najdete zde přístup k dálnici, silnici, MHD i autobusové dopravě, výpadovka na Prahu.
Byt je ihned volný k prodeji, v ceně jsou zahrnuty všechny poplatky.

Pro více informací o této nemovitosti nebo sjednání prohlídky nás prosím kontaktujte nebo vyplňte níže uvedený formulář, rádi Vám pomůžeme.

Makléř

Máte zájem o tento byt?

Tímto, v souladu s nařízením Evropského parlamentu a Rady (EU) 2016/679, v platném znění, prohlašuji, že mi je alespoň 16 let a uděluji tak svůj souhlas se zpracováním zadaných údajů (jméno, telefon, e-mail, ip adresa) společnosti B3 Technology, s.r.o., IČ: 07330600, se sídlem Novostavby 126/23, 435 11 Lom (správce dat), za účelem předání dotazu z tohoto formuláře Vámi vybranému inzerentovi a zpětného kontaktování mé osoby. Osobní údaje bude správce zpracovávat manuálně i automaticky přímo prostřednictvím svých zaměstnanců. Informace předané tímto formulářem budou uloženy v databázi správce maximálně po dobu 10 let. Odvolání souhlasu s uložením a zpracováním poskytnutých dat lze e-mailem na info@origo-reality.cz. V případě podezření na neoprávněné použití Vámi poskytnutých údajů máte právo předat podnět k šetření Úřadu pro ochranu osobních údajů. Více informací
Chystáte se prodat nemovitost?
Pomůžeme Vám!

Přihlášení k odběru

Nenechte si ujít nejnovější nabídky prodeje bytů 3+1 v Teplicích.