Pronájem kanceláře, Praha - Staré Město, Kozí, 39 m2 (ID: 1849986)

Kozí, Praha, Staré Město

23 000 Kč
/za měsíc
Poplatky za služby a energie se hradí zvlášť
Získejte výhodnou HYPOTÉKU Chci hypotéku

Parametry nemovitosti

AdresaKozí, Praha, Staré Město
ID966595
StavbaSmíšená
Stav objektuPo rekonstrukci
Patro3.
Užitná plocha39 m2
Podlahová plocha39 m2
Třída energetické náročnostiG - Mimořádně nehospodárná
Elektřina230V
PlynPlynovod
DopravaSilnice, MHD
VodaVodovod
Výtah

Origo partneři v Praze 1

Stěhovací služby

Výkup a prodej starého nábytku

Popis

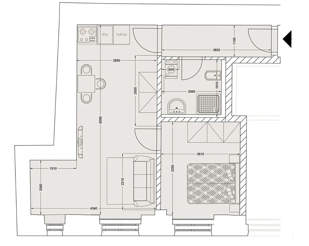
Zrekonstruovaný kancelářský prostor 2+kk, o celkové ploše 39,1m2, je situován ve 2. patře historické budovy s výtahem, v prestižní lokalitě Staré Město na Praze 1, nedaleko Staroměstského náměstí, v ulici Kozí.
Interiér je částečně zařízený kuchyňskou linkou včetně malé lednice, mikrovlnné trouby, dvouvařiče. Dispozičně prostor nabízí vstupní chodbu (4,25 m2), světlou místnost (21,96 m2) s kuchyňským koutem, se vstupem do další místnosti (8,96 m2), a moderní koupelnu (3,93 m2) s umyvadlem, sprchovým koutem, toaletou a pračkou.
Budova se nachází v historické lokalitě Staré Město, v bezprostřední blízkosti Staroměstského náměstí nebo kostela sv. Mikuláše. Tato lokalita nabízí mnoho restaurací, kaváren, designových obchodů a butiků, nedaleko se nachází také Havelské tržiště nebo Městská knihovna. Skvělá dostupnost MHD autobusové zastávky "Pařížská" a "Staroměstské náměstí" jsou vzdáleny jen minutu pěšky, stanice metra "Staroměstská" (linka A) pak 4 minuty chůze a tramvajová zastávka "Staroměstská" pouhých 5 minut chůze.

Zálohové poplatky za služby a energie (včetně topení) se hradí zvlášť a elektřina se převádí na nájemce. Vratná kauce 2 nájmy. Provize RK.

K dispozici ihned.

Makléř

Máte zájem o tuto nemovistost?

Tímto, v souladu s nařízením Evropského parlamentu a Rady (EU) 2016/679, v platném znění, prohlašuji, že mi je alespoň 16 let a uděluji tak svůj souhlas se zpracováním zadaných údajů (jméno, telefon, e-mail, ip adresa) společnosti B3 Technology, s.r.o., IČ: 07330600, se sídlem Novostavby 126/23, 435 11 Lom (správce dat), za účelem předání dotazu z tohoto formuláře Vámi vybranému inzerentovi a zpětného kontaktování mé osoby. Osobní údaje bude správce zpracovávat manuálně i automaticky přímo prostřednictvím svých zaměstnanců. Informace předané tímto formulářem budou uloženy v databázi správce maximálně po dobu 10 let. Odvolání souhlasu s uložením a zpracováním poskytnutých dat lze e-mailem na info@origo-reality.cz. V případě podezření na neoprávněné použití Vámi poskytnutých údajů máte právo předat podnět k šetření Úřadu pro ochranu osobních údajů. Více informací
Chystáte se prodat nemovitost?
Pomůžeme Vám!

Přihlášení k odběru

Nenechte si ujít nejnovější nabídky pronájmu kanceláří v Praze 1.