Prodej bytu 2+kk, Praha - Holešovice, V závětří, 49 m2

V závětří, Praha 7

Cena na vyžádání
/za nemovitost
+popl. 4177, Cena včetně provize a právního servisu Prodávající si vyhrazuje právo vybrat kupujícího na základě
Získejte výhodnou HYPOTÉKU Chci hypotéku

Parametry bytu

AdresaV závětří, Praha 7
ID27824
StavbaCihlová
Stav objektuVelmi dobrý
Patro6. z 8
VlastnictvíOsobní
Užitná plocha49 m2
Podlahová plocha49 m2
Třída energetické náročnostiD - Méně úsporná
TopeníLokální plynové
Balkon
Sklep

Origo partneři v Praze 7

Stěhovací služby

Výkup a prodej starého nábytku

Popis

Exkluzivně nabízím ke koupi stylový dvoupokojový byt o výměře 49 m², který se nachází v 6. podlaží z celkových 8 v revitalizovaném panelovém domě s výtahem. Dům prošel kompletní rekonstrukcí v roce 2021, je zateplený a ve velmi dobrém technickém stavu. Lokalita nabízí výbornou dostupnost centra a zároveň blízkost zeleně – jen pár minut chůze od Královské obory Stromovka, stanice metra C Nádraží Holešovice i tramvajových zastávek. Velkým bonusem je také velmi dostupné parkování v okolí.

Byt je dispozičně řešen jako 2kk a působí světlým, moderním a velmi praktickým dojmem. Už při vstupu vás přivítá prostorná předsíň s vestavěnými skříněmi na míru, které poskytují dostatek úložných prostor a podtrhují čistý, uspořádaný charakter interiéru. Z předsíně je přímý vstup do koupelny s WC, vybavené vanou, umyvadlem a šikovně řešeným koutem pro pračku a sušičku.

Dominantou bytu je obývací pokoj s kuchyňským koutem v otevřené dispozici, který působí vzdušně a příjemně. Minimalistický interiér podtrhuje elegantní a nadčasový design kuchyňské linky s vestavěnými spotřebiči. Prostor je ideální jak pro každodenní život, tak pro setkávání s přáteli.

Samostatná ložnice nabízí klid pro odpočinek a zároveň přímý vstup na menší balkónek, který je ideální pro ranní kávu nebo drobné posezení. Byt je vybaven plastovými okny, kvalitními vinylovými podlahami a množstvím úložných prostor. Vestavěné skříně v chodbě byly realizovány v roce 2022.

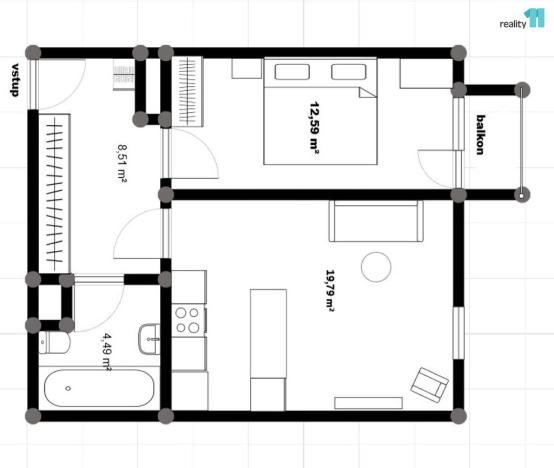
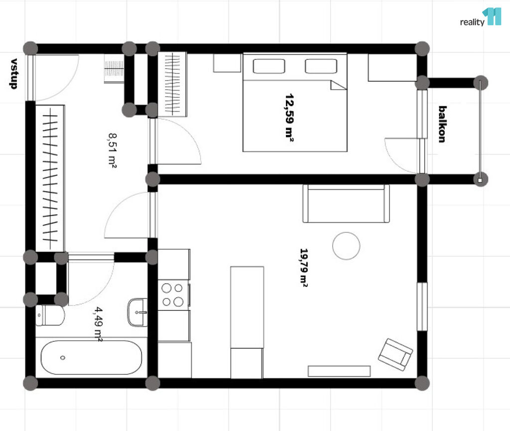
Dispozice a výměry:
– předsíň: 8,51 m²
– obývací pokoj s kuchyní: 19,79 m²
– ložnice: 12,59 m²
– koupelna s WC: 4,49 m²
– sklepní kóje: 2,83 m²

Holešovice prošly v posledních letech dynamickým rozvojem a patří dnes mezi nejatraktivnější pražské lokality. Vynikají skvělou dostupností centra, bohatou občanskou vybaveností a širokými možnostmi volnočasového vyžití. Stromovka v docházkové vzdálenosti nabízí prostor pro sport, relaxaci i společenské aktivity. V okolí se nachází školy, školky, galerie, divadla, moderní kavárny, vyhlášené restaurace i designové obchody.

Dopravní dostupnost:
Metro C – Nádraží Holešovice: 250 m
Tramvaje: 350 m Nádraží Holešovice (linky 5, 12, 14, 15, 17, 54), 400 m Ortenovo náměstí
Autobusy: 110 m Jankovcova, 300 m Nádraží Holešovice
Železnice: 180 m Praha-Holešovice, 700 m Praha-Holešovice-zastávka

S financováním vám pomůže náš certifikovaný hypoteční specialista a kompletní právní servis zajišťuje renomovaná advokátní kancelář.

Nenechte si ujít tuto skvělou příležitost a staňte se majitelem krásného bytu v jedné z nejžádanějších pražských lokalit. Kontaktujte mě pro více informací a domluvte si prohlídku – tato nemovitost určitě stojí za váš zájem. Ev. číslo: 27824.

Makléř

Máte zájem o tento byt?

Tímto, v souladu s nařízením Evropského parlamentu a Rady (EU) 2016/679, v platném znění, prohlašuji, že mi je alespoň 16 let a uděluji tak svůj souhlas se zpracováním zadaných údajů (jméno, telefon, e-mail, ip adresa) společnosti B3 Technology, s.r.o., IČ: 07330600, se sídlem Novostavby 126/23, 435 11 Lom (správce dat), za účelem předání dotazu z tohoto formuláře Vámi vybranému inzerentovi a zpětného kontaktování mé osoby. Osobní údaje bude správce zpracovávat manuálně i automaticky přímo prostřednictvím svých zaměstnanců. Informace předané tímto formulářem budou uloženy v databázi správce maximálně po dobu 10 let. Odvolání souhlasu s uložením a zpracováním poskytnutých dat lze e-mailem na info@origo-reality.cz. V případě podezření na neoprávněné použití Vámi poskytnutých údajů máte právo předat podnět k šetření Úřadu pro ochranu osobních údajů. Více informací
Chystáte se prodat nemovitost?
Pomůžeme Vám!

Přihlášení k odběru

Nenechte si ujít nejnovější nabídky prodeje bytů 2+kk v Praze 7.