Pronájem obchodního prostoru, Červený Kostelec - Lhota za Červeným Kostelcem, 180 m2

Červený Kostelec, Lhota za Červeným Kostelcem

8 000 Kč
/za měsíc
Získejte výhodnou HYPOTÉKU Chci hypotéku

Parametry nemovitosti

AdresaČervený Kostelec, Lhota za Červeným Kostelcem
ID922368
StavbaCihlová
Stav objektuVelmi dobrý
VybavenoAno
Lokalita objektuRušná část obce
VlastnictvíOsobní
Užitná plocha180 m2
Plocha pozemku178 m2

Origo partneři v Červeném Kostelci

Popis

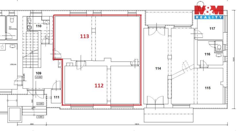
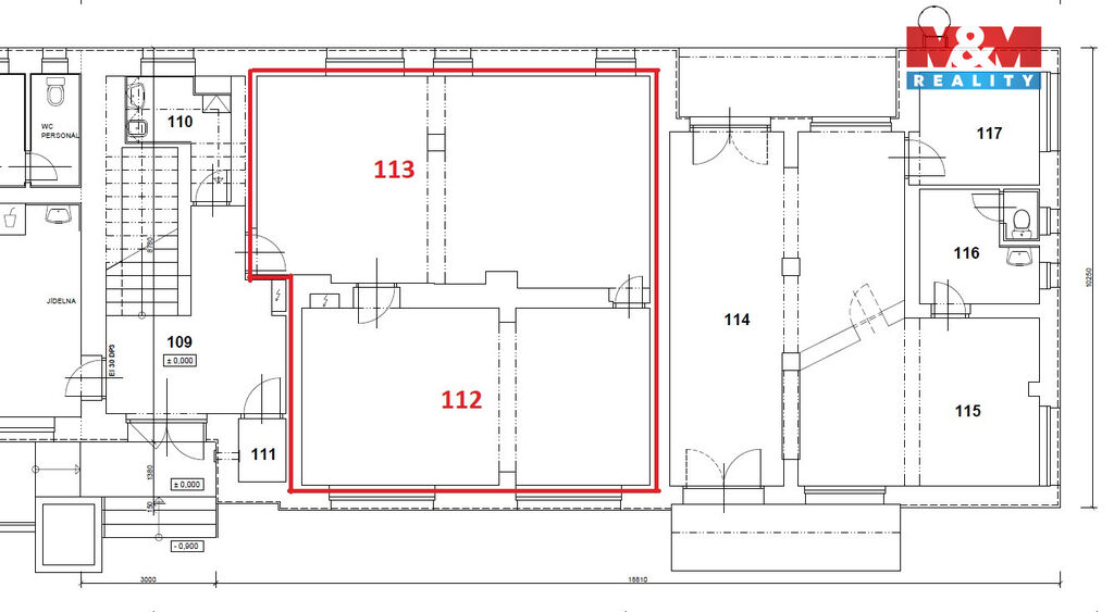
Pronájem kancelářských nebo obchodně - komerčních prostor o celkové ploše 180 m2, show room, obchodní prostor a skladování. Dále kanceláře 70 m2 v 1. NP , a 30 m2 v 2 NP. Prostor pronájmu přístupný a umístěné u hlavní silnice v obci Červený Kostelec, část Lhota u Červeného Kostelce. Při výjezdu na Trutnov. Dálnice D 11 v dosahu do 20 minut, centrum města a nákladové nádraží do 5 minut vozem. Služby areálu jsou cca 15 Kč/ m2 (zahrnuje ostrahu 24/7, údržba komunikací a zeleně Prostory jsou vybaveny starším nábytkem Možnost rozšíření dle dohody s majitelem. Majitel nemovitosti po dohodě provede úpravy interiéru nebo stavební úpravy dle přání zájemce. Nebytové prostory jsou vhodné pro call centra, kanceláře, drobnou výrobu, opracování nebo po úpravě i pro skladování. V budoucnu po provedených stavebních úpravách jako obchod, provozování lékárny, soukromé ordinace, obchodu, služeb nebo distribučního skladu. .Plastová okna, zateplení, sociální zázemí. Vytápění a a teplá voda centrální zdroj.

Makléř

Máte zájem o tuto nemovistost?

Tímto, v souladu s nařízením Evropského parlamentu a Rady (EU) 2016/679, v platném znění, prohlašuji, že mi je alespoň 16 let a uděluji tak svůj souhlas se zpracováním zadaných údajů (jméno, telefon, e-mail, ip adresa) společnosti B3 Technology, s.r.o., IČ: 07330600, se sídlem Novostavby 126/23, 435 11 Lom (správce dat), za účelem předání dotazu z tohoto formuláře Vámi vybranému inzerentovi a zpětného kontaktování mé osoby. Osobní údaje bude správce zpracovávat manuálně i automaticky přímo prostřednictvím svých zaměstnanců. Informace předané tímto formulářem budou uloženy v databázi správce maximálně po dobu 10 let. Odvolání souhlasu s uložením a zpracováním poskytnutých dat lze e-mailem na info@origo-reality.cz. V případě podezření na neoprávněné použití Vámi poskytnutých údajů máte právo předat podnět k šetření Úřadu pro ochranu osobních údajů. Více informací
Chystáte se prodat nemovitost?
Pomůžeme Vám!

Přihlášení k odběru

Nenechte si ujít nejnovější nabídky pronájmu obchodních prostor v Červeném Kostelci.