Prodej chaty, Moravský Krumlov, Na Bubnu, 52 m2

Na Bubnu, Moravský Krumlov

1 990 000 Kč
/za nemovitost
Hypotéka od 8 894 Kč /měs. Chci hypotéku

Parametry domu

AdresaNa Bubnu, Moravský Krumlov
IDR1813
StavbaDřevěná
Stav objektuNovostavba
Užitná plocha52 m2

Origo partneři v Moravském Krumlově

Popis

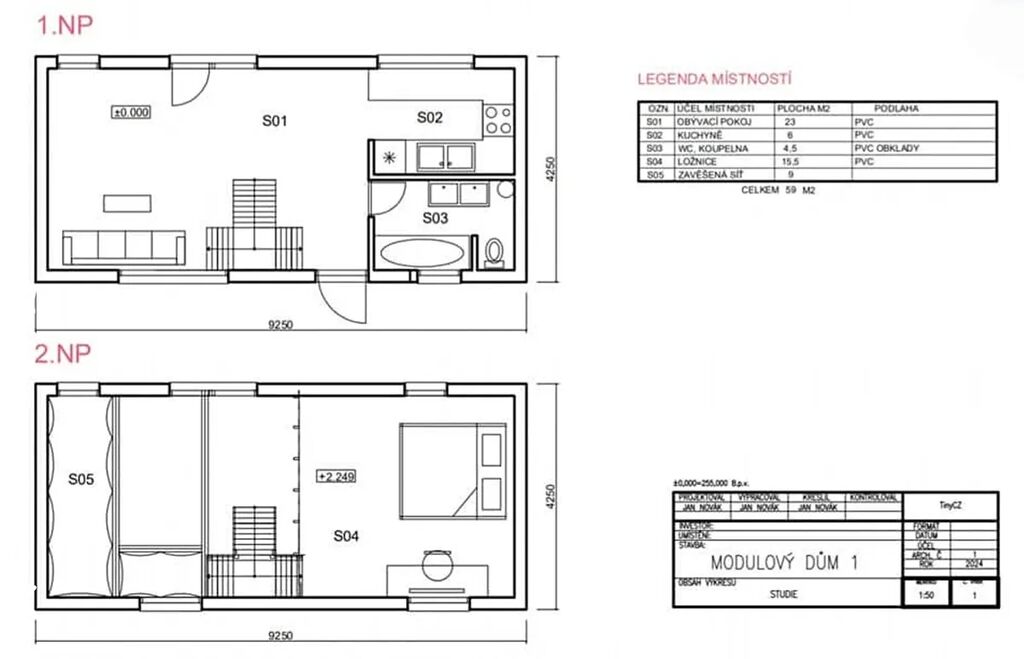
Moderní mobilní domek 1+kk s chytrou domácností

Mobilní domeček ve vysokém standardu, s moderními technologiemi a možností umístit ho, kamkoliv si přejete. Tiny House může být vaše nová cesta k okamžité relaxaci.

Domek má dispozici 1+kk. Konstrukčně se jedná o dřevostavbu na ocelové konstrukci, která je připravena k přepravě na váš pozemek. Je zateplený, má fasádu a přípojky pro napojení na elektrickou energii, vodu a odpady. Vy jen zvolíte, jestli jej napojíte na kanalizaci či jímku a zda budete odebírat elektrickou energii od dodavatele, nebo po vlastní ose (například ze solárních panelů či agregátu). To samé platí o vodě – Tiny House umožňuje napojení na řád i na vlastní studnu. Dům je vytápěný tepelným čerpadlem, které lze použít jak k teplu, tak k ochlazení domu.

Domek nabízí dvě patra. Přízemí se skládá z kuchyně, koupelny a obývacího pokoje, ze kterého se dostanete do otevřeného prostoru určeného na spaní.

Místo pro kuchyň je připravené pro realizaci budoucí kuchyňské linky dle vašich představ. Nechybí ani obvody na varnou desku, myčku, lednici a další nezbytnosti. Koupelna je už nyní plně vybavena. K dispozici je topný žebřík, vana, toaleta a umyvadlo s přípojkami na pračku a ohřívač vody. Obývací pokoj je středem celého domu. Vedou z něj prosklené dveře na budoucí terasu. Je zde prostor pro jídelní stůl, sedačku a vše, co potřebujete ke komfortnímu posezení. Vrchní patro je snížené a slouží primárně jako ložnice.

Tiny House je vybaven také chytrou domácností. Tepelné čerpadlo si zapnete před příjezdem, světla ovládáte telefonem. Nechybí ani alarm u vstupních dveří a kouřové čidlo. Vše si bude povídat s vaším chytrým telefonem.

A jak se tento domeček dostane na vaši zahradu? Naložíme ho na kamion, přivezeme a dohlédneme na správné položení domu. V ceně je zahrnuta příprava betonové patky, dopravu si hradíte sami.

Velkou výhodou Tiny Housu je i to, že nepotřebuje stavební povolení, pokud si jej postavíte na pozemek určený k rekreaci. Předáme vám projektovou dokumentaci a v případě zájmu poskytneme podklady pro kolaudaci.

Do tohoto domku se vejde i rodina s dětmi, je však ideální pro dvojice či jednotlivce. Máte-li zájem prohlédnout si ho osobně, tento konkrétní domek je k vidění v Moravském Krumlově. Zavolejte nám a domluvte si termín prohlídky. Pokud by se vám hodil spíše menší či větší mobilní domek, můžete si jej také nechat vyrobit. Budeme se na vás těšit.

Makléř

Máte zájem o tento dům?

Tímto, v souladu s nařízením Evropského parlamentu a Rady (EU) 2016/679, v platném znění, prohlašuji, že mi je alespoň 16 let a uděluji tak svůj souhlas se zpracováním zadaných údajů (jméno, telefon, e-mail, ip adresa) společnosti B3 Technology, s.r.o., IČ: 07330600, se sídlem Novostavby 126/23, 435 11 Lom (správce dat), za účelem předání dotazu z tohoto formuláře Vámi vybranému inzerentovi a zpětného kontaktování mé osoby. Osobní údaje bude správce zpracovávat manuálně i automaticky přímo prostřednictvím svých zaměstnanců. Informace předané tímto formulářem budou uloženy v databázi správce maximálně po dobu 10 let. Odvolání souhlasu s uložením a zpracováním poskytnutých dat lze e-mailem na info@origo-reality.cz. V případě podezření na neoprávněné použití Vámi poskytnutých údajů máte právo předat podnět k šetření Úřadu pro ochranu osobních údajů. Více informací
Chystáte se prodat nemovitost?
Pomůžeme Vám!

Přihlášení k odběru

Nenechte si ujít nejnovější nabídky prodeje chat v Moravském Krumlově.