Pronájem bytu 1+1, Praha - Nusle, V zálomu, 46 m2

V zálomu, Nusle - Praha 4

18 800 Kč
/za měsíc
vratná jistota, náklady na bydlení 4 509 Kč, poplatek za podnájem
Získejte výhodnou HYPOTÉKU Chci hypotéku

Parametry bytu

AdresaV zálomu, Nusle - Praha 4
IDN5511
StavbaCihlová
Stav objektuVelmi dobrý
Patro3. z 5
VybavenoAno
Typ objektuPatrový
Lokalita objektuKlidná část obce
VlastnictvíOsobní
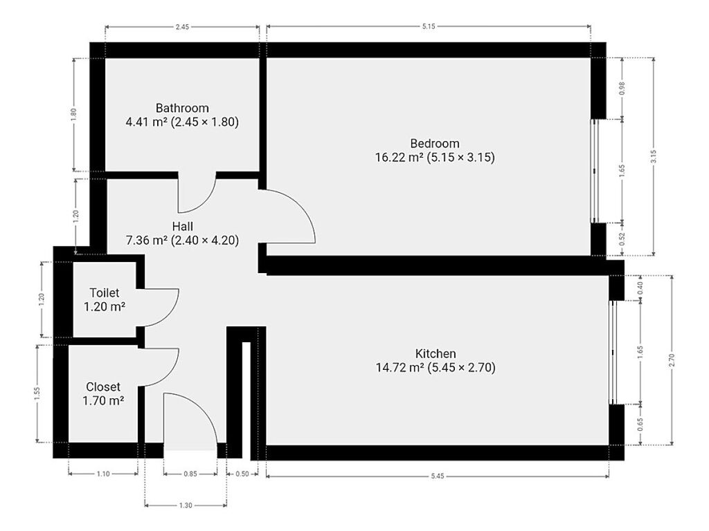
Užitná plocha46 m2
Podlahová plocha46 m2
Třída energetické náročnostiG - Mimořádně nehospodárná
Elektřina230V
PlynPlynovod
TopeníLokální plynové
DopravaVlak, Dálnice, Silnice, MHD, Autobus
Výtah

Origo partneři v Praze 4

Stěhovací služby

Výkup a prodej starého nábytku

Popis

K dlouhodobému podnájmu nabízíme krásný byt o dispozici 1+1 v klidné lokalitě Praha 4 - Nusle. Byt o celkové výměře 46 m2 se nachází ve 2. patře zděného domu bez výtahu.

Byt se nabízí plně vybavený. Kuchyně disponuje jídelním stolem se 3 židlemi, rozkládací postelí, lednicí s mrazákem, elektrickou troubou, plynovým sporákem, mikrovlnnou troubou a digestoří. V ložnici najdeme postel s matracemi, 2 noční stolky s lampičkami, šatní skříň, komodu a polici. V koupelně je vana, umyvadlo, koupelnová skříňka, zrcadlo a pračka. Toaleta je umístěna samostatně. V předsíni jsou vestavěné skříně.

Plovoucí podlahy, plastová okna, vytápění plynové, ohřev vody bojlerem, přípojka na internet, v mezipatře společný balkon.

V okolí domu najdeme restaurace, nákupní centrum Arkády Pankrác, supermarket Tesco Express, Divadlo na Jezerce, park Jezerka atd. Pár minut chůze od domu je vzdálena tramvajová zastávka Na Veselí, autobusová zastávka Jezerka, a v docházkové vzdálenosti je stanice metra C - Pražského povstání.

Byt je volný k nastěhování 1.11.2025.

Energetická třída: G (průkaz nedodán).

Makléř

Máte zájem o tento byt?

Tímto, v souladu s nařízením Evropského parlamentu a Rady (EU) 2016/679, v platném znění, prohlašuji, že mi je alespoň 16 let a uděluji tak svůj souhlas se zpracováním zadaných údajů (jméno, telefon, e-mail, ip adresa) společnosti B3 Technology, s.r.o., IČ: 07330600, se sídlem Novostavby 126/23, 435 11 Lom (správce dat), za účelem předání dotazu z tohoto formuláře Vámi vybranému inzerentovi a zpětného kontaktování mé osoby. Osobní údaje bude správce zpracovávat manuálně i automaticky přímo prostřednictvím svých zaměstnanců. Informace předané tímto formulářem budou uloženy v databázi správce maximálně po dobu 10 let. Odvolání souhlasu s uložením a zpracováním poskytnutých dat lze e-mailem na info@origo-reality.cz. V případě podezření na neoprávněné použití Vámi poskytnutých údajů máte právo předat podnět k šetření Úřadu pro ochranu osobních údajů. Více informací
Chystáte se prodat nemovitost?
Pomůžeme Vám!