Prodej rodinného domu, Trutnov - Střední Předměstí, Oskara Nedbala, 206 m2

Oskara Nedbala, Střední Předměstí

Rezervováno
5 900 000 Kč
/za nemovitost
Kupní cena vč. provize RK a právního servisu.
Hypotéka od 26 369 Kč /měs. Chci hypotéku

Parametry domu

StavRezervováno
AdresaOskara Nedbala, Střední Předměstí
IDCZK25136
StavbaCihlová
Stav objektuVelmi dobrý
Typ objektuPatrový
Druh objektuŘadový
Užitná plocha206 m2
Zastavěná plocha92 m2
Podlahová plocha206 m2
Plocha pozemku273 m2
Plocha zahrady108 m2
Elektřina230V, 400V
PlynPlynovod
OdpadVeřejná kanalizace
TopeníÚstřední plynové
KomunikaceAsfaltová
DopravaVlak, Silnice, MHD, Autobus
VodaVodovod
Topné tělesoRadiátory
Zdroj topeníPlynový kondenzační kotel
Zdroj teplé vodyPlynový kondenzační kotel
Balkon
Garáž
Terasa
Bezbarierový přístup
Parkování

Origo partneři v Trutnově

Popis

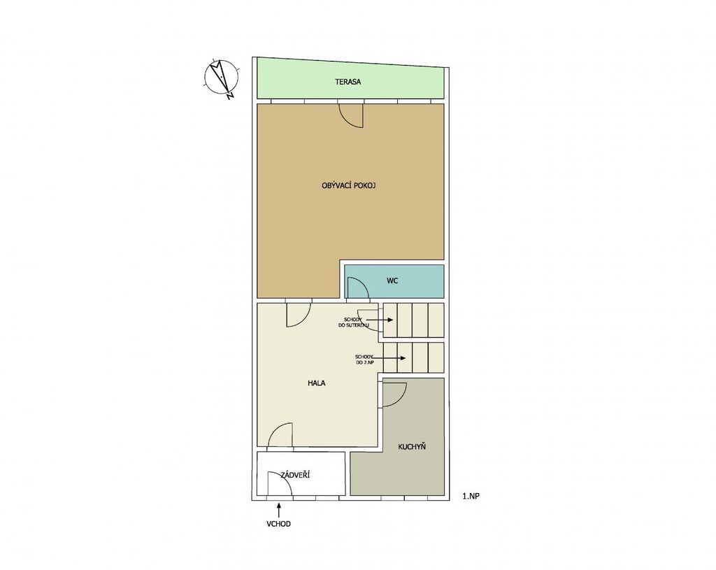
Exkluzivně nabízíme k prodeji velký řadový dům v Trutnově - lokalitě Česká čtvrť, v ul. Oskara Nedbala. Rodinný dům je zděný, se 3 podlažími, s dispozicí obytných místností 4+1, se 2 lodžiemi a terasou, s garáží a technickým zázemím. Dům je prostorově větší (širší) než klasické řadové domy, a proto má celkovou výměru podlahové plochy 206 m2.

V 1. NP domu se nachází vchod, zádveří, hala, velký obývací pokoj se vstupem na terasu s krásným a na jih orientovaným výhledem na Trutnov, dále potom kuchyně, místnost wc a schodiště do 2. NP a suterénu.

Ve 2. NP jsou umístěny 2 pokoje se spojenou lodžií, velká ložnice také s lodžií, koupelna s vanou a wc, šatna a prádelna.

Suterén zahrnuje velkou garáž, 2 sklepy, 2 technické místnosti, prostor s přípravou pro saunu s ochlazovacím bazénkem, wc, koupelnu, pokoj se vstupem na zahradu za domem.

Dům je napojen na elektřinu, vodovod, plyn, kanalizaci. Vytápění domu a ohřev vody zajišťuje nový nástěnný kondenzační plynový kotel. PENB dosud nebyl vyhotoven, proto je dle zákona uváděna energetická třída G.

Pozemek je celkové výměry 273 m2. Za domem se nachází oplocená zahrada orientovaná na jih, je tedy celodenně zalita sluncem.

Dům je vhodný pro trvalé rodinné bydlení, je prostorný, s velkým množstvím úložného prostoru, s garáží a zahradou. Budova je v dobrém stavebně technickém stavu. Česká čtvrť je vyhledávanou lokalitou, dům je v klidné části, nedaleko centra města. V blízkosti domu se nachází zastávka MHD, základní škola, školka, lékař, sportoviště a další objekty občanské vybavenosti.

Právní servis, advokátní úschova kupní ceny, poplatky katastrálnímu úřadu a další rozsáhlé služby realitní kanceláře EVOLUCE jsou pro kupující zdarma. Rádi pro Vás též zdarma zajistíme financování koupě hypotečním úvěrem.

Makléř

Máte zájem o tento dům?

Tímto, v souladu s nařízením Evropského parlamentu a Rady (EU) 2016/679, v platném znění, prohlašuji, že mi je alespoň 16 let a uděluji tak svůj souhlas se zpracováním zadaných údajů (jméno, telefon, e-mail, ip adresa) společnosti B3 Technology, s.r.o., IČ: 07330600, se sídlem Novostavby 126/23, 435 11 Lom (správce dat), za účelem předání dotazu z tohoto formuláře Vámi vybranému inzerentovi a zpětného kontaktování mé osoby. Osobní údaje bude správce zpracovávat manuálně i automaticky přímo prostřednictvím svých zaměstnanců. Informace předané tímto formulářem budou uloženy v databázi správce maximálně po dobu 10 let. Odvolání souhlasu s uložením a zpracováním poskytnutých dat lze e-mailem na info@origo-reality.cz. V případě podezření na neoprávněné použití Vámi poskytnutých údajů máte právo předat podnět k šetření Úřadu pro ochranu osobních údajů. Více informací
Chystáte se prodat nemovitost?
Pomůžeme Vám!

Přihlášení k odběru

Nenechte si ujít nejnovější nabídky prodeje rodinných domů v Trutnově.