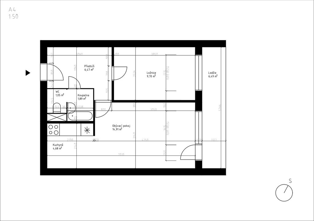
Prodej bytu 2+kk, Teplice, Trnovanská, 40 m2 (ID: 1848466)

Trnovanská, Teplice, Trnovany

2 100 000 Kč
/za nemovitost
Hypotéka od 9 386 Kč /měs. Chci hypotéku

Parametry bytu

AdresaTrnovanská, Teplice, Trnovany
StavbaPanelová
Stav objektuDobrý
Patro5.
VlastnictvíOsobní
Užitná plocha40 m2
Lodžie

Origo partneři v Teplicích

Okna a dveře

Rekonstrukce

Zámečnické práce

Popis

Hledáte útulný byt pro sebe nebo jistou investici s výnosem? Tento byt je přesně pro vás!

Byt o velikosti 40 m² se nachází v 5. patře osmipodlažního domu, který prošel kompletní rekonstrukcí – nové zateplení, plastová okna, moderní výtah, prostorné lodžie a reprezentativní vstupní dveře.

Klidné bydlení v žádané části Teplic – Šanov 2

Lodžii, kde si užijete ranní kávu i večerní pohodu

Pohodlné parkování přímo u domu

Veškerou občanskou vybavenost na dosah (škola, školka, obchody, lékárna, MHD)

Byt je v původním, ale velmi udržovaném stavu – můžete se hned nastěhovat nebo si jej zrekonstruovat podle svého vkusu.

Díky skvělé poloze je ideální nejen pro vlastní bydlení, ale i jako investiční příležitost k pronájmu.

Makléř

Máte zájem o tento byt?

Tímto, v souladu s nařízením Evropského parlamentu a Rady (EU) 2016/679, v platném znění, prohlašuji, že mi je alespoň 16 let a uděluji tak svůj souhlas se zpracováním zadaných údajů (jméno, telefon, e-mail, ip adresa) společnosti B3 Technology, s.r.o., IČ: 07330600, se sídlem Novostavby 126/23, 435 11 Lom (správce dat), za účelem předání dotazu z tohoto formuláře Vámi vybranému inzerentovi a zpětného kontaktování mé osoby. Osobní údaje bude správce zpracovávat manuálně i automaticky přímo prostřednictvím svých zaměstnanců. Informace předané tímto formulářem budou uloženy v databázi správce maximálně po dobu 10 let. Odvolání souhlasu s uložením a zpracováním poskytnutých dat lze e-mailem na info@origo-reality.cz. V případě podezření na neoprávněné použití Vámi poskytnutých údajů máte právo předat podnět k šetření Úřadu pro ochranu osobních údajů. Více informací
Chystáte se prodat nemovitost?
Pomůžeme Vám!

Přihlášení k odběru

Nenechte si ujít nejnovější nabídky prodeje bytů 2+kk v Teplicích.