Pronájem restaurace, Praha - Nové Město, Opatovická, 129 m2
Opatovická, Praha, Nové Město
/za měsíc
+ poplatky dle spotřeby. Ceny jsou uvedeny bez DPH., + provize RK
Parametry nemovitosti
| Adresa | Opatovická, Praha, Nové Město | 
|---|---|
| ID | 01670 | 
| Stavba | Smíšená | 
| Stav objektu | Velmi dobrý | 
| Vybaveno | Ano | 
| Lokalita objektu | Centrum obce | 
| Užitná plocha | 129 m2 | 
| Třída energetické náročnosti | D - Méně úsporná | 
| Ukazatel energetické náročnosti | 89 kWh/m2 za rok | 
| Elektřina | 230V | 
| Doprava | Silnice, MHD, Autobus | 
Popis
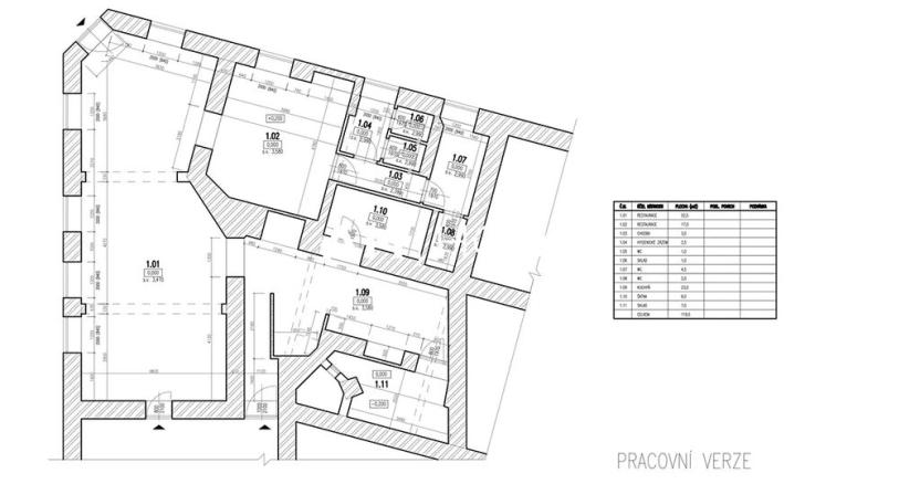
Nabízíme k pronájmu restaurace o velikosti 129 m2, která se nachází v ulice Opatovická v centru města nedaleko Národního divadla.
Celková cena: 90 000,- Kč/měsíc + poplatky dle spotřeby.
Ceny jsou uvedeny bez DPH. 
Prohlídky jsou možné už teď.
Nabízená restaurace nabízí 50 míst k sezení , moderní vybavenou kuchyň 23 m2, výčep, sklad, technickou místnost.
Prostory mají novou elektřinu, rozvody vody, opravenou podlahu, svůj vlastní vstup. 
Prostor je připraven pro realizace vašeho projektu, proto jsou vyžadované odstupné ve výši 2 500 000,- Kč. 
Dobrá investiční příležitost díky hotelové klientely - díky hotelu Koruna, který provozuje pronajímatel restaurace přímo ve vrchních patrech domu, budete mít stálý přísun hotelových hostů
V bezprostřední blízkosti rezidence se nachází tramvajové zastávky a o pár metrů dál metro Národní třída.
Pro více informací nás kontaktujte, rádi se Vám budeme věnovat.
Přihlášení k odběru
Nenechte si ujít nejnovější nabídky pronájmu restaurací v Praze 1.
 
                                                                                     
                                                                                     
                                                                                     
                                                                                     
                                                                                     
                                                                                     
                                                                                     
                                                                                     
                                                                                     
                                                                                     
                                                                                     
                                                                                     
                                                                                     
                                                                                     
                                                                                     
                                                                                     
                                                                                     
                                                             
                         
         
         
         
         
        