Prodej pozemku pro bydlení, Vranov nad Dyjí, 1000 m2

Vranov nad Dyjí

2 990 000 Kč
/za nemovitost
- včetně právního servisu, provize realitní kanceláři i DPH
Hypotéka od 13 363 Kč /měs. Chci hypotéku

Parametry pozemku

AdresaVranov nad Dyjí
ID294
Plocha pozemku1000 m2
KomunikaceAsfaltová
Bezbarierový přístup

Origo partneři v Vranově nad Dyjí

Popis

K prodeji nabízíme 3 stavební pozemky ve výjimečné lokalitě Vranova nad Dyjí, situovaných v klidné části ulice Benátek. Co se zde může postavit:

Hlavní využití:
- slouží pro potřeby rekreace a turistiky

Přípustné využití:
- slouží k umístění zařízení hromadné rekreace a cestovního ruchu a staveb potřebných pro tyto činnosti a aktivity pro obsluhu takového území. Umístění stravovacích a ubytovacích zařízení a sportovně rekreačních zařízení.
- přípustné jsou komunikace a parkoviště pro obsluhu území, rozptylové prostory, plochy pro rekreační sport, zeleň, stavby příslušné technické infrastruktury

Podmínky prostorového uspořádání a základních podmínek ochrany krajinného rázu:
- výška nepřesáhne výškovou hladinu stávající zástavby v navazujícím území (max. 2 NP + podkroví), u nových ploch není vymezeno
- koeficient zastavění stavebního pozemku bude max. 30%
- případná vyšší intenzita ve stabilizovaných plochách je respektována.

Další benefity:
- Lokalita Benátek, Vranov nad Dyjí klid, příroda, cyklostezky, turistika, řeka, dostupnost.
- Celková rozloha pozemku: 1000 m2 (možné koupit i více pozemků dohromady, viz. značení ve fotografii, finální rozdělení geomterickým plánem bude uděláno na základě podpisu rezervační smlouvy)
- Veškeré inženýrské sítě na pozemku, zajištěný příjezd po komunikaci až na pozemek

Cena pozemku činí 2.990.000,- Kč/m2 (včetně právního servisu, provize realitní kanceláři i DPH).
V případě zájmu o větší pozemek, resp. koupě 2 a více pozemků je cena k jednání.

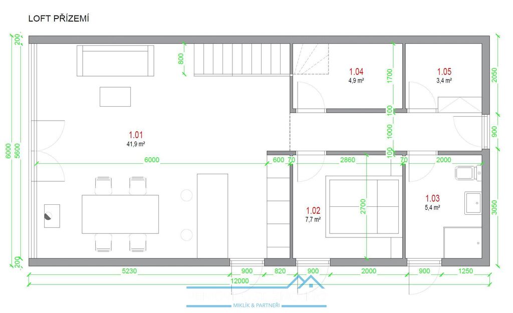
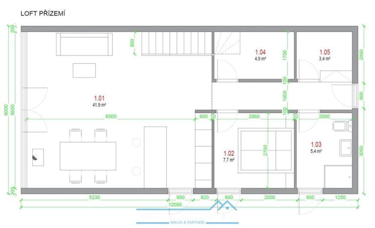
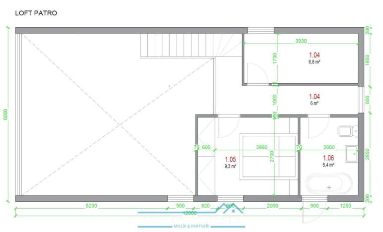
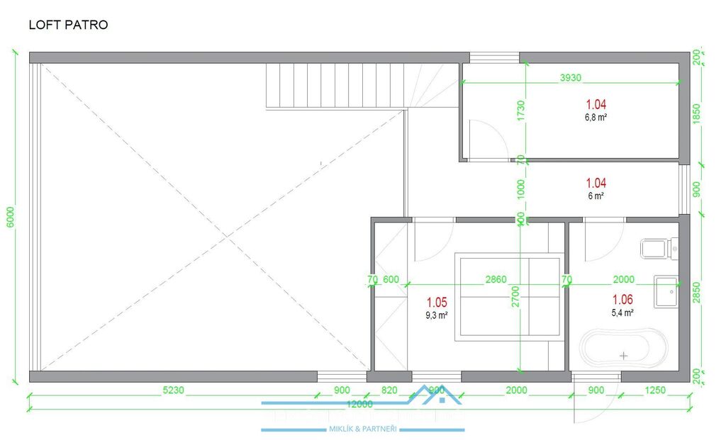
Jsme schopni zajistit i výstavbu luxusního domu, viz. fotografie, se zastavěnou plochou 72m2, a vnitřní dispozicí 3+kk (příp. 4+kk), zcela na klíč, s kompletně zařízenou kuchyšnkou linkou, koupelnou atd., cena samotného domu činí 5.550.000,- Kč. (včetně DPH 12 %, pokud byste kupovali na firmu, je možné si DPH odečíst)

Pro více informací, dokumentaci ke studii nebo domluvení termínu prohlídky kontaktujte pana Ing. Miklíka, volat můžete kdykoliv, včetně víkendů a svátků.

Makléř

Máte zájem o tento pozemek?

Tímto, v souladu s nařízením Evropského parlamentu a Rady (EU) 2016/679, v platném znění, prohlašuji, že mi je alespoň 16 let a uděluji tak svůj souhlas se zpracováním zadaných údajů (jméno, telefon, e-mail, ip adresa) společnosti B3 Technology, s.r.o., IČ: 07330600, se sídlem Novostavby 126/23, 435 11 Lom (správce dat), za účelem předání dotazu z tohoto formuláře Vámi vybranému inzerentovi a zpětného kontaktování mé osoby. Osobní údaje bude správce zpracovávat manuálně i automaticky přímo prostřednictvím svých zaměstnanců. Informace předané tímto formulářem budou uloženy v databázi správce maximálně po dobu 10 let. Odvolání souhlasu s uložením a zpracováním poskytnutých dat lze e-mailem na info@origo-reality.cz. V případě podezření na neoprávněné použití Vámi poskytnutých údajů máte právo předat podnět k šetření Úřadu pro ochranu osobních údajů. Více informací
Chystáte se prodat nemovitost?
Pomůžeme Vám!

Přihlášení k odběru

Nenechte si ujít nejnovější nabídky prodeje pozemků pro bydlení v Vranově nad Dyjí.