Pronájem rodinného domu, Kolín - Sendražice, Karla Legera, 150 m2

Karla Legera, Kolín, Sendražice

24 000 Kč
/za měsíc
Získejte výhodnou HYPOTÉKU Chci hypotéku

Parametry domu

Náklady na bydlení6 000
AdresaKarla Legera, Kolín, Sendražice
ID3229
StavbaSmíšená
Stav objektuDobrý
VybavenoČástečně
Typ objektuPřízemní
Druh objektuV bloku
Lokalita objektuKlidná část obce
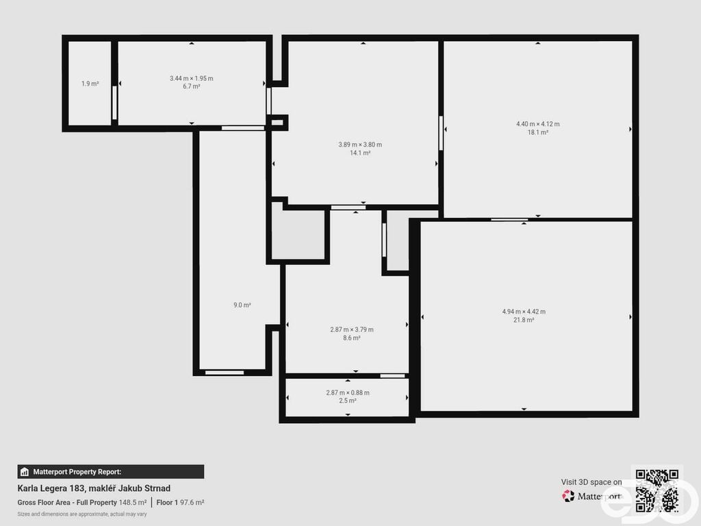
Užitná plocha150 m2
Zastavěná plocha85 m2
Plocha pozemku305 m2
Třída energetické náročnostiG - Mimořádně nehospodárná
Elektřina230V
PlynPlynovod
OdpadVeřejná kanalizace
KomunikaceBetonová
TelekomunikaceTelefon, Internet
DopravaVlak, Silnice, MHD, Autobus
VodaVodovod
Převod do OV

Origo partneři v Kolíně

Popis

Dům o velikosti 140 m² nabízí dispozici 4+1, která poskytuje dostatek prostoru pro rodinu i pohodlné bydlení jednotlivců. Nemovitost se nachází v klidné lokalitě s výbornou dostupností jak do centra Kolína, tak na nedaleký nájezd na dálnici D11 směrem na Prahu a Hradec Králové. V okolí je k dispozici kompletní občanská vybavenost – školy, školky, obchody, služby i sportovní vyžití.

Dům prošel částečnou rekonstrukcí – nové podlahy, modernizovaná kuchyňská linka, nový plynový kotel včetně radiátorů.

Dům je ideální volbou pro ty, kteří hledají klidné bydlení s rychlou dostupností do města i mimo něj.

Měsíční nájem: 24000 Kč + energie
Kauce: 48000 Kč
Provize RK: 24000 Kč + DPH

Budu se na Vás těšit.

Makléř

Máte zájem o tento dům?

Tímto, v souladu s nařízením Evropského parlamentu a Rady (EU) 2016/679, v platném znění, prohlašuji, že mi je alespoň 16 let a uděluji tak svůj souhlas se zpracováním zadaných údajů (jméno, telefon, e-mail, ip adresa) společnosti B3 Technology, s.r.o., IČ: 07330600, se sídlem Novostavby 126/23, 435 11 Lom (správce dat), za účelem předání dotazu z tohoto formuláře Vámi vybranému inzerentovi a zpětného kontaktování mé osoby. Osobní údaje bude správce zpracovávat manuálně i automaticky přímo prostřednictvím svých zaměstnanců. Informace předané tímto formulářem budou uloženy v databázi správce maximálně po dobu 10 let. Odvolání souhlasu s uložením a zpracováním poskytnutých dat lze e-mailem na info@origo-reality.cz. V případě podezření na neoprávněné použití Vámi poskytnutých údajů máte právo předat podnět k šetření Úřadu pro ochranu osobních údajů. Více informací
Chystáte se prodat nemovitost?
Pomůžeme Vám!

Přihlášení k odběru

Nenechte si ujít nejnovější nabídky pronájmu rodinných domů v Kolíně.